Get discounts,
promos, see our
newest plans
and more!
+ 15% off any plan
See terms opt out anytime


No Thanks

Thanks for
signing up!


Use Code:

SIGNUP15

And save 15% off any plan!

Check your email for details.

CLOSE
Search Plans
Customer Reviews
     

Sq Ft
1,458 FT²

Beds
3

Baths
2

Stories
1

Garage
2

Depth
38'

Width
72' 4"
From
$950.00
EXCLUSIVE PLAN
© copyright by designer
 View All 3 Images | Photographs may reflect modified home
Sq Ft
1,458 FT²
Beds
3
Baths
2
Stories
1
Garage
2
Depth
38'
Width
72' 4"
 
Click to Zoom In on Floor Plan
© copyright by designer
 
 

About This Plan

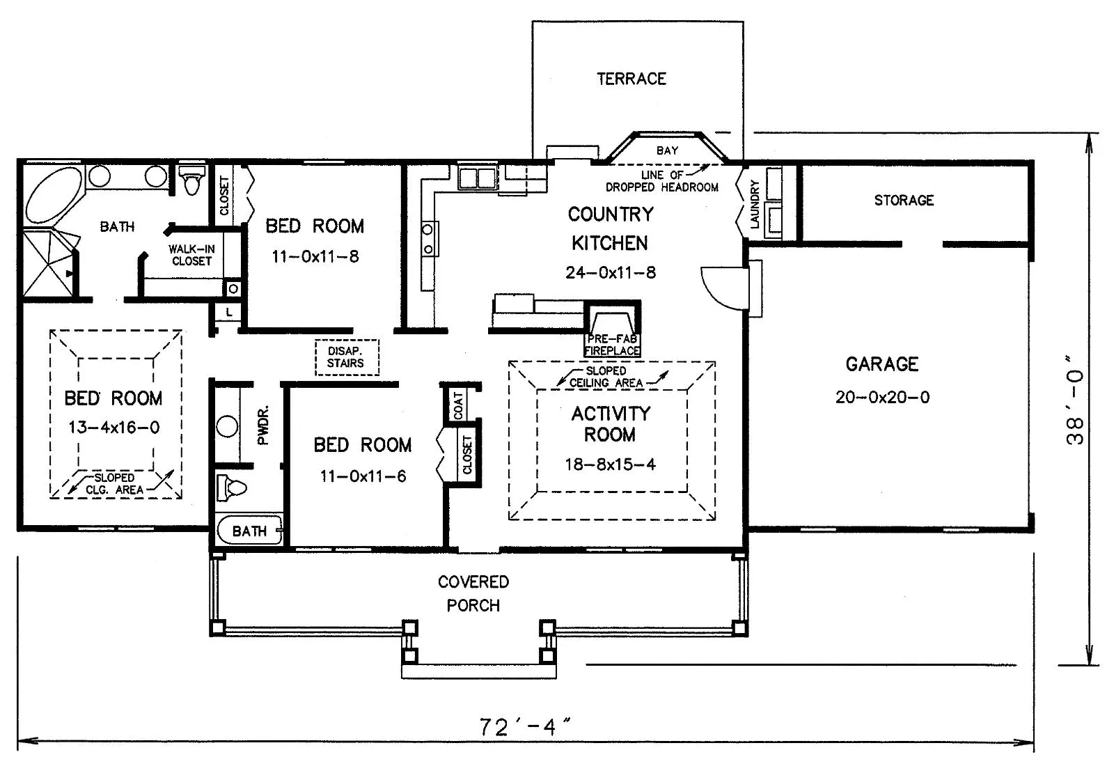
Keeping price in perspective, this home is small in square footage, but contains surprising spaces. The amenity packed stylish interior will astound you. Balanced wings frame a beautiful country porch, with entry into the great room. A tray ceiling increases the visual size creating an impressive room. A fireplace is central and provides a cozy spot for cold winter evenings. The grand country kitchen with light filled bay window gives an old fashioned feeling of "home". A rear terrace is nearby, perfect for quiet evening meditation. Laundry facilities are easily accessible from the country kitchen. The double garage includes an enormous storage room for packing away seasonal items, or for all of your gardening equipment. The bedrooms are grouped together, and all are generously sized. Two family bedrooms share a large compartmented hall bath. The master suite is accented with a tray ceiling in the bedroom and a luxury garden bath with a spa tub sequestered in a corner. The contours of gable roof lines, when coupled with balanced wings and arch top dormers make this a memorable home.
 

See All Plan Options
 

FEATURES & DETAILS

Kitchen features
Country Kitchen
Nook / Breakfast Area
Bedroom features
Double Vanity Sink
Primary Bdrm Main Floor
Separate Tub and Shower
Walk-in Closet
Exterior features
Covered Front Porch
Front Porch
Foundation Options
Crawlspace
Slab
Additional features
Fireplace
Great Room
Laundry 1st Fl
Vaulted Ceilings
Garage Location
Side
Garage Options
Attached
2,225 Ft
2
Total Structure
1,458 Ft
2
Total Heated
3
Bedrooms
2
Bathrooms
2
Garage
1
Stories
72' 4"
Width
38' 0"
Depth
24' 0"
Height
9' 0"
Main Floor Ceiling
2x4
Framing
Stick
Roof Framing
8/12
Primary Roof Pitch
Single
Dwelling Number
None
Bonus Access

Unheated Living Space
515 Ft
2
Garage
252 Ft
2
Porch
137 Ft
2
Patio
 

Plan Package Options

 Select Plan Package
$950
PDF Single Build

Digital plans emailed to you in PDF format that allows for printing copies and sharing electronically with contractors, subs, decorators, and more. This package includes a license to build the home one time.

$950
 Need To Reverse Plan? (Optional)
$175
Readable Reverse

Reverse house plans with readable text and dimensions 

$175
  Select Foundation Option
  Add-Ons (Optional)
INCLUDED WITH YOUR PURCHASE

Free Ground shipping in the Continental U.S.

FREE

Home Building & Product Ideas Organizer

Sub Total
$0
Free Shipping
QUESTIONS OR NEED HELP ORDERING? LIVE CHAT OR CALL US AT 866-214-2242
Plan Packages

Each set of construction documents includes detailed, dimensioned floor plans, basic electric layouts, cross sections, roof details, cabinet layouts and elevations, as well as general IRC specifications. They contain virtually all of the information required to construct your home. The typical plan set does not include any plumbing, HVAC drawings, or engineering stamps due to the wide variety of specific needs, local codes, and climatic conditions. These details and specifications are easily obtained from your builder, contractors, and/or local engineers.

BEST PRICE GUARANTEE

Find the same house plan (modifications included!) and package for less on another site, show us the URL and we'll give you the difference plus an additional 5% back.

100% SATISFACTION GUARANTEE

We offer a one-time, 30-day exchange policy for unused, printed plan packages in the event you aren't satisfied with your first selection. Exchanges are subject to a 20% restocking fee.

 
 

Plan 3292  Back to plan page

Loading...