Get discounts,
promos, see our
newest plans
and more!
+ 15% off any plan
See terms opt out anytime


No Thanks

Thanks for
signing up!


Use Code:

SIGNUP15

And save 15% off any plan!

Check your email for details.

CLOSE
Search Plans
     
15% Off House Plans Sitewide Ends Sunday
15% Off House Plans Sitewide Ends Sunday
15% Off House Plans Sitewide Ends Sunday

Code: SAVE15
Sale ends midnight 11/16/2025 PST

Sq Ft
2,104 FT²

Beds
4

Baths
3

Stories
1

Garage
2

Depth
52'

Width
61' 8"
On Sale
$892.50
$1,050.00
EXCLUSIVE PLAN
© copyright by designer
 View All 3 Images | Photographs may reflect modified home
Sq Ft
2,104 FT²
Beds
4
Baths
3
Stories
1
Garage
2
Depth
52'
Width
61' 8"
 
Click to Zoom In on Floor Plan
© copyright by designer
 
 

About This Plan

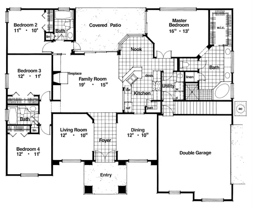
Formal living/dining spaces bring tradition back to this house design. Bedroom two is perfect for in-laws and guests with a private pool bath. Bedroom four can easily become home office/library with double doors that can open into living room. Mitered glass gives the breakfast area an airy feel. Kitchen is a dream with walk-in pantry and bar seating. Double doors open into the master suite with grand bed wall and sumptuous bath with step down "doorless" shower. Elevation brings stately elegance through delicate stepped trim. 

See All Plan Options
 

FEATURES & DETAILS

Kitchen features
Nook / Breakfast Area
Walk-in Pantry
Bedroom features
Double Vanity Sink
Primary Bdrm Main Floor
Separate Tub and Shower
Split Bedrooms
Walk-in Closet
Exterior features
Covered Rear Porch
Rear Porch
Foundation Options
Basement
Crawlspace
Slab
Additional features
Dining Room
Family Room
Fireplace
Formal LR
Foyer
Laundry 1st Fl
Garage Location
Side
Garage Options
Attached
Side-entry
2,850 Ft
2
Total Structure
2,104 Ft
2
Total Heated
4
Bedrooms
3
Bathrooms
2
Garage
1
Stories
61' 8"
Width
52' 0"
Depth
24' 6"
Height
10/12' 0"
Main Floor Ceiling
2x4
Framing
Truss
Roof Framing
6/12
Primary Roof Pitch
Single
Dwelling Number

Unheated Living Space
452 Ft
2
Garage
97 Ft
2
Porch
197 Ft
2
Patio
 

Plan Package Options

 Select Plan Package
Sale: $510
PDF Bid Set
$600

PDFs NOW!™

Home plans stamped "NOT FOR CONSTRUCTION" for cost estimating and bidding purposes only; a minimum 5 set plan package must be purchased within 90 days for a license to build plan set; a credit will be applied towards your house plan upgrade

Sale: $510
Sale: $892
PDF Single Build
$1,050

PDFs NOW!™

Digital plans emailed to you in PDF format that allows for printing copies and sharing electronically with contractors, subs, decorators, and more. This package includes a license to build the home one time.

Sale: $892
Sale: $1,062
5 Printed Sets
$1,250

Five Printed Sets of Residential Construction Drawings are typically 24” x 36” documents and come with a license to construct a single residence shipped to a physical address. Keep in mind PDF Plan Packages are our most popular choice which allows you to print as many copies as you need and to electronically send files to your builder, subcontractors, etc.

Sale: $1,062
Sale: $1,190
5 Printed Sets + PDF
$1,400

PDFs NOW!™

Digital plan emailed to you in PDF format that allows for printing copies on a home printer or local print shop and sharing with contractors, subs, decorators, and more. PLUS five printed sets shipped and delivered 3-5 business days.

Sale: $1,190
Sale: $1,785
CAD + PDF Single Build
$2,100

CAD files are a complete set of construction drawings delivered electronically. They can be used for any type of modification—including major design changes and engineering—and include a release granting permission to modify the plan. Most CAD plan orders are emailed the same or next business day.
 
This package also comes with a PDF set of plans and a copyright release for making modifications and printing unlimited copies.
 
CAD files are provided in .dwg format. For details on the specific CAD program used, please refer to the PLAN DETAILS section located above the floor plan on each plan’s page.

Sale: $1,785
  Select Foundation Option
  Add-Ons (Optional)
INCLUDED WITH YOUR PURCHASE

Free Ground shipping in the Continental U.S.

FREE

Design consultation with the architect or designer to discuss your plan

Home Building & Product Ideas Organizer

Sub Total
$0
Free Shipping
QUESTIONS OR NEED HELP ORDERING? LIVE CHAT OR CALL US AT 866-214-2242
Plan Packages

Each set of construction documents includes detailed, dimensioned floor plans, basic electric layouts, cross sections, roof details, cabinet layouts and elevations, as well as general IRC specifications. They contain virtually all of the information required to construct your home. The typical plan set does not include any plumbing, HVAC drawings, or engineering stamps due to the wide variety of specific needs, local codes, and climatic conditions. These details and specifications are easily obtained from your builder, contractors, and/or local engineers.

BEST PRICE GUARANTEE

find the same house plan (modifications included!) and package for less on another site, show us the URL and we'll give you the difference plus an additional 5% back.

100% SATISFACTION GUARANTEE

We offer a one-time, 30-day exchange policy for unused, non-electronic plan packages in the event you aren't satisfied with your first selection.

 
 

Plan 4209  Back to plan page

Loading...