Get discounts,
promos, see our
newest plans
and more!
+ 15% off any plan
See terms opt out anytime


No Thanks

Thanks for
signing up!


Use Code:

SIGNUP15

And save 15% off any plan!

Check your email for details.

CLOSE
Search Plans
Customer Reviews
     
15% off ALL House Plans Sitewide
15% off ALL House Plans Sitewide
15% off ALL House Plans Sitewide

Code: HONOR
Sale ends midnight 5/31/2026 PST

Sq Ft
1,919 FT²

Beds
3

Baths
2.5

Stories
1

Garage
2

Depth
59' 8"

Width
69'
On Sale
$1,105.00
$1,300.00
© copyright by designer
 View All 5 Images | Photographs may reflect modified home
Sq Ft
1,919 FT²
Beds
3
Baths
2.5
Stories
1
Garage
2
Depth
59' 8"
Width
69'
 
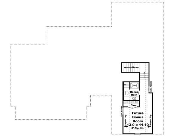
Click to Zoom In on Floor Plan
© copyright by designer
 
 

About This Plan

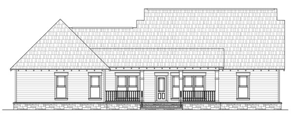
Looking for the plan that has it all? Then look no further. This home is packed with all the features that you've always wanted, all around 1900 s.f. A foyer, formal dining room, and half bath are all extras that you would expect to find in a much larger home. The great room includes vaulted ceilings, built-in cabinets and a gas log fireplace. The kitchen is well-equipped and is located within close proximity to the breakfast area, dining room, and garage entrance. The master suite includes a trayed ceiling, dual lavatories, compartmented toilet, whirlpool tub, separate shower, and his and hers closets. Each of the other bedrooms also feature individual walk-in closets and share a bath with separate tub and toilet room. The front and rear porches provide perfect outdoor living space. The bonus room is also a great place for a playroom / gameroom and even has space for a future bath. The many available features and flexibility of this home make it the perfect choice for you and your family. 

See All Plan Options
 

FEATURES & DETAILS

Kitchen features
Country Kitchen
Nook / Breakfast Area
Peninsula / Eating Bar
Bedroom features
Double Vanity Sink
His and Hers Primary Closets
Primary Bdrm Main Floor
Separate Tub and Shower
Split Bedrooms
Walk-in Closet
Exterior features
Covered Front Porch
Covered Rear Porch
Front Porch
Rear Porch
Foundation Options
Basement
Crawlspace
Slab
Lot Options
Suited for corner lot
Suited for sloping lot
Suited for view lot
Additional features
Bonus Room
Exercise Room
Fireplace
Foyer
Great Room
Home Office
Laundry 1st Fl
Open Floor Plan
Storage Space
Unfinished Space
Workshop
Garage Location
Side
Garage Options
Attached
Oversized
1,919 Ft
2
Total Heated
1,919 Ft
2
1st Floor
3
Bedrooms
2.5
Bathrooms
2
Garage
1
Stories
69' 0"
Width
59' 8"
Depth
24' 2"
Height
9' 0"
Main Floor Ceiling
2x4
Framing
Stick
Roof Framing
10/12
Primary Roof Pitch
12:12
Secondary Roof Pitch
4:12
Teritary Roof Pitch
Single
Dwelling Number
2nd Floor
Bonus Access

Unheated Living Space
714 Ft
2
Garage
429 Ft
2
Porch
338 Ft
2
Bonus Room
 

Plan Package Options

 Select Plan Package
 Need To Reverse Plan? (Optional)
  Select Foundation Option
  Add-Ons (Optional)
INCLUDED WITH YOUR PURCHASE

Free Ground shipping in the U.S.

FREE

Home Building & Product Ideas Organizer

Sub Total
$0
Free Shipping
QUESTIONS OR NEED HELP ORDERING? LIVE CHAT OR CALL US AT 866-214-2242
Plan Packages

Each set of construction documents typically includes detailed, dimensioned floor plans, basic electric layouts, cross sections, roof details, cabinet layouts, and elevations, as well as general IRC specifications. Please refer to the ARCHITECT or DESIGNER’S PLAN DETAILS link above the floor plan on any plan page to determine the specific details for each plan. Our house plans contain virtually all of the information required to construct your home. The typical plan set does not include plumbing, HVAC drawings, or engineering stamps due to the wide variety of specific needs, local codes, and climatic conditions. These details and specifications are easily obtained from your builder, contractors, and/or local engineers.

BEST PRICE GUARANTEE

Find the same house plan (modifications included!) and package for less on another site, show us the URL and we'll give you the difference plus an additional 10% back.

100% SATISFACTION GUARANTEE

We offer a one-time, 30-day exchange policy for unused, printed plan packages in the event you aren't satisfied with your first selection.

Customer Reviews of House Plan 5863
7/11/2012
William of BLOOMINGTON, IN
Customer Review:
We are just beginning construction, but the service I received was outstanding and the designer has been prompt and helpful about answering questions.

SEE All Reviews
 
 

Plan 5863  Back to plan page

Loading...