Get discounts,
promos, see our
newest plans
and more!
+ 15% off any plan
See terms opt out anytime


No Thanks

Thanks for
signing up!


Use Code:

SIGNUP15

And save 15% off any plan!

Check your email for details.

CLOSE
Search Plans
     
20% Off House Plans Sitewide Ends Tuesday
20% Off House Plans Sitewide Ends Tuesday
20% Off House Plans Sitewide Ends Tuesday

Code: VET20
Sale ends midnight 11/11/2025 PST

Sq Ft
1,915 FT²

Beds
3

Baths
2.5

Stories
1.5

Garage
2

Depth
75' 10"

Width
29' 11"
On Sale
$796.00
$995.00
© copyright by designer
 View All 4 Images | Photographs may reflect modified home
Sq Ft
1,915 FT²
Beds
3
Baths
2.5
Stories
1.5
Garage
2
Depth
75' 10"
Width
29' 11"
 
Click to Zoom In on Floor Plan
© copyright by designer
 
 

About This Plan

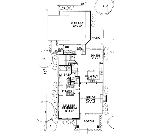
The Rosedale is a design for today that would fit in many traditional neighborhoods with narrow lots whether new or on an infill lot. The home has a spacious feel with a cathedral ceiling in the Great Room and open look through the Kitchen and Dining Room into the backyard. The Master Bedroom is conveniently located on the first floor and has a built-in set of drawers in the Dressing space before entering the elegant Master Bath. The design is functional as well with a family Mud Room at the Garage entrance to the home. Upstairs you see the built-in desk and cozy Play space before entering the large secondary Bedrooms. 

See All Plan Options
 

FEATURES & DETAILS

Kitchen features
Kitchen Island
Exterior features
Front Porch
Foundation Options
Crawlspace
Slab
Lot Options
Suited for narrow lot
Additional features
Fireplace
Garage Location
Side
Garage Options
Attached
1,915 Ft
2
Total Heated
1,297 Ft
2
1st Floor
618 Ft
2
2nd Floor
3
Bedrooms
2.5
Bathrooms
2
Garage
1.5
Stories
29' 11"
Width
75' 10"
Depth
9' 0"
Main Floor Ceiling
9' 0"
Upper Floor Ceiling
2x4
Framing
7/12
Primary Roof Pitch
6/12
Secondary Roof Pitch
6/12
Porch Roof Pitch
Single
Dwelling Number
None
Bonus Access

Unheated Living Space
444 Ft
2
Garage
126 Ft
2
Porch
120 Ft
2
Patio
 

Plan Package Options

 Select Plan Package
Sale: $796
PDF Single Build
$995

Digital plans emailed to you in PDF format that allows for printing copies and sharing electronically with contractors, subs, decorators, and more. This package includes a license to build the home one time.

Sale: $796
Sale: $1,596
CAD + PDF Single Build
$1,995

States N/A: TX,NM,LA,AR

CAD files are a complete set of construction drawings delivered electronically. They can be used for any type of modification—including major design changes and engineering—and include a release granting permission to modify the plan. Most CAD plan orders are emailed the same or next business day.
 
This package also comes with a PDF set of plans and a copyright release for making modifications and printing unlimited copies.
 
CAD files are provided in .dwg format. For details on the specific CAD program used, please refer to the PLAN DETAILS section located above the floor plan on each plan’s page.

Sale: $1,596
 Need To Reverse Plan? (Optional)
$200
Readable Reverse

Reverse house plans with readable text and dimensions 

$200
  Select Foundation Option
  Add-Ons (Optional)
INCLUDED WITH YOUR PURCHASE

Free Ground shipping in the Continental U.S.

FREE

Design consultation with the architect or designer to discuss your plan

Home Building & Product Ideas Organizer

Sub Total
$0
Free Shipping
IMPORTANT NOTE: Due to state regulations, the CAD version may not be sold to residents of AL, TN, TX, NM and LA. If residing in any of the aforementioned states, the PDF version does not come with a release to make plan modifications. Modifications can be provided by the original architect. Please contact us for more information.
QUESTIONS OR NEED HELP ORDERING? LIVE CHAT OR CALL US AT 866-214-2242
Plan Packages

Each set of construction documents includes detailed, dimensioned floor plans, basic electric layouts, cross sections, roof details, cabinet layouts and elevations, as well as general IRC specifications. They contain virtually all of the information required to construct your home. The typical plan set does not include any plumbing, HVAC drawings, or engineering stamps due to the wide variety of specific needs, local codes, and climatic conditions. These details and specifications are easily obtained from your builder, contractors, and/or local engineers.

BEST PRICE GUARANTEE

find the same house plan (modifications included!) and package for less on another site, show us the URL and we'll give you the difference plus an additional 5% back.

100% SATISFACTION GUARANTEE

We offer a one-time, 30-day exchange policy for unused, non-electronic plan packages in the event you aren't satisfied with your first selection.

 
 

Plan 2899  Back to plan page

Loading...