Get discounts,
promos, see our
newest plans
and more!
+ 15% off any plan
See terms opt out anytime


No Thanks

Thanks for
signing up!


Use Code:

SIGNUP15

And save 15% off any plan!

Check your email for details.

CLOSE
Search Plans
     
15% Off House Plans Sitewide Ends Sunday
15% Off House Plans Sitewide Ends Sunday
15% Off House Plans Sitewide Ends Sunday

Code: SAVE15
Sale ends midnight 11/16/2025 PST

The Riverbend Carriage House, THD-2310

 
 

Sq Ft
1,548 FT²

Beds
1

Baths
2

Stories
2

Garage
3

Depth
45'

Width
57' 6"
On Sale
$1,100.75
$1,295.00
© copyright by designer
 View All 4 Images | Photographs may reflect modified home
Sq Ft
1,548 FT²
Beds
1
Baths
2
Stories
2
Garage
3
Depth
45'
Width
57' 6"
 
Click to Zoom In on Floor Plan
© copyright by designer
 
 

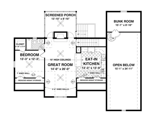
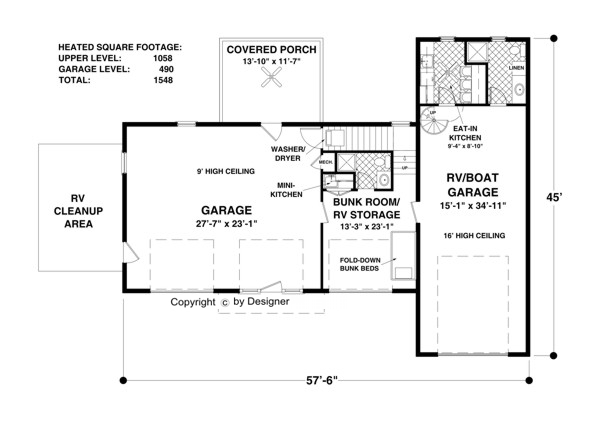
About This Plan

This functional design offers much more than just garage space! The versatile arrangement has parking
for 2 vehicles, 1 small RV such as a 4-wheeler, etc. and a larger garage for a boat or a luxury RV.
The small RV storage area could also serve as a bunk room since it features a mini kitchen and a
bathroom with a shower. Located behind the larger RV storage garage is an eat-in kitchen and another
full bath with a shower. A spiral staircase leads up to a private bunk room. The main garage has 9
ft ceilings and accesses a laundry closet, a covered porch and an RV cleanup pad. The upper level is
accessed from the bunk room. Upstairs is a home away from home! The spacious family room features a
fireplace and a vaulted ceiling with a ceiling fan and has doors leading to a screened porch.
Adjoining the family room is an eat-in kitchen with a snack bar. This level is completed by a bedroom
which features a separate entry to the main bathroom and a walk-in closet. 

See All Plan Options
 

FEATURES & DETAILS

Foundation Options
Slab
Garage Location
Front
Garage Options
Attached
Front-entry
Oversized
With Living Space
1,548 Ft
2
Total Heated
1,058 Ft
2
1st Floor
1
Bedrooms
2
Bathrooms
3
Garage
2
Stories
57' 6"
Width
45' 0"
Depth
9' 0"
Main Floor Ceiling
8' 0"
Upper Floor Ceiling
2x4
Framing
Stick
Roof Framing
Garage
Dwelling Number

Unheated Living Space
490 Ft
2
Garage
Exterior Styles
Collections
 

Plan Package Options

 Select Plan Package
Sale: $718
PDF Bid Set
$845

PDFs NOW!™

Home plans stamped "NOT FOR CONSTRUCTION" for cost estimating and bidding purposes only; a minimum 5 set plan package must be purchased within 90 days for a license to build plan set; a credit will be applied towards your house plan upgrade

Sale: $718
Sale: $1,101
PDF Single Build
$1,295

PDFs NOW!™

Digital plans emailed to you in PDF format that allows for printing copies and sharing electronically with contractors, subs, decorators, and more. This package includes a license to build the home one time.

Sale: $1,101
Sale: $1,143
5 Printed Sets
$1,345

Five Printed Sets of Residential Construction Drawings are typically 24” x 36” documents and come with a license to construct a single residence shipped to a physical address. Keep in mind PDF Plan Packages are our most popular choice which allows you to print as many copies as you need and to electronically send files to your builder, subcontractors, etc.

Sale: $1,143
Sale: $1,186
8 Printed Sets
$1,395

Eight Printed Sets of Construction Drawings, typically 24” x 36” documents, with a license to construct a single residence shipped to your physical address. PDF Plan Packages are our most popular choice which allows you to print as many copies as you need and to electronically send files to your builder, subcontractors, bank/mortgage reps, material stores, decorators and more.

Sale: $1,186
Sale: $1,526
CAD + PDF Single Build
$1,795

CAD files are a complete set of construction drawings delivered electronically. They can be used for any type of modification—including major design changes and engineering—and include a release granting permission to modify the plan. Most CAD plan orders are emailed the same or next business day.
 
This package also comes with a PDF set of plans and a copyright release for making modifications and printing unlimited copies.
 
CAD files are provided in .dwg format. For details on the specific CAD program used, please refer to the PLAN DETAILS section located above the floor plan on each plan’s page.

Sale: $1,526
 Need To Reverse Plan? (Optional)
$295
Readable Reverse

Reverse house plans with readable text and dimensions 

$295
  Select Foundation Option
  Add-Ons (Optional)
INCLUDED WITH YOUR PURCHASE

Free Ground shipping in the Continental U.S.

FREE

Design consultation with the architect or designer to discuss your plan

Home Building & Product Ideas Organizer

Sub Total
$0
Free Shipping
QUESTIONS OR NEED HELP ORDERING? LIVE CHAT OR CALL US AT 866-214-2242
Plan Packages

Each set of construction documents includes detailed, dimensioned floor plans, basic electric layouts, cross sections, roof details, cabinet layouts and elevations, as well as general IRC specifications. They contain virtually all of the information required to construct your home. The typical plan set does not include any plumbing, HVAC drawings, or engineering stamps due to the wide variety of specific needs, local codes, and climatic conditions. These details and specifications are easily obtained from your builder, contractors, and/or local engineers.

BEST PRICE GUARANTEE

find the same house plan (modifications included!) and package for less on another site, show us the URL and we'll give you the difference plus an additional 5% back.

100% SATISFACTION GUARANTEE

We offer a one-time, 30-day exchange policy for unused, non-electronic plan packages in the event you aren't satisfied with your first selection.

 
 

Plan 2310  Back to plan page

Loading...