Get discounts,
promos, see our
newest plans
and more!
+ 15% off any plan
See terms opt out anytime


No Thanks

Thanks for
signing up!


Use Code:

SIGNUP15

And save 15% off any plan!

Check your email for details.

CLOSE
Search Plans
Customer Reviews
     
15% off ALL House Plans Sitewide
15% off ALL House Plans Sitewide
15% off ALL House Plans Sitewide

Code: HONOR
Sale ends midnight 5/31/2026 PST

Sq Ft
5,077 FT²

Beds
5

Baths
4.5

Stories
2

Garage
4

Depth
79' 6"

Width
92'
On Sale
$1,827.50
$2,150.00
© copyright by designer
 View All 5 Images | Photographs may reflect modified home
Sq Ft
5,077 FT²
Beds
5
Baths
4.5
Stories
2
Garage
4
Depth
79' 6"
Width
92'
 
Click to Zoom In on Floor Plan
© copyright by designer
 
 

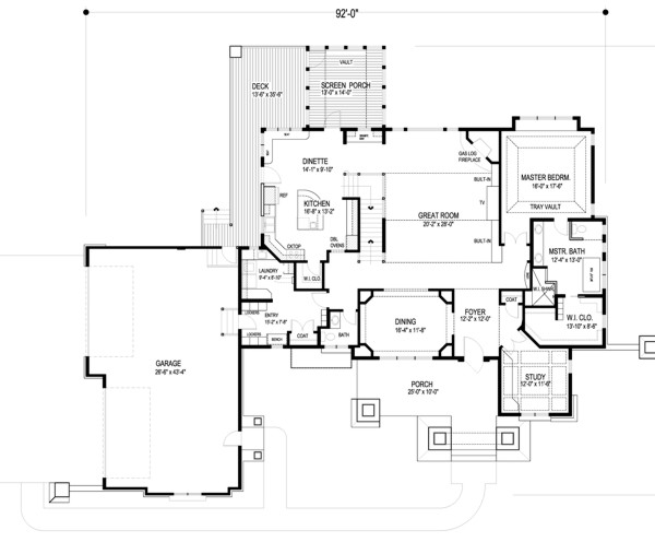
About This Plan

Welcome home to this delightful 5 bedroom, 4 bathroom Craftsman gem. Boasting 5,077 sq. ft. when the basement is finished, this home has everything needed for todays active family. This master-on-the-main design features a private study with a coffered ceiling, an elegant dining room and spacious great room with a corner fireplace. The gourmet kitchen has a functional center island with a prep sink, double ovens, a separate cook-top and a walk-in pantry closet. The dinette area features built-in seating and accesses both the screen porch and the deck. Secluded in the back corner, the master suite features a dramatic tray ceiling and multiple windows. The master bath has a walk-in shower, private toilet closet, double bowl vanity and a soaking tub. Completing this suite is an oversized walk-in closet. The opposite side of this level houses a highly functional laundry room and an entry hall with storage lockers and a bench seat.

Ascend the stairs to find three additional bedrooms. Two bedrooms share a spacious shower and toilet area, while each having private sinks. All bedrooms have walk-in closets. Bedroom #2, located on the back of the house, has a private bathroom with a tub.

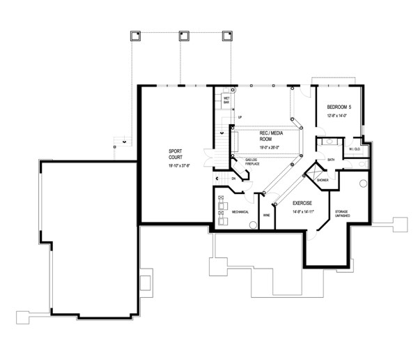
The basement level of this home has a combination recreation/media room with a corner fireplace and a wet bar. Also on this level are both an exercise room and a sport court! Another plus on this lower level is Bedroom #5 which has a walk-in closet. An oversized bathroom with a private shower room is centrally located on this level. Rounding out this level is a wine cellar, a spacious mechanical area and ample unfinished storage space.

 

See All Plan Options
 

FEATURES & DETAILS

Foundation Options
Basement
Crawlspace
Slab
Garage Location
Side
Garage Options
Attached
Side-entry
5,077 Ft
2
Total Heated
2,649 Ft
2
1st Floor
1,002 Ft
2
2nd Floor
1,426 Ft
2
Lower Floor
5
Bedrooms
4.5
Bathrooms
4
Garage
2
Stories
92' 0"
Width
79' 6"
Depth
34' 8"
Height
10' 1 1/8"' 0"
Main Floor Ceiling
8'1 1/8"' 0"
Upper Floor Ceiling
2x6
Framing
Truss
Roof Framing
Multi
Primary Roof Pitch
14/12
Secondary Roof Pitch
Single
Dwelling Number

Unheated Living Space
 

Plan Package Options

 Select Plan Package
 Need To Reverse Plan? (Optional)
  Select Foundation Option
  Add-Ons (Optional)
INCLUDED WITH YOUR PURCHASE

Free Ground shipping in the U.S.

FREE

Home Building & Product Ideas Organizer

Sub Total
$0
Free Shipping
QUESTIONS OR NEED HELP ORDERING? LIVE CHAT OR CALL US AT 866-214-2242
Plan Packages

Each set of construction documents typically includes detailed, dimensioned floor plans, basic electric layouts, cross sections, roof details, cabinet layouts, and elevations, as well as general IRC specifications. Please refer to the ARCHITECT or DESIGNER’S PLAN DETAILS link above the floor plan on any plan page to determine the specific details for each plan. Our house plans contain virtually all of the information required to construct your home. The typical plan set does not include plumbing, HVAC drawings, or engineering stamps due to the wide variety of specific needs, local codes, and climatic conditions. These details and specifications are easily obtained from your builder, contractors, and/or local engineers.

BEST PRICE GUARANTEE

Find the same house plan (modifications included!) and package for less on another site, show us the URL and we'll give you the difference plus an additional 10% back.

100% SATISFACTION GUARANTEE

We offer a one-time, 30-day exchange policy for unused, printed plan packages in the event you aren't satisfied with your first selection.

 
 

Plan 1901  Back to plan page

Loading...