Get discounts,
promos, see our
newest plans
and more!
+ 15% off any plan
See terms opt out anytime


No Thanks

Thanks for
signing up!


Use Code:

SIGNUP15

And save 15% off any plan!

Check your email for details.

CLOSE
Search Plans
     
15% Off House Plans Sitewide Ends Sunday
15% Off House Plans Sitewide Ends Sunday
15% Off House Plans Sitewide Ends Sunday

Code: SAVE15
Sale ends midnight 11/16/2025 PST

Sq Ft
1,509 FT²

Beds
3

Baths
2

Stories
1

Garage
2

Depth
48' 4"

Width
62'
On Sale
$1,105.00
$1,300.00
© copyright by designer
 View All 7 Images | Photographs may reflect modified home | Video Tour
Sq Ft
1,509 FT²
Beds
3
Baths
2
Stories
1
Garage
2
Depth
48' 4"
Width
62'
 

 
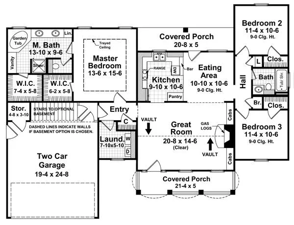
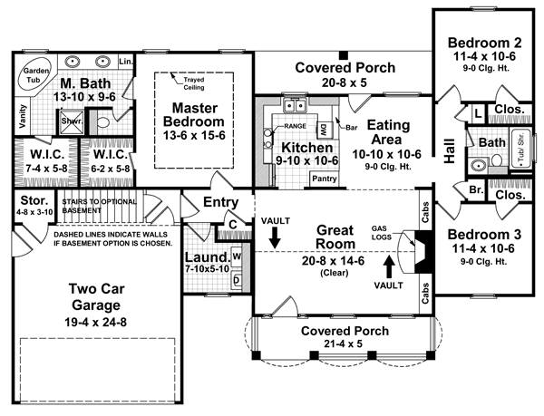
Click to Zoom In on Floor Plan
© copyright by designer
 
 

About This Plan

This home provides a very functional split-floor plan layout with many of the features that your family desires. Expansive master bedroom / bath with trayed ceiling and plenty of storage space in the his and her walk-in closets. Large great room with vaulted ceiling and gas log fireplace. Front and rear covered porches. Laundry Room. Open kitchen layout with plenty of counter space for that growing family. Basement foundation option. Great value with a wide variety of innovative features. Make this your home today! 

See All Plan Options
 

FEATURES & DETAILS

Kitchen features
Nook / Breakfast Area
Bedroom features
Double Vanity Sink
His and Hers Primary Closets
Primary Bdrm Main Floor
Separate Tub and Shower
Walk-in Closet
Exterior features
Covered Front Porch
Covered Rear Porch
Front Porch
Rear Porch
Foundation Options
Basement
Crawlspace
Slab
Lot Options
Suited for corner lot
Suited for sloping lot
Suited for view lot
Additional features
Exercise Room
Fireplace
Great Room
Home Office
Laundry 1st Fl
Open Floor Plan
Storage Space
Workshop
Garage Location
Front
Garage Options
Attached
Front-entry
Oversized
1,509 Ft
2
Total Heated
3
Bedrooms
2
Bathrooms
2
Garage
1
Stories
62' 0"
Width
48' 4"
Depth
22' 0"
Height
9' 0"
Main Floor Ceiling
2x4
Framing
Stick
Roof Framing
8/12
Primary Roof Pitch
12 in 12
Secondary Roof Pitch
Single
Dwelling Number
None
Bonus Access

Unheated Living Space
519 Ft
2
Garage
210 Ft
2
Porch
 

Plan Package Options

 Select Plan Package
Sale: $978
Study Set - Printed
$1,150
One printed set of house plans stamped NOT FOR CONSTRUCTION". This set is intended for review purposes and are mailed to you. To build from the plans, you need to upgrade to a licensed set.
Sale: $978
Sale: $1,105
PDF Single Build
$1,300

Digital plans emailed to you in PDF format that allows for printing copies and sharing electronically with contractors, subs, decorators, and more. This package includes a license to build the home one time.

Sale: $1,105
Sale: $1,190
5 Printed Sets
$1,400

Five Printed Sets of Residential Construction Drawings are typically 24” x 36” documents and come with a license to construct a single residence shipped to a physical address. Keep in mind PDF Plan Packages are our most popular choice which allows you to print as many copies as you need and to electronically send files to your builder, subcontractors, etc.

Sale: $1,190
Sale: $1,360
5 Printed Sets + PDF
$1,600

Digital plan emailed to you in PDF format that allows for printing copies on a home printer or local print shop and sharing with contractors, subs, decorators, and more. PLUS five printed sets shipped and delivered 3-5 business days.

Sale: $1,360
Sale: $1,658
CAD + PDF Single Build
$1,950

CAD files are a complete set of construction drawings delivered electronically. They can be used for any type of modification—including major design changes and engineering—and include a release granting permission to modify the plan. Most CAD plan orders are emailed the same or next business day.
 
This package also comes with a PDF set of plans and a copyright release for making modifications and printing unlimited copies.
 
CAD files are provided in .dwg format. For details on the specific CAD program used, please refer to the PLAN DETAILS section located above the floor plan on each plan’s page.

Sale: $1,658
 Need To Reverse Plan? (Optional)
$150
Readable Reverse

Reverse house plans with readable text and dimensions 

$150
  Select Foundation Option
  Add-Ons (Optional)
INCLUDED WITH YOUR PURCHASE

Free Ground shipping in the Continental U.S.

FREE

Design consultation with the architect or designer to discuss your plan

Home Building & Product Ideas Organizer

Sub Total
$0
Free Shipping
QUESTIONS OR NEED HELP ORDERING? LIVE CHAT OR CALL US AT 866-214-2242
Plan Packages

Each set of construction documents includes detailed, dimensioned floor plans, basic electric layouts, cross sections, roof details, cabinet layouts and elevations, as well as general IRC specifications. They contain virtually all of the information required to construct your home. The typical plan set does not include any plumbing, HVAC drawings, or engineering stamps due to the wide variety of specific needs, local codes, and climatic conditions. These details and specifications are easily obtained from your builder, contractors, and/or local engineers.

BEST PRICE GUARANTEE

find the same house plan (modifications included!) and package for less on another site, show us the URL and we'll give you the difference plus an additional 5% back.

100% SATISFACTION GUARANTEE

We offer a one-time, 30-day exchange policy for unused, non-electronic plan packages in the event you aren't satisfied with your first selection.

 
 

Plan 7090  Back to plan page

Loading...