Get discounts,
promos, see our
newest plans
and more!
+ 15% off any plan
See terms opt out anytime


No Thanks

Thanks for
signing up!


Use Code:

SIGNUP15

And save 15% off any plan!

Check your email for details.

CLOSE
Search Plans
Customer Reviews
     
America’s Top Home Plans
Trusted House Plans From America's Leading Architects & Designers

Sq Ft
1,500 FT²

Beds
3

Baths
2

Stories
1

Garage
2

Depth
47' 4"

Width
61'
From
$1,300.00
© copyright by designer
 View All 7 Images | Photographs may reflect modified home | Video Tour
Sq Ft
1,500 FT²
Beds
3
Baths
2
Stories
1
Garage
2
Depth
47' 4"
Width
61'
 

 
Click to Zoom In on Floor Plan
© copyright by designer
 
 

About This Plan

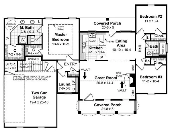
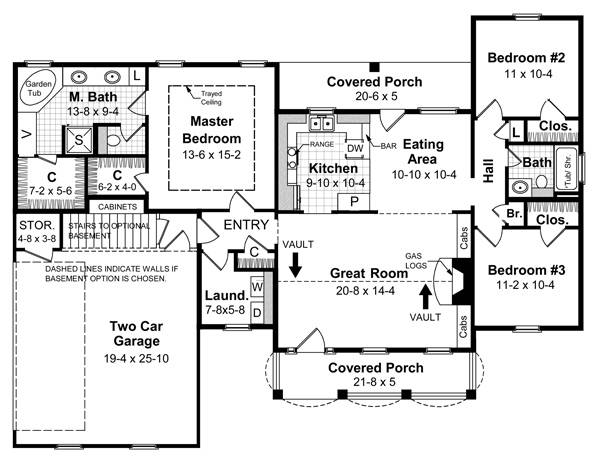
The Azalea Trail provides a very functional split-floorplan layout with many of the features that your family desires. Expansive Master Bedroom and Bath with plenty of storage space in the separate walk-in closets. Large great room with vaulted ceiling and gas log fireplace. Front and rear porches. Open kitchen layout with plenty of counter space for that growing family. Great value with a wide variety of innovative features. Make this your home today!
 

See All Plan Options
 

FEATURES & DETAILS

Bedroom features
Double Vanity Sink
His and Hers Primary Closets
Primary Bdrm Main Floor
Separate Tub and Shower
Split Bedrooms
Walk-in Closet
Exterior features
Covered Front Porch
Covered Rear Porch
Front Porch
Rear Porch
Foundation Options
Basement
Crawlspace
Slab
Lot Options
Suited for corner lot
Suited for sloping lot
Suited for view lot
Additional features
Dining Room
Exercise Room
Great Room
Home Office
Laundry 1st Fl
Open Floor Plan
Storage Space
Unfinished Space
Garage Location
Side
Garage Options
Attached
Oversized
1,500 Ft
2
Total Heated
1,500 Ft
2
1st Floor
3
Bedrooms
2
Bathrooms
2
Garage
1
Stories
61' 0"
Width
47' 4"
Depth
22' 0"
Height
9' 0"
Main Floor Ceiling
2x6
Framing
Stick
Roof Framing
8/12
Primary Roof Pitch
12:12
Dormer Roof Pitch
Single
Dwelling Number
None
Bonus Access

Unheated Living Space
507 Ft
2
Garage
22 Ft
2
Storage
211 Ft
2
Porch
 

Plan Package Options

 Select Plan Package
 Need To Reverse Plan? (Optional)
  Select Foundation Option
  Add-Ons (Optional)
INCLUDED WITH YOUR PURCHASE

Free Ground shipping in the U.S.

FREE

Home Building & Product Ideas Organizer

Sub Total
$0
Free Shipping
QUESTIONS OR NEED HELP ORDERING? LIVE CHAT OR CALL US AT 866-214-2242
Plan Packages

Each set of construction documents typically includes detailed, dimensioned floor plans, basic electric layouts, cross sections, roof details, cabinet layouts, and elevations, as well as general IRC specifications. Please refer to the ARCHITECT or DESIGNER’S PLAN DETAILS link above the floor plan on any plan page to determine the specific details for each plan. Our house plans contain virtually all of the information required to construct your home. The typical plan set does not include plumbing, HVAC drawings, or engineering stamps due to the wide variety of specific needs, local codes, and climatic conditions. These details and specifications are easily obtained from your builder, contractors, and/or local engineers.

BEST PRICE GUARANTEE

Find the same house plan (modifications included!) and package for less on another site, show us the URL and we'll give you the difference plus an additional 10% back.

100% SATISFACTION GUARANTEE

We offer a one-time, 30-day exchange policy for unused, printed plan packages in the event you aren't satisfied with your first selection.

 
 

Plan 5692  Back to plan page

Loading...