Get discounts,
promos, see our
newest plans
and more!
+ 15% off any plan
See terms opt out anytime


No Thanks

Thanks for
signing up!


Use Code:

SIGNUP15

And save 15% off any plan!

Check your email for details.

CLOSE
Search Plans
Customer Reviews
     
15% off ALL House Plans Sitewide
15% off ALL House Plans Sitewide
15% off ALL House Plans Sitewide

Code: SAVE15
Sale ends midnight 4/19/2026 PST

Sq Ft
2,532 FT²

Beds
4

Baths
2.5

Stories
1.5

Garage
2

Depth
62'

Width
60'
On Sale
$1,100.75
$1,295.00
© copyright by designer
 View All 4 Images | Photographs may reflect modified home
Sq Ft
2,532 FT²
Beds
4
Baths
2.5
Stories
1.5
Garage
2
Depth
62'
Width
60'
 
Click to Zoom In on Floor Plan
© copyright by designer
 
 

About This Plan

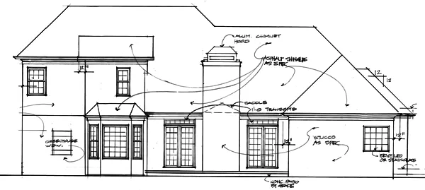
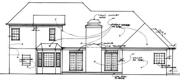
The phrase "simple elegance" best descibes this 2,532 sq. ft. design. The lower level master suite is an often requested feature. Also on the lower level is a 14'x12' study with vaulted ceiling. The oversized living room, measuring 22'x18', is highlighted by a fireplace flanked by doors leading to a 22'x14' patio. A 14'x14' dining room, breakfast room with bay window, gourmet kitchen, laundry room and powder room complete the lower level.

Upstairs a dramatic railed overlook leads to two roomy bedrooms, and an optional 246 square foot bonus/bedroom 4. This bonus area provides access to a large storage area which might be used for out-of-season clothes storage or even a retreat. A central hall bath is shared by the three bedrooms.

 

See All Plan Options
 

FEATURES & DETAILS

Exterior features
No Porch
Foundation Options
Basement
Garage Location
Side
Garage Options
Attached
2,532 Ft
2
Total Heated
1,954 Ft
2
1st Floor
578 Ft
2
2nd Floor
4
Bedrooms
2.5
Bathrooms
2
Garage
1.5
Stories
60' 0"
Width
62' 0"
Depth
32' 0"
Height
9' 0"
Main Floor Ceiling
8' 0"
Upper Floor Ceiling
2x4
Framing
Stick
Roof Framing
12/12
Primary Roof Pitch
Single
Dwelling Number
2nd Floor
Bonus Access

Unheated Living Space
246 Ft
2
Bonus Room
Exterior Styles
 

Plan Package Options

 Select Plan Package
  Select Foundation Option
  Add-Ons (Optional)
INCLUDED WITH YOUR PURCHASE

Free Ground shipping in the U.S.

FREE

Home Building & Product Ideas Organizer

Sub Total
$0
Free Shipping
QUESTIONS OR NEED HELP ORDERING? LIVE CHAT OR CALL US AT 866-214-2242
Plan Packages

Each set of construction documents typically includes detailed, dimensioned floor plans, basic electric layouts, cross sections, roof details, cabinet layouts, and elevations, as well as general IRC specifications. Please refer to the ARCHITECT or DESIGNER’S PLAN DETAILS link above the floor plan on any plan page to determine the specific details for each plan. Our house plans contain virtually all of the information required to construct your home. The typical plan set does not include plumbing, HVAC drawings, or engineering stamps due to the wide variety of specific needs, local codes, and climatic conditions. These details and specifications are easily obtained from your builder, contractors, and/or local engineers.

BEST PRICE GUARANTEE

Find the same house plan (modifications included!) and package for less on another site, show us the URL and we'll give you the difference plus an additional 10% back.

100% SATISFACTION GUARANTEE

We offer a one-time, 30-day exchange policy for unused, printed plan packages in the event you aren't satisfied with your first selection.

 
 

Plan 7621  Back to plan page

Loading...