Get discounts,
promos, see our
newest plans
and more!
+ 15% off any plan
See terms opt out anytime


No Thanks

Thanks for
signing up!


Use Code:

SIGNUP15

And save 15% off any plan!

Check your email for details.

CLOSE
Search Plans
Customer Reviews
     
15% off ALL House Plans Sitewide
15% off ALL House Plans Sitewide
15% off ALL House Plans Sitewide

Code: SAVE15
Sale ends midnight 4/12/2026 PST

Sq Ft
2,350 FT²

Beds
3

Baths
2.5

Stories
2

Garage
2

Depth
33'

Width
58'
On Sale
$1,576.75
$1,855.00
© copyright by designer
 View All 4 Images | Photographs may reflect modified home
Sq Ft
2,350 FT²
Beds
3
Baths
2.5
Stories
2
Garage
2
Depth
33'
Width
58'
 
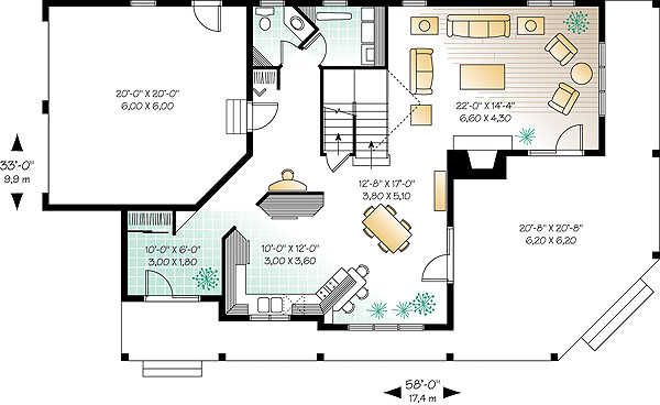
Click to Zoom In on Floor Plan
© copyright by designer
 
 

About This Plan

Something timeless, yet, totally today inbues this 2350 sq.ft. three bedrooms with 2.5 baths. Main-floor layout includes living room with fireplace, dining room, kitchen, half-bath, laundry room. French doors accent the upstairs master suite which opens to a balcony. Additional bedrooms share a spacious bath, and a relaxed upstairs family room can become bedroom #4. Two-car garage stores more than cars! 

See All Plan Options
 

FEATURES & DETAILS

Exterior features
Wraparound Porch
Foundation Options
Basement
Crawlspace
Slab
Garage Location
Side
Garage Options
Attached
2,770 Ft
2
Total Structure
2,350 Ft
2
Total Heated
1,107 Ft
2
1st Floor
1,243 Ft
2
2nd Floor
3
Bedrooms
2.5
Bathrooms
2
Garage
2
Stories
58' 0"
Width
33' 0"
Depth
33' 8"
Height
9' 0"
Main Floor Ceiling
8' 0"
Upper Floor Ceiling
2x6
Framing
Truss
Roof Framing
12
Primary Roof Pitch
12
Gable Roof Pitch
4
Porch Roof Pitch
Single
Dwelling Number
None
Bonus Access

Unheated Living Space
420 Ft
2
Garage
 

Plan Package Options

 Select Plan Package
 Need To Reverse Plan? (Optional)
  Select Foundation Option
  Add-Ons (Optional)
INCLUDED WITH YOUR PURCHASE

Free Ground shipping in the U.S.

FREE

Home Building & Product Ideas Organizer

Sub Total
$0
Free Shipping
Please allow 3-5 business days for delivery of this plan Please check our PDFs NOW collection for plans that can be downloaded and received immediately or live chat us to help you find a similar plan available now.
QUESTIONS OR NEED HELP ORDERING? LIVE CHAT OR CALL US AT 866-214-2242
Plan Packages

Each set of construction documents includes detailed, dimensioned floor plans, basic electric layouts, cross sections, roof details, cabinet layouts and elevations, as well as general IRC specifications. They contain virtually all of the information required to construct your home. The typical plan set does not include any plumbing, HVAC drawings, or engineering stamps due to the wide variety of specific needs, local codes, and climatic conditions. These details and specifications are easily obtained from your builder, contractors, and/or local engineers.

BEST PRICE GUARANTEE

Find the same house plan (modifications included!) and package for less on another site, show us the URL and we'll give you the difference plus an additional 10% back.

100% SATISFACTION GUARANTEE

We offer a one-time, 30-day exchange policy for unused, printed plan packages in the event you aren't satisfied with your first selection.

 
 

Plan 1174  Back to plan page

Loading...