Get discounts,
promos, see our
newest plans
and more!
+ 15% off any plan
See terms opt out anytime


No Thanks

Thanks for
signing up!


Use Code:

SIGNUP15

And save 15% off any plan!

Check your email for details.

CLOSE
Search Plans
Customer Reviews
     
22% Off House Plans Sitewide Ends Friday

Code: SAVE22
Sale ends midnight 12/5/2025 PST

Sq Ft
3,159 FT²

Beds
4

Baths
3.5

Stories
2

Garage
3

Depth
55'

Width
82'
From
$1,695.00
© copyright by designer
 View All 12 Images | Photographs may reflect modified home
Sq Ft
3,159 FT²
Beds
4
Baths
3.5
Stories
2
Garage
3
Depth
55'
Width
82'
 
Click to Zoom In on Floor Plan
© copyright by designer
 
 

About This Plan

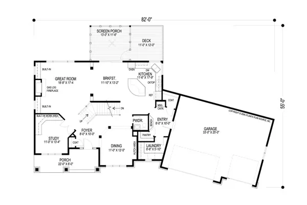
Welcome home to this delightful 3,159 sq. ft., 4 bedroom, 3.5 bathroom Craftsman gem. From the inviting covered front porch, youll cross the threshold into the dramatic angled foyer. Immediately on the right is the elegant dining room, complete with a recessed area for a hutch cabinet. Just a few steps away is the gourmet kitchen which has a spacious center island. The sunny breakfast room has an entrance to the relaxing screened porch, which accesses the deck. Just off the breakfast room is the enormous great room nicely appointed with a fireplace, picture window and built-in cabinetry and shelves. Beyond the great room is a private study with a built-in work area. Completing this main level youll find a powder room, walk-in pantry, 2 generous coat closets, an oversized laundry room and an entry hall off the garage that boasts a convenient message center and built-in bench.

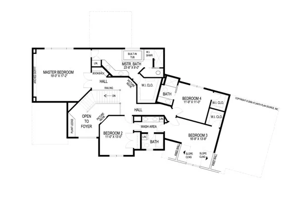
Ascend the stairs to the upper level where unexpected design elements await. Angled walls with picture niches, bookshelves and a plant ledge are sure to catch your eye. The secluded master suite measures 19 x 172 and features an arched soffit. The master bath is elegantly appointed with a built-in tub, walk-in shower, his-and-hers sinks, a linen closet and a private commode closet. The walk-in closet provides ample space for clothing. The three remaining bedrooms will accommodate family or guests with an abundance of closet space and two bathrooms.

 

See All Plan Options
 

FEATURES & DETAILS

Exterior features
Front Porch
Foundation Options
Basement
Crawlspace
Daylight Basement
Slab
Garage Location
Front
Garage Options
Attached
Front-entry
3,159 Ft
2
Total Heated
1,530 Ft
2
1st Floor
1,629 Ft
2
2nd Floor
4
Bedrooms
3.5
Bathrooms
3
Garage
2
Stories
82' 0"
Width
55' 0"
Depth
31' 9"
Height
9'-1 1/8"' 0"
Main Floor Ceiling
8'-1 1/8"' 0"
Upper Floor Ceiling
2x6
Framing
Truss
Roof Framing
9/12
Primary Roof Pitch
12/12
Secondary Roof Pitch
Single
Dwelling Number

Unheated Living Space
 

Plan Package Options

 Select Plan Package
$1,195
PDF Bid Set
PDFs NOW!™

Home plans stamped "NOT FOR CONSTRUCTION" for cost estimating and bidding purposes only; a minimum 5 set plan package must be purchased within 90 days for a license to build plan set; a credit will be applied towards your house plan upgrade

$1,195
$1,695
PDF Single Build
PDFs NOW!™

Digital plans emailed to you in PDF format that allows for printing copies and sharing electronically with contractors, subs, decorators, and more. This package includes a license to build the home one time.

$1,695
$1,745
5 Printed Sets

Five Printed Sets of Residential Construction Drawings are typically 24” x 36” documents and come with a license to construct a single residence shipped to a physical address. Keep in mind PDF Plan Packages are our most popular choice which allows you to print as many copies as you need and to electronically send files to your builder, subcontractors, etc.

$1,745
$1,795
8 Printed Sets

Eight Printed Sets of Construction Drawings, typically 24” x 36” documents, with a license to construct a single residence shipped to your physical address. PDF Plan Packages are our most popular choice which allows you to print as many copies as you need and to electronically send files to your builder, subcontractors, bank/mortgage reps, material stores, decorators and more.

$1,795
$2,395
CAD + PDF Single Build

CAD files are a complete set of construction drawings delivered electronically. They can be used for any type of modification—including major design changes and engineering—and include a release granting permission to modify the plan. Most CAD plan orders are emailed the same or next business day.
 
This package also comes with a PDF set of plans and a copyright release for making modifications and printing unlimited copies.
 
CAD files are provided in .dwg format. For details on the specific CAD program used, please refer to the PLAN DETAILS section located above the floor plan on each plan’s page.

$2,395
 Need To Reverse Plan? (Optional)
$295
Readable Reverse

Reverse house plans with readable text and dimensions 

$295
  Select Foundation Option
  Add-Ons (Optional)
INCLUDED WITH YOUR PURCHASE

Free Ground shipping in the Continental U.S.

FREE

Design consultation with the architect or designer to discuss your plan

Home Building & Product Ideas Organizer

Sub Total
$0
Free Shipping
QUESTIONS OR NEED HELP ORDERING? LIVE CHAT OR CALL US AT 866-214-2242
Plan Packages

Each set of construction documents includes detailed, dimensioned floor plans, basic electric layouts, cross sections, roof details, cabinet layouts and elevations, as well as general IRC specifications. They contain virtually all of the information required to construct your home. The typical plan set does not include any plumbing, HVAC drawings, or engineering stamps due to the wide variety of specific needs, local codes, and climatic conditions. These details and specifications are easily obtained from your builder, contractors, and/or local engineers.

BEST PRICE GUARANTEE

find the same house plan (modifications included!) and package for less on another site, show us the URL and we'll give you the difference plus an additional 5% back.

100% SATISFACTION GUARANTEE

We offer a one-time, 30-day exchange policy for unused, non-electronic plan packages in the event you aren't satisfied with your first selection.

 
 

Plan 1298  Back to plan page

Loading...