Get discounts,
promos, see our
newest plans
and more!
+ 15% off any plan
See terms opt out anytime


No Thanks

Thanks for
signing up!


Use Code:

SIGNUP15

And save 15% off any plan!

Check your email for details.

CLOSE
Search Plans
     
20% Off House Plans Sitewide Ends Tuesday
20% Off House Plans Sitewide Ends Tuesday
20% Off House Plans Sitewide Ends Tuesday

Code: VET20
Sale ends midnight 11/11/2025 PST

Sq Ft
1,600 FT²

Beds
3

Baths
2.5

Stories
1.5

Garage
2

Depth
48'

Width
43'
On Sale
$680.80
$851.00
© copyright by designer
 View All 4 Images | Photographs may reflect modified home
Sq Ft
1,600 FT²
Beds
3
Baths
2.5
Stories
1.5
Garage
2
Depth
48'
Width
43'
 
Click to Zoom In on Floor Plan
© copyright by designer
 
 

About This Plan

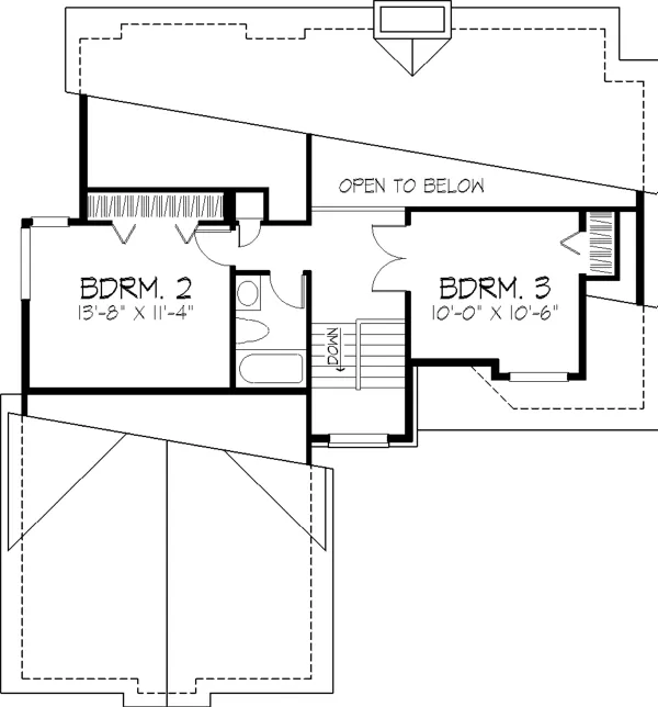
A stone exterior and plenty of neat details inside and out give this home its warm character. Inside, the Great Room serves as the focal point of the home, boasting a wet bar and access to a backyard deck. In the master suite, the private bath features ample closet space and a dual-sink vanity. 

See All Plan Options
 

FEATURES & DETAILS

Foundation Options
Basement
Lot Options
Suited for narrow lot
Suited for sloping lot
Suited for view lot
Garage Location
Front
Garage Options
Attached
Front-entry
1,600 Ft
2
Total Heated
1,054 Ft
2
1st Floor
546 Ft
2
2nd Floor
3
Bedrooms
2.5
Bathrooms
2
Garage
1.5
Stories
43' 0"
Width
48' 0"
Depth
21' 0"
Height
2x6
Framing
Combination
Roof Framing
Single
Dwelling Number
None
Bonus Access

Unheated Living Space
 

Plan Package Options

 Select Plan Package
Sale: $435
PDF Bid Set
$544

PDFs NOW!™

Home plans stamped "NOT FOR CONSTRUCTION" for cost estimating and bidding purposes only; a minimum 5 set plan package must be purchased within 90 days for a license to build plan set; a credit will be applied towards your house plan upgrade

Sale: $435
Sale: $681
PDF Single Build
$851

PDFs NOW!™

Digital plans emailed to you in PDF format that allows for printing copies and sharing electronically with contractors, subs, decorators, and more. This package includes a license to build the home one time.

Sale: $681
  Select Foundation Option
  Add-Ons (Optional)
INCLUDED WITH YOUR PURCHASE

Free Ground shipping in the Continental U.S.

FREE

Design consultation with the architect or designer to discuss your plan

Home Building & Product Ideas Organizer

Sub Total
$0
Free Shipping
QUESTIONS OR NEED HELP ORDERING? LIVE CHAT OR CALL US AT 866-214-2242
Plan Packages

Each set of construction documents includes detailed, dimensioned floor plans, basic electric layouts, cross sections, roof details, cabinet layouts and elevations, as well as general IRC specifications. They contain virtually all of the information required to construct your home. The typical plan set does not include any plumbing, HVAC drawings, or engineering stamps due to the wide variety of specific needs, local codes, and climatic conditions. These details and specifications are easily obtained from your builder, contractors, and/or local engineers.

BEST PRICE GUARANTEE

find the same house plan (modifications included!) and package for less on another site, show us the URL and we'll give you the difference plus an additional 5% back.

100% SATISFACTION GUARANTEE

We offer a one-time, 30-day exchange policy for unused, non-electronic plan packages in the event you aren't satisfied with your first selection.

 
 

Plan 1598  Back to plan page

Loading...