Get discounts,
promos, see our
newest plans
and more!
+ 15% off any plan
See terms opt out anytime


No Thanks

Thanks for
signing up!


Use Code:

SIGNUP15

And save 15% off any plan!

Check your email for details.

CLOSE
Search Plans
Customer Reviews
     
15% off ALL House Plans Sitewide
15% off ALL House Plans Sitewide
15% off ALL House Plans Sitewide

Code: SAVE15
Sale ends midnight 5/3/2026 PST

Sq Ft
2,104 FT²

Beds
3

Baths
2.5

Stories
2

Garage
2

Depth
68' 4"

Width
38' 6"
On Sale
$1,190.00
$1,400.00
© copyright by designer
 View All 4 Images | Photographs may reflect modified home
Sq Ft
2,104 FT²
Beds
3
Baths
2.5
Stories
2
Garage
2
Depth
68' 4"
Width
38' 6"
 
Click to Zoom In on Floor Plan
© copyright by designer
 
 

About This Plan

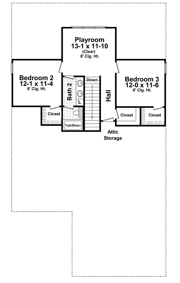
This inviting home has Craftsman styling with upscale features. The front and rear covered porches add usable outdoor living space. Great room features built in cabinets and a gas fireplace. The spacious kitchen has an island with an eating bar. The master bedroom opens into the well equipped bath with dual lavatories, corner tub, separate shower, and walk in closet. The flex space provides a perfect spot for the home office that you've always wanted. The two upstairs bedrooms share access to a large playroom area that could also be used as a gameroom. A bath with dual lavatories and compartmented tub & toilet is also provided. The two car garage opens into a private entrance and also features a large storage area. This is a very flexible home with lots of options. 

See All Plan Options
 

FEATURES & DETAILS

Kitchen features
Country Kitchen
Kitchen Island
Nook / Breakfast Area
Peninsula / Eating Bar
Walk-in Pantry
Bedroom features
Double Vanity Sink
His and Hers Primary Closets
Primary Bdrm Main Floor
Nursery Room
Separate Tub and Shower
Walk-in Closet
Exterior features
Covered Front Porch
Covered Rear Porch
Front Porch
Rear Porch
Foundation Options
Crawlspace
Slab
Lot Options
Suited for corner lot
Suited for narrow lot
Suited for sloping lot
Suited for view lot
Additional features
Bonus Room
Exercise Room
Foyer
Great Room
Home Office
Laundry 1st Fl
Library/Media Rm
Open Floor Plan
Rec Room
Storage Space
Workshop
Garage Location
Front
Garage Options
Attached
Front-entry
Oversized
2,104 Ft
2
Total Heated
1,424 Ft
2
1st Floor
680 Ft
2
2nd Floor
3
Bedrooms
2.5
Bathrooms
2
Garage
2
Stories
38' 6"
Width
68' 4"
Depth
26' 10"
Height
9' 0"
Main Floor Ceiling
8' 0"
Upper Floor Ceiling
2x4
Framing
Stick
Roof Framing
8/12
Primary Roof Pitch
Single
Dwelling Number
None
Bonus Access

Unheated Living Space
611 Ft
2
Garage
352 Ft
2
Porch
 

Plan Package Options

 Select Plan Package
 Need To Reverse Plan? (Optional)
  Select Foundation Option
  Add-Ons (Optional)
INCLUDED WITH YOUR PURCHASE

Free Ground shipping in the U.S.

FREE

Home Building & Product Ideas Organizer

Sub Total
$0
Free Shipping
QUESTIONS OR NEED HELP ORDERING? LIVE CHAT OR CALL US AT 866-214-2242
Plan Packages

Each set of construction documents typically includes detailed, dimensioned floor plans, basic electric layouts, cross sections, roof details, cabinet layouts, and elevations, as well as general IRC specifications. Please refer to the ARCHITECT or DESIGNER’S PLAN DETAILS link above the floor plan on any plan page to determine the specific details for each plan. Our house plans contain virtually all of the information required to construct your home. The typical plan set does not include plumbing, HVAC drawings, or engineering stamps due to the wide variety of specific needs, local codes, and climatic conditions. These details and specifications are easily obtained from your builder, contractors, and/or local engineers.

BEST PRICE GUARANTEE

Find the same house plan (modifications included!) and package for less on another site, show us the URL and we'll give you the difference plus an additional 10% back.

100% SATISFACTION GUARANTEE

We offer a one-time, 30-day exchange policy for unused, printed plan packages in the event you aren't satisfied with your first selection.

 
 

Plan 7682  Back to plan page

Loading...