Get discounts,
promos, see our
newest plans
and more!
+ 15% off any plan
See terms opt out anytime


No Thanks

Thanks for
signing up!


Use Code:

SIGNUP15

And save 15% off any plan!

Check your email for details.

CLOSE
Search Plans
Customer Reviews
     
20% off ALL House Plans Sitewide
20% off ALL House Plans Sitewide
20% off ALL House Plans Sitewide

Code: LOVE20
Sale ends midnight 2/15/2026 PST

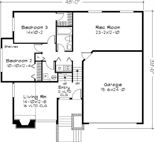
Sq Ft
2,335 FT²

Beds
3

Baths
3

Stories
2

Garage
2

Depth
39' 6"

Width
48'
On Sale
$703.20
$879.00
© copyright by designer
 View All 6 Images | Photographs may reflect modified home
Sq Ft
2,335 FT²
Beds
3
Baths
3
Stories
2
Garage
2
Depth
39' 6"
Width
48'
 
Click to Zoom In on Floor Plan
© copyright by designer
 
 

About This Plan

 

See All Plan Options
 

FEATURES & DETAILS

Kitchen features
Walk-in Pantry
Exterior features
Deck
No Porch
Foundation Options
Basement
Lot Options
Suited for narrow lot
Additional features
Fireplace
Garage Location
Front
Garage Options
Attached
Drive-under
Front-entry
2,335 Ft
2
Total Heated
255 Ft
2
1st Floor
1,167 Ft
2
2nd Floor
913 Ft
2
Lower Floor
3
Bedrooms
3
Bathrooms
2
Garage
2
Stories
48' 0"
Width
39' 6"
Depth
2x6
Framing
Single
Dwelling Number

Unheated Living Space
468 Ft
2
Garage
 

Plan Package Options

 Select Plan Package
  Select Foundation Option
  Add-Ons (Optional)
INCLUDED WITH YOUR PURCHASE

Free Ground shipping in the U.S.

FREE

Home Building & Product Ideas Organizer

Sub Total
$0
Free Shipping
QUESTIONS OR NEED HELP ORDERING? LIVE CHAT OR CALL US AT 866-214-2242
Plan Packages

Each set of construction documents includes detailed, dimensioned floor plans, basic electric layouts, cross sections, roof details, cabinet layouts and elevations, as well as general IRC specifications. They contain virtually all of the information required to construct your home. The typical plan set does not include any plumbing, HVAC drawings, or engineering stamps due to the wide variety of specific needs, local codes, and climatic conditions. These details and specifications are easily obtained from your builder, contractors, and/or local engineers.

BEST PRICE GUARANTEE

Find the same house plan (modifications included!) and package for less on another site, show us the URL and we'll give you the difference plus an additional 10% back.

100% SATISFACTION GUARANTEE

We offer a one-time, 30-day exchange policy for unused, printed plan packages in the event you aren't satisfied with your first selection.

 
 

Plan 6119  Back to plan page

Loading...