Get discounts,
promos, see our
newest plans
and more!
+ 15% off any plan
See terms opt out anytime


No Thanks

Thanks for
signing up!


Use Code:

SIGNUP15

And save 15% off any plan!

Check your email for details.

CLOSE
Search Plans
Customer Reviews
     
15% off ALL House Plans Sitewide
15% off ALL House Plans Sitewide
15% off ALL House Plans Sitewide

Code: SAVE15
Sale ends midnight 4/22/2026 PST

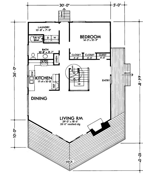
Sq Ft
1,920 FT²

Beds
3

Baths
2

Stories
1.5

Garage
2

Depth
54' 8"

Width
35'
On Sale
$723.35
$851.00
© copyright by designer
 View All 7 Images | Photographs may reflect modified home
Sq Ft
1,920 FT²
Beds
3
Baths
2
Stories
1.5
Garage
2
Depth
54' 8"
Width
35'
 
Click to Zoom In on Floor Plan
© copyright by designer
 
 

About This Plan

 

See All Plan Options
 

FEATURES & DETAILS

Exterior features
Deck
Front Porch
Foundation Options
Basement
Crawlspace
Daylight Basement
Lot Options
Suited for corner lot
Suited for narrow lot
Suited for sloping lot
Suited for view lot
Additional features
Fireplace
Garage Location
Under
Garage Options
Attached
Drive-under
Front-entry
1,920 Ft
2
Total Heated
1,240 Ft
2
1st Floor
710 Ft
2
2nd Floor
605 Ft
2
Lower Floor
3
Bedrooms
2
Bathrooms
2
Garage
1.5
Stories
35' 0"
Width
54' 8"
Depth
2x6
Framing
Single
Dwelling Number

Unheated Living Space
605 Ft
2
Garage
 

Plan Package Options

 Select Plan Package
  Select Foundation Option
  Add-Ons (Optional)
INCLUDED WITH YOUR PURCHASE

Free Ground shipping in the U.S.

FREE

Home Building & Product Ideas Organizer

Sub Total
$0
Free Shipping
QUESTIONS OR NEED HELP ORDERING? LIVE CHAT OR CALL US AT 866-214-2242
Plan Packages

Each set of construction documents typically includes detailed, dimensioned floor plans, basic electric layouts, cross sections, roof details, cabinet layouts, and elevations, as well as general IRC specifications. Please refer to the ARCHITECT or DESIGNER’S PLAN DETAILS link above the floor plan on any plan page to determine the specific details for each plan. Our house plans contain virtually all of the information required to construct your home. The typical plan set does not include plumbing, HVAC drawings, or engineering stamps due to the wide variety of specific needs, local codes, and climatic conditions. These details and specifications are easily obtained from your builder, contractors, and/or local engineers.

BEST PRICE GUARANTEE

Find the same house plan (modifications included!) and package for less on another site, show us the URL and we'll give you the difference plus an additional 10% back.

100% SATISFACTION GUARANTEE

We offer a one-time, 30-day exchange policy for unused, printed plan packages in the event you aren't satisfied with your first selection.

 
 

Plan 6127  Back to plan page

Loading...