Get discounts,
promos, see our
newest plans
and more!
+ 15% off any plan
See terms opt out anytime


No Thanks

Thanks for
signing up!


Use Code:

SIGNUP15

And save 15% off any plan!

Check your email for details.

CLOSE
Search Plans
     
20% Off House Plans Sitewide Ends Tuesday
20% Off House Plans Sitewide Ends Tuesday
20% Off House Plans Sitewide Ends Tuesday

Code: VET20
Sale ends midnight 11/11/2025 PST

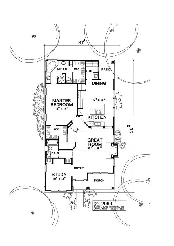
Sq Ft
2,087 FT²

Beds
3

Baths
3

Stories
1.5

Garage
0

Depth
56'

Width
31' 5"
On Sale
$1,156.00
$1,445.00
© copyright by architect
 View All 3 Images | Photographs may reflect modified home
Sq Ft
2,087 FT²
Beds
3
Baths
3
Stories
1.5
Garage
0
Depth
56'
Width
31' 5"
 
Click to Zoom In on Floor Plan
© copyright by architect
 
 

About This Plan

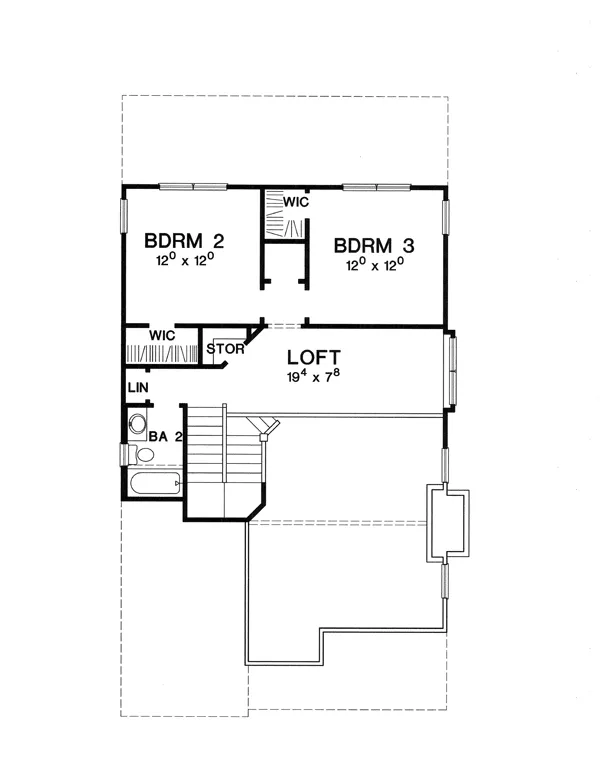
This charming Craftsman design would fit perfectly on an infill lot in a traditional neighborhood. Although the exterior resembles a much older home, the interior is designed for today with a Master Bedroom down with corner tub and shower, His and Hers vanities and large walk in closet. The vaulted Great Room is not only open to the front Porch but also to the huge Kitchen with oversized eat-at island. The Study could also function as a fourth Bedroom with the full bath nearby. The overlooking Loft expands the function of the second floor for the kids. 

See All Plan Options
 

FEATURES & DETAILS

Kitchen features
Kitchen Island
Bedroom features
Primary Bdrm Main Floor
Walk-in Closet
Exterior features
Covered Front Porch
Covered Rear Porch
Foundation Options
Crawlspace
Slab
Lot Options
Suited for corner lot
Suited for narrow lot
Additional features
Great Room
Loft / Balcony
2,087 Ft
2
Total Heated
1,450 Ft
2
1st Floor
637 Ft
2
2nd Floor
3
Bedrooms
3
Bathrooms
0
Garage
1.5
Stories
31' 5"
Width
56' 0"
Depth
10' 0"
Main Floor Ceiling
9' 0"
Upper Floor Ceiling
2x4
Framing
Stick
Roof Framing
6/12
Primary Roof Pitch
Single
Dwelling Number

Unheated Living Space
103 Ft
2
Porch
52 Ft
2
Patio
Exterior Styles
 

Plan Package Options

 Select Plan Package
Sale: $1,156
PDF Single Build
$1,445

Digital plans emailed to you in PDF format that allows for printing copies and sharing electronically with contractors, subs, decorators, and more. This package includes a license to build the home one time.

Sale: $1,156
Sale: $1,956
CAD + PDF Single Build
$2,445

States N/A: TX,NM,LA,AR

CAD files are a complete set of construction drawings delivered electronically. They can be used for any type of modification—including major design changes and engineering—and include a release granting permission to modify the plan. Most CAD plan orders are emailed the same or next business day.
 
This package also comes with a PDF set of plans and a copyright release for making modifications and printing unlimited copies.
 
CAD files are provided in .dwg format. For details on the specific CAD program used, please refer to the PLAN DETAILS section located above the floor plan on each plan’s page.

Sale: $1,956
 Need To Reverse Plan? (Optional)
$300
Readable Reverse

Reverse house plans with readable text and dimensions 

$300
  Select Foundation Option
  Add-Ons (Optional)
INCLUDED WITH YOUR PURCHASE

Free Ground shipping in the Continental U.S.

FREE

Design consultation with the architect or designer to discuss your plan

Home Building & Product Ideas Organizer

Sub Total
$0
Free Shipping
IMPORTANT NOTE: Due to state regulations, the CAD version may not be sold to residents of AL, TN, TX, NM and LA. If residing in any of the aforementioned states, the PDF version does not come with a release to make plan modifications. Modifications can be provided by the original architect. Please contact us for more information.
QUESTIONS OR NEED HELP ORDERING? LIVE CHAT OR CALL US AT 866-214-2242
Plan Packages

Each set of construction documents includes detailed, dimensioned floor plans, basic electric layouts, cross sections, roof details, cabinet layouts and elevations, as well as general IRC specifications. They contain virtually all of the information required to construct your home. The typical plan set does not include any plumbing, HVAC drawings, or engineering stamps due to the wide variety of specific needs, local codes, and climatic conditions. These details and specifications are easily obtained from your builder, contractors, and/or local engineers.

BEST PRICE GUARANTEE

find the same house plan (modifications included!) and package for less on another site, show us the URL and we'll give you the difference plus an additional 5% back.

100% SATISFACTION GUARANTEE

We offer a one-time, 30-day exchange policy for unused, non-electronic plan packages in the event you aren't satisfied with your first selection.

 
 

Plan 1777  Back to plan page

Loading...