Get discounts,
promos, see our
newest plans
and more!
+ 15% off any plan
See terms opt out anytime


No Thanks

Thanks for
signing up!


Use Code:

SIGNUP15

And save 15% off any plan!

Check your email for details.

CLOSE
Search Plans
Customer Reviews
     
22% Off House Plans Sitewide Ends Friday

Code: SAVE22
Sale ends midnight 12/5/2025 PST

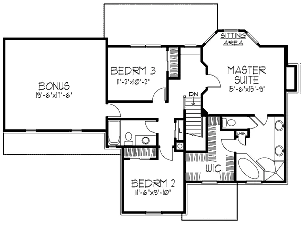
Sq Ft
1,956 FT²

Beds
4

Baths
2.5

Stories
2

Garage
2

Depth
42'

Width
57'
From
$851.00
© copyright by designer
 View All 4 Images | Photographs may reflect modified home
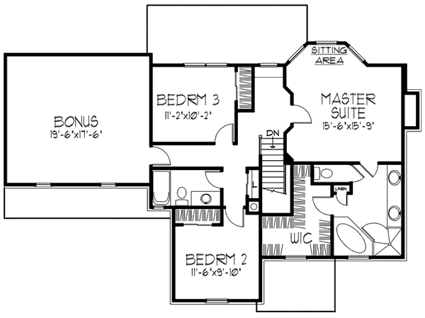
Sq Ft
1,956 FT²
Beds
4
Baths
2.5
Stories
2
Garage
2
Depth
42'
Width
57'
 
Click to Zoom In on Floor Plan
© copyright by designer
 
 

About This Plan

A formal dining room and a living room flank the foyer of this two-story home, where Colonial- style design features accent the exterior and a modern floorplan graces the interior. The spacious family room offers a fireplace and a bayed sitting area, and leads into the breakfast nook adjoining the roomy island kitchen. The luxurious master suite also boasts a bayed sitting area, as well as a generous walk-in closet and a private bath with a corner tub, a separate shower and a dual-sink vanity, while two additional bedrooms and a large bonus room above the garage share a second full bath. 

See All Plan Options
 

FEATURES & DETAILS

Foundation Options
Basement
Lot Options
Suited for corner lot
Suited for sloping lot
Suited for view lot
Garage Location
Rear
Garage Options
Attached
1,956 Ft
2
Total Heated
1,014 Ft
2
1st Floor
942 Ft
2
2nd Floor
4
Bedrooms
2.5
Bathrooms
2
Garage
2
Stories
57' 0"
Width
42' 0"
Depth
30' 0"
Height
2x4
Framing
Combination
Roof Framing
Single
Dwelling Number

Unheated Living Space
 

Plan Package Options

 Select Plan Package
$544
PDF Bid Set
PDFs NOW!™

Home plans stamped "NOT FOR CONSTRUCTION" for cost estimating and bidding purposes only; a minimum 5 set plan package must be purchased within 90 days for a license to build plan set; a credit will be applied towards your house plan upgrade

$544
$851
PDF Single Build
PDFs NOW!™

Digital plans emailed to you in PDF format that allows for printing copies and sharing electronically with contractors, subs, decorators, and more. This package includes a license to build the home one time.

$851
  Select Foundation Option
  Add-Ons (Optional)
INCLUDED WITH YOUR PURCHASE

Free Ground shipping in the Continental U.S.

FREE

Design consultation with the architect or designer to discuss your plan

Home Building & Product Ideas Organizer

Sub Total
$0
Free Shipping
QUESTIONS OR NEED HELP ORDERING? LIVE CHAT OR CALL US AT 866-214-2242
Plan Packages

Each set of construction documents includes detailed, dimensioned floor plans, basic electric layouts, cross sections, roof details, cabinet layouts and elevations, as well as general IRC specifications. They contain virtually all of the information required to construct your home. The typical plan set does not include any plumbing, HVAC drawings, or engineering stamps due to the wide variety of specific needs, local codes, and climatic conditions. These details and specifications are easily obtained from your builder, contractors, and/or local engineers.

BEST PRICE GUARANTEE

find the same house plan (modifications included!) and package for less on another site, show us the URL and we'll give you the difference plus an additional 5% back.

100% SATISFACTION GUARANTEE

We offer a one-time, 30-day exchange policy for unused, non-electronic plan packages in the event you aren't satisfied with your first selection.

 
 

Plan 1868  Back to plan page

Loading...