Get discounts,
promos, see our
newest plans
and more!
+ 15% off any plan
See terms opt out anytime


No Thanks

Thanks for
signing up!


Use Code:

SIGNUP15

And save 15% off any plan!

Check your email for details.

CLOSE
Search Plans
Customer Reviews
     
15% off ALL House Plans Sitewide
15% off ALL House Plans Sitewide
15% off ALL House Plans Sitewide

Code: HONOR
Sale ends midnight 5/31/2026 PST

Sq Ft
2,998 FT²

Beds
4

Baths
4

Stories
2

Garage
2

Depth
68'

Width
58' 8"
On Sale
$977.50
$1,150.00
© copyright by designer
 View All 14 Images | Photographs may reflect modified home
Sq Ft
2,998 FT²
Beds
4
Baths
4
Stories
2
Garage
2
Depth
68'
Width
58' 8"
 
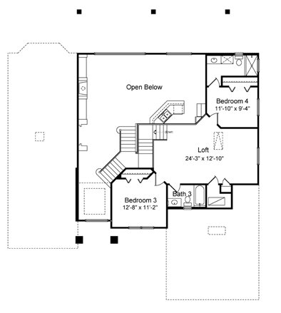
Click to Zoom In on Floor Plan
© copyright by designer
 
 

About This Plan

Soaring two-story ceilings and a converging stair help create the "wow factor" to this grand entry. The open, airy feel to this great room plan is perfect for entertaining. The front room is flexible as a living room or den/office. The kitchen is designed for ample storage and counter area and allows for views into the family room and the back yard. Privately tucked to the left of the home is the master suite with it's own patio access, and graciously appointed master bath. Upstairs, an oversized loft serves as a game area or even a home theater creating a "children's family room" away from the downstairs entertaining areas. The split secondary bedrooms also offer individual baths, which is ideal for children of opposite genders. 

See All Plan Options
 

FEATURES & DETAILS

Kitchen features
Kitchen Island
Nook / Breakfast Area
Peninsula / Eating Bar
Bedroom features
Double Vanity Sink
Primary Bdrm Main Floor
Separate Tub and Shower
Split Bedrooms
Walk-in Closet
Exterior features
Covered Rear Porch
Rear Porch
Foundation Options
Basement
Crawlspace
Slab
Lot Options
Suited for view lot
Additional features
Arches
Dining Room
Family Room
Fireplace
Formal LR
Foyer
Laundry 1st Fl
Loft / Balcony
Open Floor Plan
Vaulted Ceilings
Garage Location
Side
Garage Options
Attached
2,998 Ft
2
Total Heated
2,227 Ft
2
1st Floor
771 Ft
2
2nd Floor
4
Bedrooms
4
Bathrooms
2
Garage
2
Stories
58' 8"
Width
68' 0"
Depth
10' 0"
Main Floor Ceiling
8' 0"
Upper Floor Ceiling
2x4
Framing
Truss
Roof Framing
8/12
Primary Roof Pitch
Single
Dwelling Number

Unheated Living Space
 

Plan Package Options

 Select Plan Package
  Select Foundation Option
  Add-Ons (Optional)
INCLUDED WITH YOUR PURCHASE

Free Ground shipping in the U.S.

FREE

Home Building & Product Ideas Organizer

Sub Total
$0
Free Shipping
QUESTIONS OR NEED HELP ORDERING? LIVE CHAT OR CALL US AT 866-214-2242
Plan Packages

Each set of construction documents typically includes detailed, dimensioned floor plans, basic electric layouts, cross sections, roof details, cabinet layouts, and elevations, as well as general IRC specifications. Please refer to the ARCHITECT or DESIGNER’S PLAN DETAILS link above the floor plan on any plan page to determine the specific details for each plan. Our house plans contain virtually all of the information required to construct your home. The typical plan set does not include plumbing, HVAC drawings, or engineering stamps due to the wide variety of specific needs, local codes, and climatic conditions. These details and specifications are easily obtained from your builder, contractors, and/or local engineers.

BEST PRICE GUARANTEE

Find the same house plan (modifications included!) and package for less on another site, show us the URL and we'll give you the difference plus an additional 10% back.

100% SATISFACTION GUARANTEE

We offer a one-time, 30-day exchange policy for unused, printed plan packages in the event you aren't satisfied with your first selection.

Customer Reviews of House Plan 6514
7/24/2014
Stone Family
Customer Review:
Extremely pleased with experience. Our sales representative Christine was very helpful, friendly, and knowledgeable. We made some minor modification to the plan and she coordinated the process and insured we were satisfied with the outcome. Very professional, and completed plans delivered as promised in an expedited manner. Thank you for treating us as people, not just an account number that needed to be processed. Kudos to the House Designers Team and their concept of customer satisfaction.

SEE All Reviews
 
 

Plan 6514  Back to plan page

Loading...