Get discounts,
promos, see our
newest plans
and more!
+ 15% off any plan
See terms opt out anytime


No Thanks

Thanks for
signing up!


Use Code:

SIGNUP15

And save 15% off any plan!

Check your email for details.

CLOSE
Search Plans
Customer Reviews
     
15% off ALL House Plans Sitewide
15% off ALL House Plans Sitewide
15% off ALL House Plans Sitewide

Code: MOM15
Sale ends midnight 5/11/2026 PST

Sweetbriar Outdoor Living Farm House Style House, Plan 7071

 
 

Sq Ft
4,357 FT²

Beds
5

Baths
4.5

Stories
2

Garage
3

Depth
64' 7"

Width
92'
On Sale
$2,120.75
$2,495.00
© copyright by designer
 View All 4 Images | Photographs may reflect modified home
Sq Ft
4,357 FT²
Beds
5
Baths
4.5
Stories
2
Garage
3
Depth
64' 7"
Width
92'
 
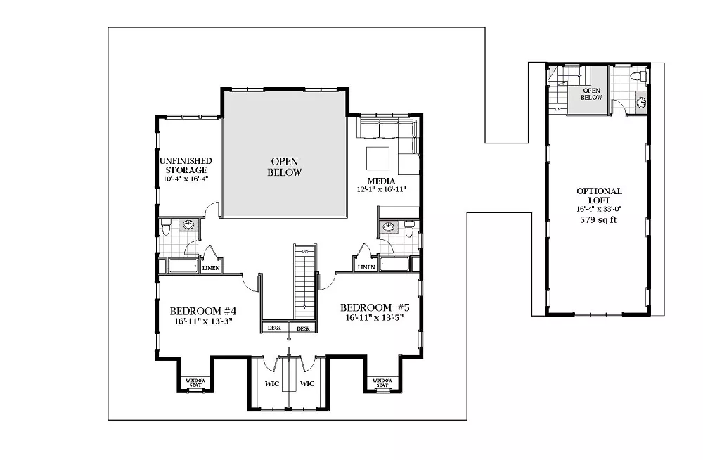
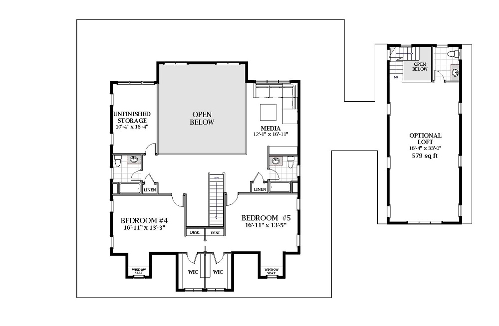
Click to Zoom In on Floor Plan
© copyright by designer
 
 

About This Plan

A neighborly front porch makes for a welcoming entry into this beautiful farmhouse. Five bedrooms and four full baths make this the perfect country home for a growing family. The vaulted family room boasts a fireplace and French doors leading out onto a large covered porch. Open to the family room, the kitchen is well equipped with a large island with seating for six, a sunny sink area overlooking the back yard, ample cabinets and counter space, extra storage hidden behind stylish sliding barn doors and a large walk in pantry. There are two family bedroom occupying the first floor, each with its own walk in closet and sharing a large hall bath. The main level master has porch access and offers privacy and tranquility with a soaking tub, separate shower, dual vanities and an expansive walk in closet. A large laundry/mudroom keeps everything organized with lockers, cabinets, counter space, a sink and extra shelving. Formal dining and a private study are provided as well as a pet kennel/grooming area that leads out to the 3-car garage. The garage is spacious and includes a shop area, back yard access, gardening storage and stairs that lead up to a potential “man cave” with a half bath. The second level has a horse-shoe layout that overlooks the family room below and includes two more family bedrooms each with their walk in closet and charming window seats. There are two full baths, storage area and a loft/media space. 

See All Plan Options
 

FEATURES & DETAILS

Kitchen features
Country Kitchen
Kitchen Island
Walk-in Pantry
Bedroom features
Double Vanity Sink
Primary Bdrm Main Floor
Separate Tub and Shower
Walk-in Closet
Exterior features
Covered Front Porch
Covered Rear Porch
Front Porch
Rear Porch
Foundation Options
Basement
Crawlspace
Daylight Basement
Slab
Walkout Basement
Additional features
Bonus Room
Dining Room
Family Room
Fireplace
Foyer
Great Room
Home Office
Laundry 1st Fl
Library/Media Rm
Loft / Balcony
Mud Room
Open Floor Plan
Rec Room
Storage Space
Unfinished Space
Vaulted Ceilings
Garage Location
Side
Garage Options
Attached
Oversized
Side-entry
6,359 Ft
2
Total Structure
4,357 Ft
2
Total Heated
2,961 Ft
2
1st Floor
1,396 Ft
2
2nd Floor
5
Bedrooms
4.5
Bathrooms
3
Garage
2
Stories
92' 0"
Width
64' 7"
Depth
35' 0"
Height
9'' 0"
Main Floor Ceiling
8'' 0"
Upper Floor Ceiling
2x6
Framing
Stick
Roof Framing
12:12
Primary Roof Pitch
Single
Dwelling Number

Unheated Living Space
940 Ft
2
Garage
1,062 Ft
2
Porch
579 Ft
2
Bonus Room
 

Plan Package Options

 Select Plan Package
 Need To Reverse Plan? (Optional)
  Select Foundation Option
  Add-Ons (Optional)
INCLUDED WITH YOUR PURCHASE

Free Ground shipping in the U.S.

FREE

Home Building & Product Ideas Organizer

Sub Total
$0
Free Shipping
QUESTIONS OR NEED HELP ORDERING? LIVE CHAT OR CALL US AT 866-214-2242
Plan Packages

Each set of construction documents typically includes detailed, dimensioned floor plans, basic electric layouts, cross sections, roof details, cabinet layouts, and elevations, as well as general IRC specifications. Please refer to the ARCHITECT or DESIGNER’S PLAN DETAILS link above the floor plan on any plan page to determine the specific details for each plan. Our house plans contain virtually all of the information required to construct your home. The typical plan set does not include plumbing, HVAC drawings, or engineering stamps due to the wide variety of specific needs, local codes, and climatic conditions. These details and specifications are easily obtained from your builder, contractors, and/or local engineers.

BEST PRICE GUARANTEE

Find the same house plan (modifications included!) and package for less on another site, show us the URL and we'll give you the difference plus an additional 10% back.

100% SATISFACTION GUARANTEE

We offer a one-time, 30-day exchange policy for unused, printed plan packages in the event you aren't satisfied with your first selection.

 
 

Plan 7071  Back to plan page

Loading...