Get discounts,
promos, see our
newest plans
and more!
+ 15% off any plan
See terms opt out anytime


No Thanks

Thanks for
signing up!


Use Code:

SIGNUP15

And save 15% off any plan!

Check your email for details.

CLOSE
Search Plans
Customer Reviews
     
15% off ALL House Plans Sitewide
15% off ALL House Plans Sitewide
15% off ALL House Plans Sitewide

Code: HONOR
Sale ends midnight 5/31/2026 PST

Sq Ft
4,271 FT²

Beds
4

Baths
4

Stories
2

Garage
0

Depth
85'

Width
109'
On Sale
$1,334.50
$1,570.00
© copyright by designer
 View All 9 Images | Photographs may reflect modified home
Sq Ft
4,271 FT²
Beds
4
Baths
4
Stories
2
Garage
0
Depth
85'
Width
109'
 
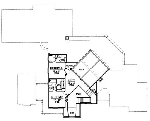
Click to Zoom In on Floor Plan
© copyright by designer
 
 

About This Plan

This opulent luxury mansion home plan boasts varied ceiling treatments and two-story ceilings adding volume to your living spaces. Fireplaces and plenty of built-ins are just some of the amenities in this luxury home. The elegant two-story foyer is flanked by the quiet study with access to the lanai and one-car garage and the two-story family room. The gourmet kitchen with free-standing island is centrally located to the bar and dining room, providing ease in serving your family and guests those special dinners. The family room features a warming fireplace, built-ins, and a bank of windows with a generous view of the concept pool. Easy access to the wine room and private patio can be achieved through the family room. The luxurious master suite offers a bed alcove and sitting area with access to the outdoor lounge, wine room and private patio. The master bath boasts his and hers vanities, separate shower, corner garden tub and separate his and hers wardrobes. Beyond the utility room, is a family bedroom with private bath and walk-in closet. The game room offers a bar and mud room for taking off those shoes when entering from the two-car garage. Upstairs, two family bedrooms with walk-in closets and private full baths share space with a reading loft. An overlook and loggia offer stunning views from above to the luxury mansion home below. 

See All Plan Options
 

FEATURES & DETAILS

Kitchen features
Country Kitchen
Kitchen Island
Bedroom features
Double Vanity Sink
Primary Bdrm Main Floor
Separate Tub and Shower
Exterior features
Covered Front Porch
Covered Rear Porch
Front Porch
Rear Porch
Foundation Options
Slab
Additional features
2 Story Volume
Dining Room
Family Room
Fireplace
Foyer
Home Office
Laundry 1st Fl
Library/Media Rm
Open Floor Plan
Vaulted Ceilings
Garage Location
Side
Garage Options
Attached
Side-entry
6,168 Ft
2
Total Structure
4,271 Ft
2
Total Heated
3,524 Ft
2
1st Floor
747 Ft
2
2nd Floor
4
Bedrooms
4
Bathrooms
0
Garage
2
Stories
109' 0"
Width
85' 0"
Depth
36' 0"
Height
11' 0"
Main Floor Ceiling
10' 0"
Upper Floor Ceiling
2x4
Framing
Stick
Roof Framing
Single
Dwelling Number

Unheated Living Space
908 Ft
2
Garage
32 Ft
2
Storage
87 Ft
2
Porch
539 Ft
2
Deck
79 Ft
2
Patio
 

Plan Package Options

 Select Plan Package
 Need To Reverse Plan? (Optional)
  Select Foundation Option
  Add-Ons (Optional)
INCLUDED WITH YOUR PURCHASE

Free Ground shipping in the U.S.

FREE

Home Building & Product Ideas Organizer

Sub Total
$0
Free Shipping
QUESTIONS OR NEED HELP ORDERING? LIVE CHAT OR CALL US AT 866-214-2242
Plan Packages

Each set of construction documents typically includes detailed, dimensioned floor plans, basic electric layouts, cross sections, roof details, cabinet layouts, and elevations, as well as general IRC specifications. Please refer to the ARCHITECT or DESIGNER’S PLAN DETAILS link above the floor plan on any plan page to determine the specific details for each plan. Our house plans contain virtually all of the information required to construct your home. The typical plan set does not include plumbing, HVAC drawings, or engineering stamps due to the wide variety of specific needs, local codes, and climatic conditions. These details and specifications are easily obtained from your builder, contractors, and/or local engineers.

BEST PRICE GUARANTEE

Find the same house plan (modifications included!) and package for less on another site, show us the URL and we'll give you the difference plus an additional 10% back.

100% SATISFACTION GUARANTEE

We offer a one-time, 30-day exchange policy for unused, printed plan packages in the event you aren't satisfied with your first selection.

 
 

Plan 4895  Back to plan page

Loading...