Get discounts,
promos, see our
newest plans
and more!
+ 15% off any plan
See terms opt out anytime


No Thanks

Thanks for
signing up!


Use Code:

SIGNUP15

And save 15% off any plan!

Check your email for details.

CLOSE
Search Plans
Customer Reviews
     
15% Off House Plans Sitewide Ends Sunday

Code: SAVE15
Sale ends midnight 1/11/2026 PST

Sq Ft
4,790 FT²

Beds
4

Baths
6.5

Stories
2

Garage
4

Depth
88'

Width
116'
From
$2,712.00
© copyright by designer
 View All 22 Images | Photographs may reflect modified home
Sq Ft
4,790 FT²
Beds
4
Baths
6.5
Stories
2
Garage
4
Depth
88'
Width
116'
 
Click to Zoom In on Floor Plan
© copyright by designer
 
 

About This Plan

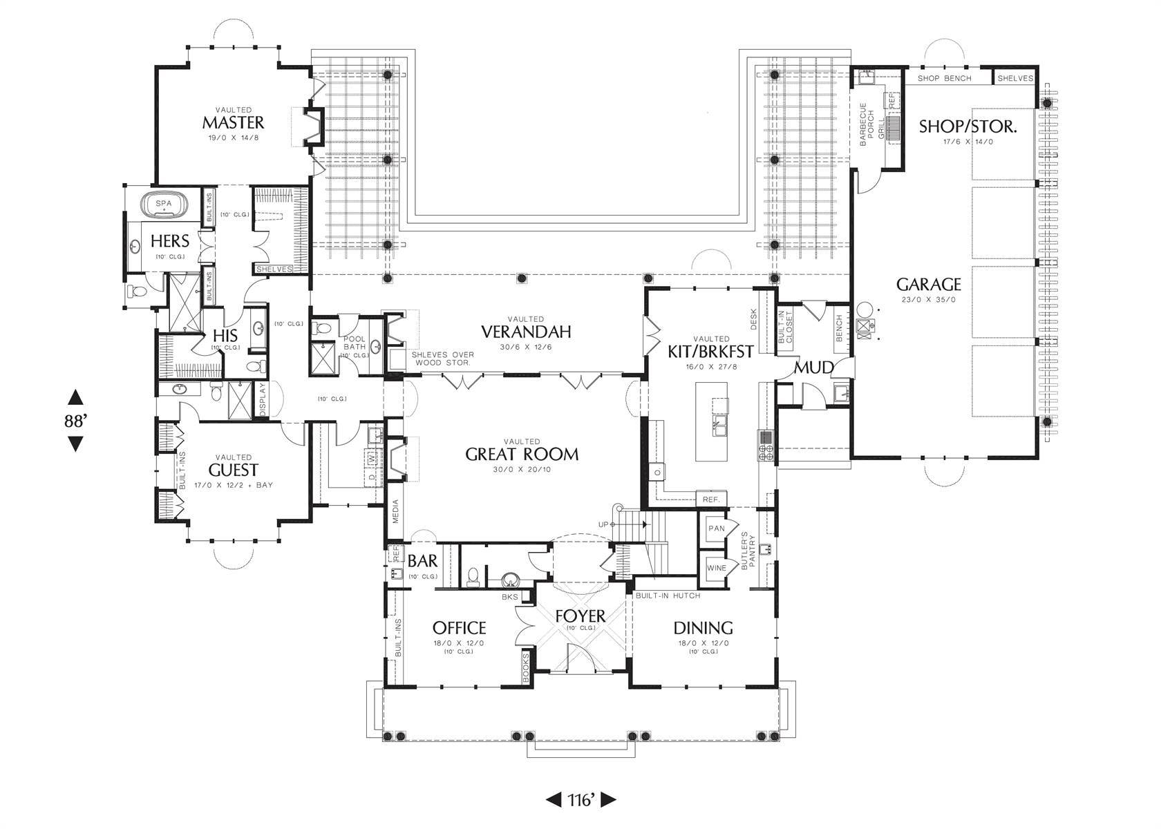
With rambling and rustic flair, this Shingle-style home exudes an understated elegance. Suggestive of its forbearers, which were primarily vacation cottages, this design features a guest-house-like wing, marked with a large Palladian window. Flanking the opposite side of the home, a three-car garage with workshop and storage space balances the facade.
Past a sentinel of double columns on the porch, the front door leads to the main section of the home. Here the living spaces resonate with simplicity and livability. At the front of the home, double doors give the office privacy from the rest of the plan. The dining room resides on the opposite end of the foyer, accompanied by a wine cellar, pantry and large service counter. Connected by a series of French doors, the kitchen, breakfast room, great room, and verandah seamlessly flow together for fair-weather entertaining.

The guest and master wing are designed around separate bathrooms and closets for optimum privacy. The upper level is advantageous for older children: Each of two suites features a walk-in closet and desk for storing kids wardrobes, toys, and homework. Down the hall, the media/playroom showcases a bow window, which appears to beckon the kids to a recess from work and study.
 


See All Plan Options
 

FEATURES & DETAILS

Kitchen features
Butler's Pantry
Kitchen Island
Nook / Breakfast Area
Walk-in Pantry
Bedroom features
Double Vanity Sink
His and Hers Primary Closets
Primary Bdrm Main Floor
Separate Tub and Shower
Split Bedrooms
Walk-in Closet
Exterior features
Covered Front Porch
Covered Rear Porch
Front Porch
Rear Porch
Foundation Options
Basement
Crawlspace
Slab
Lot Options
Suited for corner lot
Suited for view lot
Additional features
Arches
Dining Room
Fireplace
Foyer
Great Room
Home Office
In-law Suite
Laundry 1st Fl
Library/Media Rm
Loft / Balcony
Mud Room
Vaulted Ceilings
Garage Location
Side
Garage Options
Attached
Side-entry
4,790 Ft
2
Total Heated
3,800 Ft
2
1st Floor
990 Ft
2
2nd Floor
4
Bedrooms
6.5
Bathrooms
4
Garage
2
Stories
116' 0"
Width
88' 0"
Depth
32' 8"
Height
Varies' 0"
Main Floor Ceiling
Varies' 0"
Upper Floor Ceiling
2x6
Framing
Truss
Roof Framing
10/12
Primary Roof Pitch
8/12
Secondary Roof Pitch
8/12
Gable Roof Pitch
4/12
Porch Roof Pitch
Single
Dwelling Number
None
Bonus Access

Unheated Living Space
1,109 Ft
2
Garage
434 Ft
2
Porch
381 Ft
2
Patio
 

Plan Package Options

 Select Plan Package
$3,037
5 Printed Sets + PDF

Includes 5 physical printed blueprints shipped and delivered within 3-5 business days and a copyright release license to construct one home and to make copies. A complimentary PDF plan set is also emailed within 1 business day for easy sharing and local printing. 

$3,037
$2,712
PDF Single Build

Digital plans emailed to you in PDF format that allows for printing copies and sharing electronically with contractors, subs, decorators, and more. This package includes a license to build the home one time.

$2,712
$5,424
CAD + PDF Single Build

This plan package is created in AutoCAD and delivered in .DWG format. CAD files are intended for use by design professionals, structural engineers, and builders to update plans for local building codes or to make revisions based on specific needs, lot requirements, and budget considerations. A complimentary PDF copy is included with this package for reference. CAD packages are delivered within 1 to 2 business days.
 
This package also comes with a copyright release for making revisions and printing unlimited copies.

For details on the specific CAD program used, please refer to the PLAN DETAILS section located above the floor plan on each plan page.

$5,424
 Need To Reverse Plan? (Optional)
$250
Readable Reverse

Reverse house plans with readable text and dimensions 

$250
  Select Foundation Option
  Add-Ons (Optional)
INCLUDED WITH YOUR PURCHASE

Free Ground shipping in the Continental U.S.

FREE

Home Building & Product Ideas Organizer

Sub Total
$0
Free Shipping
QUESTIONS OR NEED HELP ORDERING? LIVE CHAT OR CALL US AT 866-214-2242
Plan Packages

Each set of construction documents includes detailed, dimensioned floor plans, basic electric layouts, cross sections, roof details, cabinet layouts and elevations, as well as general IRC specifications. They contain virtually all of the information required to construct your home. The typical plan set does not include any plumbing, HVAC drawings, or engineering stamps due to the wide variety of specific needs, local codes, and climatic conditions. These details and specifications are easily obtained from your builder, contractors, and/or local engineers.

BEST PRICE GUARANTEE

Find the same house plan (modifications included!) and package for less on another site, show us the URL and we'll give you the difference plus an additional 5% back.

100% SATISFACTION GUARANTEE

We offer a one-time, 30-day exchange policy for unused, printed plan packages in the event you aren't satisfied with your first selection. Exchanges are subject to a 20% restocking fee.

 
 

Plan 6773  Back to plan page

Loading...