Get discounts,
promos, see our
newest plans
and more!
+ 15% off any plan
See terms opt out anytime


No Thanks

Thanks for
signing up!


Use Code:

SIGNUP15

And save 15% off any plan!

Check your email for details.

CLOSE
Search Plans
Customer Reviews
     
15% off ALL House Plans Sitewide
15% off ALL House Plans Sitewide
15% off ALL House Plans Sitewide

Code: HONOR
Sale ends midnight 5/31/2026 PST

Southbury 4 Bedroom Craftsman Style House, Plan 4005

 
 

Sq Ft
3,506 FT²

Beds
4

Baths
2.5

Stories
2

Garage
2

Depth
67' 5"

Width
79' 4"
On Sale
$2,108.00
$2,480.00
© copyright by designer
 View All 17 Images | Photographs may reflect modified home
Sq Ft
3,506 FT²
Beds
4
Baths
2.5
Stories
2
Garage
2
Depth
67' 5"
Width
79' 4"
 
Click to Zoom In on Floor Plan
© copyright by designer
 
 

About This Plan

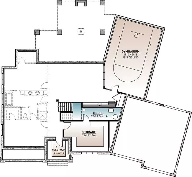
This gorgeous 3,506 square foot Craftsman style house plan is ideal for any active family! Entering into the home from the front porch, you'll find yourself in the foyer, with the home office, laundry and powder room off to the right and the rooms that make up the bulk of the family gathering space to your left. The dining room, living room and kitchen all flow seamlessly from one to the next. The kitchen features a center island, as well as a walk-in pantry and breakfast nook. Moving upstairs to the second floor, you'll find not only the 3 secondary bedrooms, but also the master suite, which features a sitting area, the master bath with dual vanity sinks, separate shower/but and walk-in closet. The partially finished basement includes an indoor basketball court, mechanical room, storage and unfinished space for up to 3 additional bedrooms, bathroom, etc. - it's open space and you get to decide what it becomes!

 

   

See All Plan Options
 

FEATURES & DETAILS

Kitchen features
Butler's Pantry
Country Kitchen
Kitchen Island
Nook / Breakfast Area
Walk-in Pantry
Bedroom features
Double Vanity Sink
His and Hers Primary Closets
Primary Bdrm Upstairs
Separate Tub and Shower
Sitting Area
Split Bedrooms
Walk-in Closet
Exterior features
Covered Front Porch
Covered Rear Porch
Front Porch
Outdoor Kitchen
Outdoor Living Space
Rear Porch
Foundation Options
Basement
Crawlspace
Lot Options
Suited for view lot
Additional features
2 Story Volume
Arches
Bonus Room
Dining Room
Exercise Room
Family Room
Fireplace
Foyer
Home Office
Laundry 1st Fl
Mud Room
Open Floor Plan
Storage Space
Unfinished Space
Vaulted Ceilings
Wine Cellar
Garage Location
Front
Garage Options
Attached
3,506 Ft
2
Total Heated
1,769 Ft
2
1st Floor
1,737 Ft
2
2nd Floor
1,769 Ft
2
Lower Floor
4
Bedrooms
2.5
Bathrooms
2
Garage
2
Stories
79' 4"
Width
67' 5"
Depth
33' 11"
Height
1769' 0"
Main Floor Ceiling
1769' 0"
Upper Floor Ceiling
2x6
Framing
Truss
Roof Framing
8/12
Primary Roof Pitch
10/12
Secondary Roof Pitch
Single
Dwelling Number
1st Floor
Bonus Access

Unheated Living Space
732 Ft
2
Garage
636 Ft
2
Bonus Room
 

Plan Package Options

 Select Plan Package
 Need To Reverse Plan? (Optional)
  Select Foundation Option
  Add-Ons (Optional)
INCLUDED WITH YOUR PURCHASE

Free Ground shipping in the U.S.

FREE

Home Building & Product Ideas Organizer

Sub Total
$0
Free Shipping
Please allow 3-5 business days for delivery of this plan Please check our PDFs NOW collection for plans that can be downloaded and received immediately or live chat us to help you find a similar plan available now.
QUESTIONS OR NEED HELP ORDERING? LIVE CHAT OR CALL US AT 866-214-2242
Plan Packages

Each set of construction documents typically includes detailed, dimensioned floor plans, basic electric layouts, cross sections, roof details, cabinet layouts, and elevations, as well as general IRC specifications. Please refer to the ARCHITECT or DESIGNER’S PLAN DETAILS link above the floor plan on any plan page to determine the specific details for each plan. Our house plans contain virtually all of the information required to construct your home. The typical plan set does not include plumbing, HVAC drawings, or engineering stamps due to the wide variety of specific needs, local codes, and climatic conditions. These details and specifications are easily obtained from your builder, contractors, and/or local engineers.

BEST PRICE GUARANTEE

Find the same house plan (modifications included!) and package for less on another site, show us the URL and we'll give you the difference plus an additional 10% back.

100% SATISFACTION GUARANTEE

We offer a one-time, 30-day exchange policy for unused, printed plan packages in the event you aren't satisfied with your first selection.

 
 

Plan 4005  Back to plan page

Loading...