Get discounts,
promos, see our
newest plans
and more!
+ 15% off any plan
See terms opt out anytime


No Thanks

Thanks for
signing up!


Use Code:

SIGNUP15

And save 15% off any plan!

Check your email for details.

CLOSE
Search Plans
     
15% Off House Plans Sitewide Ends Sunday
15% Off House Plans Sitewide Ends Sunday
15% Off House Plans Sitewide Ends Sunday

Code: SAVE15
Sale ends midnight 11/16/2025 PST

Sq Ft
1,456 FT²

Beds
0

Baths
0

Stories
2

Garage
2

Depth
28'

Width
26'
On Sale
$561.00
$660.00
© copyright by designer
 View All 4 Images | Photographs may reflect modified home
Sq Ft
1,456 FT²
Beds
0
Baths
0
Stories
2
Garage
2
Depth
28'
Width
26'
 
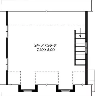
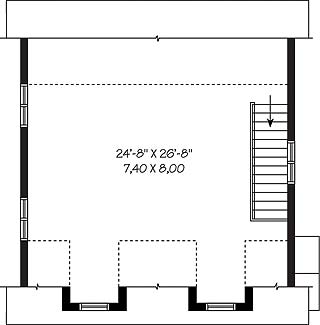
Click to Zoom In on Floor Plan
© copyright by designer
 
 

About This Plan

Two dormers embellish this two-car garage, which features lots of space. The sizable upper floor is bright and cheery, and would make a great art studio or apartment. 

See All Plan Options
 

FEATURES & DETAILS

Foundation Options
Slab
Lot Options
Suited for corner lot
Suited for narrow lot
Additional features
Bonus Room
Storage Space
Unfinished Space
Garage Location
Side
Garage Options
Detached
1,456 Ft
2
Total Heated
728 Ft
2
1st Floor
728 Ft
2
2nd Floor
2
Garage
2
Stories
26' 0"
Width
28' 0"
Depth
25' 6"
Height
8' 0"
Main Floor Ceiling
8' 0"
Upper Floor Ceiling
2x6
Framing
Truss
Roof Framing
10/12
Primary Roof Pitch
12/12
Gable Roof Pitch
Garage
Dwelling Number
2nd Floor
Bonus Access

Unheated Living Space
 

Plan Package Options

 Select Plan Package
Sale: $561
PDF Single Build
$660

Digital plans emailed to you in PDF format that allows for printing copies and sharing electronically with contractors, subs, decorators, and more. This package includes a license to build the home one time.

Sale: $561
Sale: $659
3 sets + PDF
$775
Please allow 3-5 days for delivery
Sale: $659
Sale: $944
CAD + PDF Single Build
$1,110

CAD files are a complete set of construction drawings delivered electronically. They can be used for any type of modification—including major design changes and engineering—and include a release granting permission to modify the plan. Most CAD plan orders are emailed the same or next business day.
 
This package also comes with a PDF set of plans and a copyright release for making modifications and printing unlimited copies.
 
CAD files are provided in .dwg format. For details on the specific CAD program used, please refer to the PLAN DETAILS section located above the floor plan on each plan’s page.

Sale: $944
 Need To Reverse Plan? (Optional)
$150
Readable Reverse

Reverse house plans with readable text and dimensions 

$150
  Select Foundation Option
  Add-Ons (Optional)
INCLUDED WITH YOUR PURCHASE

Free Ground shipping in the Continental U.S.

FREE

Design consultation with the architect or designer to discuss your plan

Home Building & Product Ideas Organizer

Sub Total
$0
Free Shipping
Please allow 3-5 business days for delivery of this plan Please check our PDFs NOW collection for plans that can be downloaded and received immediately or live chat us to help you find a similar plan available now.
QUESTIONS OR NEED HELP ORDERING? LIVE CHAT OR CALL US AT 866-214-2242
Plan Packages

Each set of construction documents includes detailed, dimensioned floor plans, basic electric layouts, cross sections, roof details, cabinet layouts and elevations, as well as general IRC specifications. They contain virtually all of the information required to construct your home. The typical plan set does not include any plumbing, HVAC drawings, or engineering stamps due to the wide variety of specific needs, local codes, and climatic conditions. These details and specifications are easily obtained from your builder, contractors, and/or local engineers.

BEST PRICE GUARANTEE

find the same house plan (modifications included!) and package for less on another site, show us the URL and we'll give you the difference plus an additional 5% back.

100% SATISFACTION GUARANTEE

We offer a one-time, 30-day exchange policy for unused, non-electronic plan packages in the event you aren't satisfied with your first selection.

 
 

Plan 4569  Back to plan page

Loading...