Get discounts,
promos, see our
newest plans
and more!
+ 15% off any plan
See terms opt out anytime


No Thanks

Thanks for
signing up!


Use Code:

SIGNUP15

And save 15% off any plan!

Check your email for details.

CLOSE
Search Plans
Customer Reviews
     
15% Off House Plans Sitewide Ends Sunday

Code: SAVE15
Sale ends midnight 1/11/2026 PST

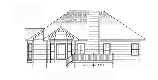
SHERIDAN 3 Bedroom European Style House, Plan 1073

 
 

Sq Ft
1,645 FT²

Beds
3

Baths
2

Stories
1

Garage
3

Depth
48'

Width
48'
From
$1,200.00
© copyright by designer
 View All 5 Images | Photographs may reflect modified home
Sq Ft
1,645 FT²
Beds
3
Baths
2
Stories
1
Garage
3
Depth
48'
Width
48'
 
Click to Zoom In on Floor Plan
© copyright by designer
 
 

About This Plan

An elegant stone façade joins with a dramatic Palladian entryway to create the beginning of this beautiful European traditional plan. This 2-level, 1645 square foot plan provides many great offerings such as its drive-under 3-car garage and 3 bedrooms as well as 2 full bathrooms. The basement level of this plan features a drive-under garage as well as the capabilities to add a future bedroom and bonus space, as well as a full bathroom if needed. As you move up the nearby staircase, enter on to the main level which features the remaining living spaces of this split-level home. To your immediate left you will find two bedrooms which share a full hallway bath. The main living spaces are open to each other and are defined by the vaulted living room alongside a dining room and separate breakfast nook which is attached to a galley kitchen. Finally, you will love the first-floor master suite with its spacious bedroom and dual vanity master bath with a walk-in closet. Overall, this home is a wonderful space for a new or growing family.

  

See All Plan Options
 

FEATURES & DETAILS

Kitchen features
Nook / Breakfast Area
Peninsula / Eating Bar
Bedroom features
Double Vanity Sink
Primary Bdrm Main Floor
Separate Tub and Shower
Split Bedrooms
Walk-in Closet
Exterior features
Deck
Foundation Options
Basement
Walkout Basement
Lot Options
Suited for corner lot
Suited for sloping lot
Suited for view lot
Additional features
2 Story Volume
Arches
Dining Room
Fireplace
Foyer
Great Room
Laundry 1st Fl
Unfinished Space
Vaulted Ceilings
Garage Location
Under
Garage Options
Drive-under
1,645 Ft
2
Total Heated
1,645 Ft
2
1st Floor
32 Ft
2
Lower Floor
3
Bedrooms
2
Bathrooms
3
Garage
1
Stories
48' 0"
Width
48' 0"
Depth
29' 0"
Height
8' 0"
Main Floor Ceiling
Stick
Roof Framing
8/12
Primary Roof Pitch
8/12
Gable Roof Pitch
Single
Dwelling Number

Unheated Living Space
720 Ft
2
Garage
208 Ft
2
Storage
164 Ft
2
Deck
582 Ft
2
Bonus Room
 

Plan Package Options

 Select Plan Package
$1,300
5 Printed Sets

Five Printed Sets of Residential Construction Drawings are typically 24” x 36” documents and come with a license to construct a single residence shipped to a physical address. Keep in mind PDF Plan Packages are our most popular choice which allows you to print as many copies as you need and to electronically send files to your builder, subcontractors, etc.

$1,300
$750
PDF Bid Set
PDFs NOW!™

Home plans stamped "NOT FOR CONSTRUCTION" for cost estimating and bidding purposes only; a minimum 5 set plan package must be purchased within 90 days for a license to build plan set; a credit will be applied towards your house plan upgrade

$750
$1,200
PDF Single Build
PDFs NOW!™

Digital plans emailed to you in PDF format that allows for printing copies and sharing electronically with contractors, subs, decorators, and more. This package includes a license to build the home one time.

$1,200
  Select Foundation Option
  Add-Ons (Optional)
INCLUDED WITH YOUR PURCHASE

Free Ground shipping in the Continental U.S.

FREE

Home Building & Product Ideas Organizer

Sub Total
$0
Free Shipping
QUESTIONS OR NEED HELP ORDERING? LIVE CHAT OR CALL US AT 866-214-2242
Plan Packages

Each set of construction documents includes detailed, dimensioned floor plans, basic electric layouts, cross sections, roof details, cabinet layouts and elevations, as well as general IRC specifications. They contain virtually all of the information required to construct your home. The typical plan set does not include any plumbing, HVAC drawings, or engineering stamps due to the wide variety of specific needs, local codes, and climatic conditions. These details and specifications are easily obtained from your builder, contractors, and/or local engineers.

BEST PRICE GUARANTEE

Find the same house plan (modifications included!) and package for less on another site, show us the URL and we'll give you the difference plus an additional 5% back.

100% SATISFACTION GUARANTEE

We offer a one-time, 30-day exchange policy for unused, printed plan packages in the event you aren't satisfied with your first selection. Exchanges are subject to a 20% restocking fee.

 
 

Plan 1073  Back to plan page

Loading...