Get discounts,
promos, see our
newest plans
and more!
+ 15% off any plan
See terms opt out anytime


No Thanks

Thanks for
signing up!


Use Code:

SIGNUP15

And save 15% off any plan!

Check your email for details.

CLOSE
Search Plans
Customer Reviews
     
15% off ALL House Plans Sitewide
15% off ALL House Plans Sitewide
15% off ALL House Plans Sitewide

Code: SAVE15
Sale ends midnight 4/19/2026 PST

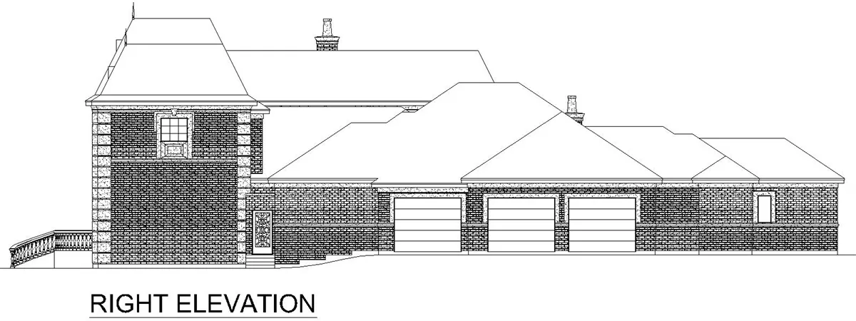
Seneca Luxury Two Story European Style House, Plan 8655

 
 

Sq Ft
6,339 FT²

Beds
6

Baths
6.5

Stories
2

Garage
3

Depth
110'

Width
119'
On Sale
$2,516.00
$2,960.00
© copyright by designer
 View All 8 Images | Photographs may reflect modified home
Sq Ft
6,339 FT²
Beds
6
Baths
6.5
Stories
2
Garage
3
Depth
110'
Width
119'
 
Click to Zoom In on Floor Plan
© copyright by designer
 
 

About This Plan

Modeled after some of the most historic and regal homes throughout history, this palatial European plan is a true sight. A lovely and luxurious curb appeal defines the stunning home. And the gorgeous exterior is matched with an impressive interior. Boasting 6,339 square feet of living space, including 6 bedrooms, this plan has room for the whole family and then some. As an added bonus, every bedroom has its own full bathroom suite and walk-in closet! This feature is highlighted by the relaxing master suite which features a private spa bath and a walk-in closet with his and hers sides. Also on the main floor is your spacious living room and entertainer's kitchen, along with a spacious covered porch. And don't forget to explore the sensible spaces like the study, media room, and 3-car garage. Did you notice the wine cellar space? Upstairs is just as wonderful, offering 3 more bedroom suites along with an overlook down into the family room and a tech space to help your home stay in touch with the modern smart home technologies. 

See All Plan Options
 

FEATURES & DETAILS

Kitchen features
Kitchen Island
L-Shaped
Pantry
Peninsula / Eating Bar
Walk-in Pantry
Bedroom features
Double Vanity Sink
Primary Bdrm Main Floor
Separate Tub and Shower
Walk-in Closet
Exterior features
Courtyard
Covered Front Porch
Covered Rear Porch
Outdoor Living Space
Additional features
2 Story Volume
Dining Room
Family Room
Fireplace
Foyer
Home Office
Laundry 1st Fl
Library/Media Rm
Vaulted Primary
Wine Cellar
Garage Location
Rear
Garage Options
Attached
Rear-entry
Side-entry
9,315 Ft
2
Total Structure
6,339 Ft
2
Total Heated
4,648 Ft
2
1st Floor
1,691 Ft
2
2nd Floor
6
Bedrooms
6.5
Bathrooms
3
Garage
2
Stories
119' 0"
Width
110' 0"
Depth
37' 0"
Height
11' 0"
Main Floor Ceiling
10' 0"
Upper Floor Ceiling
2x4 or 2x6
Framing
Stick
Roof Framing
8
Primary Roof Pitch
24
Secondary Roof Pitch
16
Teritary Roof Pitch
Single
Dwelling Number

Unheated Living Space
1,093 Ft
2
Garage
Exterior Styles
Collections
 

Plan Package Options

 Select Plan Package
 Need To Reverse Plan? (Optional)
  Select Foundation Option
  Add-Ons (Optional)
INCLUDED WITH YOUR PURCHASE

Free Ground shipping in the U.S.

FREE

Home Building & Product Ideas Organizer

Sub Total
$0
Free Shipping
QUESTIONS OR NEED HELP ORDERING? LIVE CHAT OR CALL US AT 866-214-2242
Plan Packages

Each set of construction documents typically includes detailed, dimensioned floor plans, basic electric layouts, cross sections, roof details, cabinet layouts, and elevations, as well as general IRC specifications. Please refer to the ARCHITECT or DESIGNER’S PLAN DETAILS link above the floor plan on any plan page to determine the specific details for each plan. Our house plans contain virtually all of the information required to construct your home. The typical plan set does not include plumbing, HVAC drawings, or engineering stamps due to the wide variety of specific needs, local codes, and climatic conditions. These details and specifications are easily obtained from your builder, contractors, and/or local engineers.

BEST PRICE GUARANTEE

Find the same house plan (modifications included!) and package for less on another site, show us the URL and we'll give you the difference plus an additional 10% back.

100% SATISFACTION GUARANTEE

We offer a one-time, 30-day exchange policy for unused, printed plan packages in the event you aren't satisfied with your first selection.

 
 

Plan 8655  Back to plan page

Loading...