Get discounts,
promos, see our
newest plans
and more!
+ 15% off any plan
See terms opt out anytime


No Thanks

Thanks for
signing up!


Use Code:

SIGNUP15

And save 15% off any plan!

Check your email for details.

CLOSE
Search Plans
Customer Reviews
     
15% off ALL House Plans Sitewide
15% off ALL House Plans Sitewide
15% off ALL House Plans Sitewide

Code: HONOR
Sale ends midnight 5/31/2026 PST

Sq Ft
4,654 FT²

Beds
5

Baths
5.5

Stories
2

Garage
3

Depth
87' 6"

Width
115'
On Sale
$1,232.50
$1,450.00
© copyright by designer
 View All 9 Images | Photographs may reflect modified home
Sq Ft
4,654 FT²
Beds
5
Baths
5.5
Stories
2
Garage
3
Depth
87' 6"
Width
115'
 
Click to Zoom In on Floor Plan
© copyright by designer
 
 

About This Plan

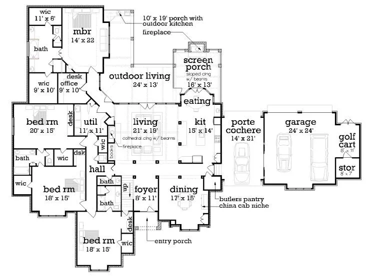
For those who want it all, this stunning two story has everything one could wish for. Beginning at the garage area, there is a large two stall oversized garage that easily holds those oversized SUVs. A covered Porte Cochere provides convenient parking for those times when you're stopping by with groceries or just a short stay. The Port Cochere also converts to a third bay of the garage if preferred. A golf port to store the golf cart and a large storage area rounds out the garage features. From the Port Cochere, step inside the living area and there is a large butlers pantry conveniently located to make storing those grocery items very simple. Across the galley is the gourmet kitchen fully appointed and very open to the eating area and living area. A large formal dining is nearby with a hint of separation but still very open. The rear eating area has a pair of glass doors that open out onto the large screened porch complete with beamed cathedral ceilings and a large wood burning fireplace. Continue down the open galley and you will pass the two story foyer with an ascending stairwell to the upper level. At the end of the galley is the entrance into the secondary bed room area. Each of the three secondary bed rooms are super sized and complete with walk-in closets and built in desk. Each bed room has access to a private bath but there is a half bath for guest conveniently located near the living room. A large walk-in off season closet is located in the hall and a step saving entrance into the utility room makes it accessible to all of the secondary bed rooms. Off the living room is a private hall way that serves the master bed room exclusively. Near the master suite is a large private office space with built in desk. The master suite is plush and boast a built in wall niche, tray ceilings and a sitting area bay. Glass doors provide access from the MBR hall to the outdoor living space and the outdoor kitchen. All of the rear outdoor spaces feature beamed sloped ceilings and ceiling fans. The master bath has his and hers vanities and walk-in closets with a shared giant size glass shower and a private toilet area with linen storage. Upstairs is the liberal sized fifth bed room complete with a bath and a walk-in closet. Adjoining the upstairs bed room is a super sized media room and play room large enough to hold a full sized billiard table and much more. 

See All Plan Options
 

FEATURES & DETAILS

Kitchen features
Butler's Pantry
Country Kitchen
Kitchen Island
Nook / Breakfast Area
Walk-in Pantry
Bedroom features
Double Vanity Sink
Guest Suite
His and Hers Primary Closets
Primary Bdrm Main Floor
Separate Tub and Shower
Sitting Area
Split Bedrooms
Walk-in Closet
Exterior features
Covered Front Porch
Covered Rear Porch
Front Porch
Rear Porch
Screened Porch/Sunroom
Wraparound Porch
Foundation Options
Crawlspace
Lot Options
Suited for corner lot
Suited for view lot
Additional features
2 Story Volume
Bonus Room
Dining Room
Exercise Room
Fireplace
Foyer
Great Room
Home Office
In-law Suite
Laundry 1st Fl
Library/Media Rm
Loft / Balcony
Mud Room
Open Floor Plan
Rec Room
Storage Space
Vaulted Ceilings
Garage Location
Side
Garage Options
Attached
Oversized
Rear-entry
6,438 Ft
2
Total Structure
4,654 Ft
2
Total Heated
3,722 Ft
2
1st Floor
932 Ft
2
2nd Floor
5
Bedrooms
5.5
Bathrooms
3
Garage
2
Stories
115' 0"
Width
87' 6"
Depth
36' 0"
Height
10' 0"
Main Floor Ceiling
9' 0"
Upper Floor Ceiling
2x4
Framing
Stick
Roof Framing
Single
Dwelling Number

Unheated Living Space
984 Ft
2
Garage
56 Ft
2
Storage
744 Ft
2
Porch
 

Plan Package Options

 Select Plan Package
 Need To Reverse Plan? (Optional)
  Select Foundation Option
  Add-Ons (Optional)
INCLUDED WITH YOUR PURCHASE

Free Ground shipping in the U.S.

FREE

Home Building & Product Ideas Organizer

Sub Total
$0
Free Shipping
QUESTIONS OR NEED HELP ORDERING? LIVE CHAT OR CALL US AT 866-214-2242
Plan Packages

Each set of construction documents typically includes detailed, dimensioned floor plans, basic electric layouts, cross sections, roof details, cabinet layouts, and elevations, as well as general IRC specifications. Please refer to the ARCHITECT or DESIGNER’S PLAN DETAILS link above the floor plan on any plan page to determine the specific details for each plan. Our house plans contain virtually all of the information required to construct your home. The typical plan set does not include plumbing, HVAC drawings, or engineering stamps due to the wide variety of specific needs, local codes, and climatic conditions. These details and specifications are easily obtained from your builder, contractors, and/or local engineers.

BEST PRICE GUARANTEE

Find the same house plan (modifications included!) and package for less on another site, show us the URL and we'll give you the difference plus an additional 10% back.

100% SATISFACTION GUARANTEE

We offer a one-time, 30-day exchange policy for unused, printed plan packages in the event you aren't satisfied with your first selection.

 
 

Plan 9661  Back to plan page

Loading...