Get discounts,
promos, see our
newest plans
and more!
+ 15% off any plan
See terms opt out anytime


No Thanks

Thanks for
signing up!


Use Code:

SIGNUP15

And save 15% off any plan!

Check your email for details.

CLOSE
Search Plans
Customer Reviews
     

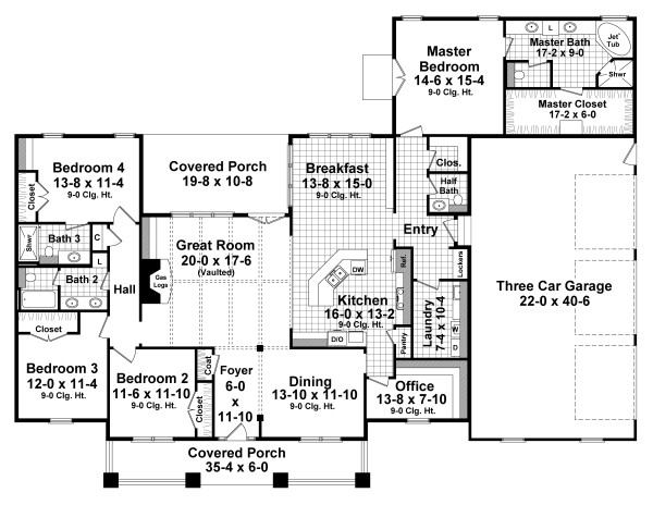
Sq Ft
2,800 FT²

Beds
4

Baths
3.5

Stories
1

Garage
3

Depth
63' 2"

Width
84'
From
$1,550.00
© copyright by designer
 View All 10 Images | Photographs may reflect modified home
Sq Ft
2,800 FT²
Beds
4
Baths
3.5
Stories
1
Garage
3
Depth
63' 2"
Width
84'
 
Click to Zoom In on Floor Plan
© copyright by designer
 
 

About This Plan

This home features the newly revived Craftsman exterior. With a split-bedroom layout, this plan is perfect for a growing family. It features 3 1/2 large bathrooms. The Master Bath includes a large jet tub and a custom built shower. The kitchen is fully -equipped with a wrap-around raised bar and a large pantry. Once bedroom may be used as a family member suite. Expansive great room features a vaulted ceiling and a gas log fireplace.  Large front and rear covered porches compliment the livability of this home. An oversized three car garage is provided for real-sized vehicles. Room spaces are designed large enough to have added space for a comfortable lifestyle!
 

See All Plan Options
 

FEATURES & DETAILS

Kitchen features
Country Kitchen
Nook / Breakfast Area
Peninsula / Eating Bar
Bedroom features
Double Vanity Sink
Guest Suite
Primary Bdrm Main Floor
Separate Tub and Shower
Split Bedrooms
Walk-in Closet
Exterior features
Covered Front Porch
Covered Rear Porch
Front Porch
Rear Porch
Foundation Options
Crawlspace
Slab
Lot Options
Suited for corner lot
Suited for sloping lot
Suited for view lot
Additional features
Dining Room
Exercise Room
Fireplace
Foyer
Great Room
Home Office
Laundry 1st Fl
Open Floor Plan
Storage Space
Workshop
Garage Location
Side
Garage Options
Attached
Side-entry
2,800 Ft
2
Total Heated
2,800 Ft
2
1st Floor
4
Bedrooms
3.5
Bathrooms
3
Garage
1
Stories
84' 0"
Width
63' 2"
Depth
26' 2"
Height
9' 0"
Main Floor Ceiling
2x6
Framing
Stick
Roof Framing
8/12
Primary Roof Pitch
Single
Dwelling Number
None
Bonus Access

Unheated Living Space
920 Ft
2
Garage
422 Ft
2
Storage
 

Plan Package Options

 Select Plan Package
 Need To Reverse Plan? (Optional)
  Select Foundation Option
  Add-Ons (Optional)
INCLUDED WITH YOUR PURCHASE

Free Ground shipping in the U.S.

FREE

Home Building & Product Ideas Organizer

Sub Total
$0
Free Shipping
QUESTIONS OR NEED HELP ORDERING? LIVE CHAT OR CALL US AT 866-214-2242
Plan Packages

Each set of construction documents includes detailed, dimensioned floor plans, basic electric layouts, cross sections, roof details, cabinet layouts and elevations, as well as general IRC specifications. They contain virtually all of the information required to construct your home. The typical plan set does not include any plumbing, HVAC drawings, or engineering stamps due to the wide variety of specific needs, local codes, and climatic conditions. These details and specifications are easily obtained from your builder, contractors, and/or local engineers.

BEST PRICE GUARANTEE

Find the same house plan (modifications included!) and package for less on another site, show us the URL and we'll give you the difference plus an additional 10% back.

100% SATISFACTION GUARANTEE

We offer a one-time, 30-day exchange policy for unused, printed plan packages in the event you aren't satisfied with your first selection.

 
 

Plan 3106  Back to plan page

Loading...