Get discounts,
promos, see our
newest plans
and more!
+ 15% off any plan
See terms opt out anytime


No Thanks

Thanks for
signing up!


Use Code:

SIGNUP15

And save 15% off any plan!

Check your email for details.

CLOSE
Search Plans
     
20% Off House Plans Sitewide Ends Tuesday
20% Off House Plans Sitewide Ends Tuesday
20% Off House Plans Sitewide Ends Tuesday

Code: VET20
Sale ends midnight 11/11/2025 PST

Sq Ft
1,635 FT²

Beds
3

Baths
2.5

Stories
2

Garage
2

Depth
54' 4"

Width
36'
On Sale
$752.00
$940.00
© copyright by architect
 View All 7 Images | Photographs may reflect modified home
Sq Ft
1,635 FT²
Beds
3
Baths
2.5
Stories
2
Garage
2
Depth
54' 4"
Width
36'
 
Click to Zoom In on Floor Plan
© copyright by architect
 
 

About This Plan

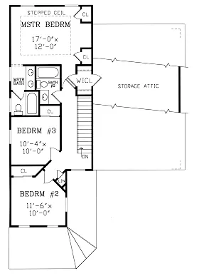
This economical yet delightfully charming two-story home features an exterior with a large wraparound front porch, Early-American detailing and a de-emphasized garage, all in concert with the theme of Traditional Neighborhood Design.
Inside, I created an open living and dining room arrangement, separated only by columns. The rear-facing family room/country kitchen includes a large work island and snack bar. Upstairs, you'll find a spacious master bedroom with tray ceiling, three closets and a compartmented full bath. Two additional bedrooms share a second full bath. The attic over the garage could be finished into more living space, if desired. 

See All Plan Options
 

FEATURES & DETAILS

Exterior features
Front Porch
Foundation Options
Basement
Crawlspace
Slab
Lot Options
Suited for narrow lot
Additional features
Dining Room
Fireplace
Foyer
Storage Space
Garage Location
Front
Garage Options
Attached
Front-entry
1,635 Ft
2
Total Heated
880 Ft
2
1st Floor
755 Ft
2
2nd Floor
3
Bedrooms
2.5
Bathrooms
2
Garage
2
Stories
36' 0"
Width
54' 4"
Depth
31' 2"
Height
9'-4"' 0"
Main Floor Ceiling
8'-1'' 0"
Upper Floor Ceiling
2x4
Framing
Stick
Roof Framing
12/12
Primary Roof Pitch
Single
Dwelling Number

Unheated Living Space
409 Ft
2
Garage
403 Ft
2
Porch
203 Ft
2
Bonus Room
 

Plan Package Options

 Select Plan Package
Sale: $544
PDF Bid Set
$680

PDFs NOW!™

Home plans stamped "NOT FOR CONSTRUCTION" for cost estimating and bidding purposes only; a minimum 5 set plan package must be purchased within 90 days for a license to build plan set; a credit will be applied towards your house plan upgrade

Sale: $544
Sale: $752
PDF Single Build
$940

PDFs NOW!™

Digital plans emailed to you in PDF format that allows for printing copies and sharing electronically with contractors, subs, decorators, and more. This package includes a license to build the home one time.

Sale: $752
Sale: $840
5 Printed Sets
$1,050

Five Printed Sets of Residential Construction Drawings are typically 24” x 36” documents and come with a license to construct a single residence shipped to a physical address. Keep in mind PDF Plan Packages are our most popular choice which allows you to print as many copies as you need and to electronically send files to your builder, subcontractors, etc.

Sale: $840
Sale: $900
8 Printed Sets
$1,125

Eight Printed Sets of Construction Drawings, typically 24” x 36” documents, with a license to construct a single residence shipped to your physical address. PDF Plan Packages are our most popular choice which allows you to print as many copies as you need and to electronically send files to your builder, subcontractors, bank/mortgage reps, material stores, decorators and more.

Sale: $900
Sale: $1,436
CAD + PDF Single Build
$1,795

CAD files are a complete set of construction drawings delivered electronically. They can be used for any type of modification—including major design changes and engineering—and include a release granting permission to modify the plan. Most CAD plan orders are emailed the same or next business day.
 
This package also comes with a PDF set of plans and a copyright release for making modifications and printing unlimited copies.
 
CAD files are provided in .dwg format. For details on the specific CAD program used, please refer to the PLAN DETAILS section located above the floor plan on each plan’s page.

Sale: $1,436
 Need To Reverse Plan? (Optional)
$350
Readable Reverse

Reverse house plans with readable text and dimensions 

$350
  Select Foundation Option
  Add-Ons (Optional)
INCLUDED WITH YOUR PURCHASE

Free Ground shipping in the Continental U.S.

FREE

Design consultation with the architect or designer to discuss your plan

Home Building & Product Ideas Organizer

Sub Total
$0
Free Shipping
QUESTIONS OR NEED HELP ORDERING? LIVE CHAT OR CALL US AT 866-214-2242
Plan Packages

Each set of construction documents includes detailed, dimensioned floor plans, basic electric layouts, cross sections, roof details, cabinet layouts and elevations, as well as general IRC specifications. They contain virtually all of the information required to construct your home. The typical plan set does not include any plumbing, HVAC drawings, or engineering stamps due to the wide variety of specific needs, local codes, and climatic conditions. These details and specifications are easily obtained from your builder, contractors, and/or local engineers.

BEST PRICE GUARANTEE

find the same house plan (modifications included!) and package for less on another site, show us the URL and we'll give you the difference plus an additional 5% back.

100% SATISFACTION GUARANTEE

We offer a one-time, 30-day exchange policy for unused, non-electronic plan packages in the event you aren't satisfied with your first selection.

 
 

Plan 3849  Back to plan page

Loading...