Get discounts,
promos, see our
newest plans
and more!
+ 15% off any plan
See terms opt out anytime


No Thanks

Thanks for
signing up!


Use Code:

SIGNUP15

And save 15% off any plan!

Check your email for details.

CLOSE
Search Plans
Customer Reviews
     
15% off ALL House Plans Sitewide
15% off ALL House Plans Sitewide
15% off ALL House Plans Sitewide

Code: HONOR
Sale ends midnight 5/29/2026 PST

Sq Ft
2,881 FT²

Beds
3

Baths
2.5

Stories
1

Garage
3

Depth
72' 4"

Width
103'
On Sale
$1,742.50
$2,050.00
© copyright by designer
 View All 5 Images | Photographs may reflect modified home
Sq Ft
2,881 FT²
Beds
3
Baths
2.5
Stories
1
Garage
3
Depth
72' 4"
Width
103'
 
Click to Zoom In on Floor Plan
© copyright by designer
 
 

About This Plan

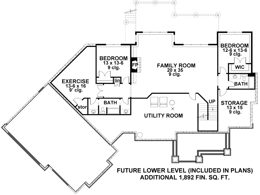
An elegant front porch lends a country flair to this three-bedroom home design. Off the welcoming foyer, five columns define the classic dining room, where guests will feel important. The gourmet kitchen has no trouble serving the comfy dinette and the spacious, sunken great room. When you host a large event, you can expand the entertaining area to the back porch and deck. At the end of a long day, the luxurious master suite is a relaxing haven. The daylight basement offers additional expansion possibilities. 

See All Plan Options
 

FEATURES & DETAILS

Kitchen features
Kitchen Island
Nook / Breakfast Area
Bedroom features
Double Vanity Sink
Primary Bdrm Main Floor
Separate Tub and Shower
Split Bedrooms
Walk-in Closet
Exterior features
Covered Front Porch
Covered Rear Porch
Foundation Options
Daylight Basement
Walkout Basement
Additional features
Dining Room
Exercise Room
Family Room
Fireplace
Foyer
Laundry 1st Fl
Mud Room
Open Floor Plan
Storage Space
Unfinished Space
Vaulted Ceilings
Garage Location
Front
Garage Options
Attached
Side-entry
2,881 Ft
2
Total Heated
2,881 Ft
2
1st Floor
1,892 Ft
2
Lower Floor
3
Bedrooms
2.5
Bathrooms
3
Garage
1
Stories
103' 0"
Width
72' 4"
Depth
30' 6"
Height
2x6
Framing
Truss
Roof Framing
10/12
Primary Roof Pitch
Single
Dwelling Number

Unheated Living Space
1,054 Ft
2
Garage
 

Plan Package Options

 Select Plan Package
 Need To Reverse Plan? (Optional)
  Select Foundation Option
  Add-Ons (Optional)
INCLUDED WITH YOUR PURCHASE

Free Ground shipping in the U.S.

FREE

Home Building & Product Ideas Organizer

Sub Total
$0
Free Shipping
QUESTIONS OR NEED HELP ORDERING? LIVE CHAT OR CALL US AT 866-214-2242
Plan Packages

Each set of construction documents typically includes detailed, dimensioned floor plans, basic electric layouts, cross sections, roof details, cabinet layouts, and elevations, as well as general IRC specifications. Please refer to the ARCHITECT or DESIGNER’S PLAN DETAILS link above the floor plan on any plan page to determine the specific details for each plan. Our house plans contain virtually all of the information required to construct your home. The typical plan set does not include plumbing, HVAC drawings, or engineering stamps due to the wide variety of specific needs, local codes, and climatic conditions. These details and specifications are easily obtained from your builder, contractors, and/or local engineers.

BEST PRICE GUARANTEE

Find the same house plan (modifications included!) and package for less on another site, show us the URL and we'll give you the difference plus an additional 10% back.

100% SATISFACTION GUARANTEE

We offer a one-time, 30-day exchange policy for unused, printed plan packages in the event you aren't satisfied with your first selection.

Customer Reviews of House Plan 9671
11/18/2020
Anonymous
Customer Review:
Customer service was excellent. Not done building house yet, but think we are gonna love it. The one piece of advice of would give to those that build this house is this: The roof truss package for what I call a smaller house is quite extensive. There are many twists and turns to putting the trusses together. However, the roof line and the twists and turns are what gives this house a tremendous curb appeal.

SEE All Reviews
 
 

Plan 9671  Back to plan page

Loading...