Get discounts,
promos, see our
newest plans
and more!
+ 15% off any plan
See terms opt out anytime


No Thanks

Thanks for
signing up!


Use Code:

SIGNUP15

And save 15% off any plan!

Check your email for details.

CLOSE
Search Plans
Customer Reviews
     
15% Off House Plans Sitewide Ends Sunday

Code: SAVE15
Sale ends midnight 1/11/2026 PST

Sq Ft
2,261 FT²

Beds
4

Baths
2.5

Stories
2

Garage
2

Depth
41' 6"

Width
57' 8"
From
$750.00
© copyright by designer
 View All 5 Images | Photographs may reflect modified home
Sq Ft
2,261 FT²
Beds
4
Baths
2.5
Stories
2
Garage
2
Depth
41' 6"
Width
57' 8"
 
Click to Zoom In on Floor Plan
© copyright by designer
 
 

About This Plan

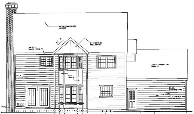
A regal front porch evoke traditional homes but including today's amenities and space needs. A two story foyer overlooking the second floor balcony. A media center is the focal point at the great room that is open to the kitchen and dinette. The kitchen includes large counter space, desk and bar. The master suite with a 10 ft high tray ceiling, fireplace, large walk-in-closet and gran bath. 

See All Plan Options
 

FEATURES & DETAILS

Exterior features
Front Porch
Foundation Options
Basement
Crawlspace
Slab
Garage Location
Side
Garage Options
Attached
2,261 Ft
2
Total Heated
1,184 Ft
2
1st Floor
1,077 Ft
2
2nd Floor
4
Bedrooms
2.5
Bathrooms
2
Garage
2
Stories
57' 8"
Width
41' 6"
Depth
31' 4"
Height
9' 0"
Main Floor Ceiling
8' 0"
Upper Floor Ceiling
2x4 or 2x6
Framing
Stick
Roof Framing
10/12
Primary Roof Pitch
Single
Dwelling Number

Unheated Living Space
460 Ft
2
Garage
 

Plan Package Options

 Select Plan Package
$750
4 Printed Sets

Four printed sets of construction drawings shipped and received in 3-5 business days

$750
$870
PDF Single Build
PDFs NOW!™

Digital plans emailed to you in PDF format that allows for printing copies and sharing electronically with contractors, subs, decorators, and more. This package includes a license to build the home one time.

$870
$1,850
CAD + PDF Single Build

This plan package is created in AutoCAD and delivered in .DWG format. CAD files are intended for use by design professionals, structural engineers, and builders to update plans for local building codes or to make revisions based on specific needs, lot requirements, and budget considerations. A complimentary PDF copy is included with this package for reference. CAD packages are delivered within 1 to 2 business days.
 
This package also comes with a copyright release for making revisions and printing unlimited copies.

For details on the specific CAD program used, please refer to the PLAN DETAILS section located above the floor plan on each plan page.

$1,850
  Select Foundation Option
  Add-Ons (Optional)
INCLUDED WITH YOUR PURCHASE

Free Ground shipping in the Continental U.S.

FREE

Home Building & Product Ideas Organizer

Sub Total
$0
Free Shipping
QUESTIONS OR NEED HELP ORDERING? LIVE CHAT OR CALL US AT 866-214-2242
Plan Packages

Each set of construction documents includes detailed, dimensioned floor plans, basic electric layouts, cross sections, roof details, cabinet layouts and elevations, as well as general IRC specifications. They contain virtually all of the information required to construct your home. The typical plan set does not include any plumbing, HVAC drawings, or engineering stamps due to the wide variety of specific needs, local codes, and climatic conditions. These details and specifications are easily obtained from your builder, contractors, and/or local engineers.

BEST PRICE GUARANTEE

Find the same house plan (modifications included!) and package for less on another site, show us the URL and we'll give you the difference plus an additional 5% back.

100% SATISFACTION GUARANTEE

We offer a one-time, 30-day exchange policy for unused, printed plan packages in the event you aren't satisfied with your first selection. Exchanges are subject to a 20% restocking fee.

 
 

Plan 5684  Back to plan page

Loading...