Get discounts,
promos, see our
newest plans
and more!
+ 15% off any plan
See terms opt out anytime


No Thanks

Thanks for
signing up!


Use Code:

SIGNUP15

And save 15% off any plan!

Check your email for details.

CLOSE
Search Plans
Customer Reviews
     
15% Off House Plans Sitewide Ends Sunday

Code: SAVE15
Sale ends midnight 1/11/2026 PST

Sq Ft
2,252 FT²

Beds
3

Baths
2.5

Stories
1.5

Garage
2

Depth
64'

Width
64' 4"
From
$675.00
© copyright by designer
 View All 5 Images | Photographs may reflect modified home
Sq Ft
2,252 FT²
Beds
3
Baths
2.5
Stories
1.5
Garage
2
Depth
64'
Width
64' 4"
 
Click to Zoom In on Floor Plan
© copyright by designer
 
 

About This Plan

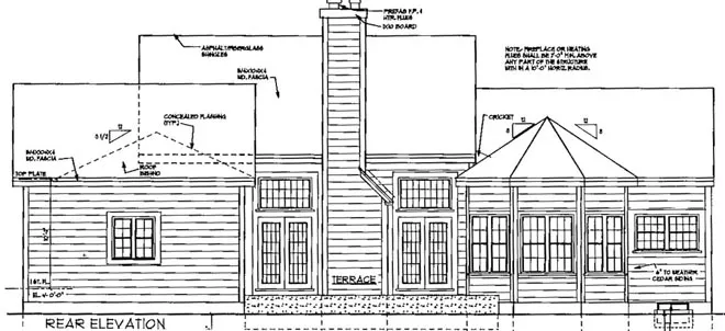
The covered porch opens into a formal two story foyer, flanked by the living and dining areas. The oversized great room with two stories sloped high ceiling, overlooks the rear yard terrace. The large kitchen includes bar, double oven, pantry, built-in desk and views of the bayed bright and sunny dinette area. The master suite is a haven of relaxation, includes 12'-2" tray ceiling, a bay sitting area, walk-in-closet and luxurious bath. 

See All Plan Options
 

FEATURES & DETAILS

Exterior features
Wraparound Porch
Foundation Options
Basement
Crawlspace
Slab
Garage Location
Side
Garage Options
Attached
2,252 Ft
2
Total Heated
1,728 Ft
2
1st Floor
524 Ft
2
2nd Floor
1,728 Ft
2
Lower Floor
3
Bedrooms
2.5
Bathrooms
2
Garage
1.5
Stories
64' 4"
Width
64' 0"
Depth
26' 0"
Height
9' 0"
Main Floor Ceiling
8'' 0"
Upper Floor Ceiling
2x4 or 2x6
Framing
Stick
Roof Framing
5 12/12
Primary Roof Pitch
8/12
Secondary Roof Pitch
12/12
Dormer Roof Pitch
Single
Dwelling Number

Unheated Living Space
468 Ft
2
Garage
 

Plan Package Options

 Select Plan Package
$675
4 Printed Sets

Four printed sets of construction drawings shipped and received in 3-5 business days

$675
$775
8 Printed Sets

Eight Printed Sets of Construction Drawings, typically 24” x 36” documents, with a license to construct a single residence shipped to your physical address. PDF Plan Packages are our most popular choice which allows you to print as many copies as you need and to electronically send files to your builder, subcontractors, bank/mortgage reps, material stores, decorators and more.

$775
$879
PDF Single Build
PDFs NOW!™

Digital plans emailed to you in PDF format that allows for printing copies and sharing electronically with contractors, subs, decorators, and more. This package includes a license to build the home one time.

$879
  Select Foundation Option
  Add-Ons (Optional)
INCLUDED WITH YOUR PURCHASE

Free Ground shipping in the Continental U.S.

FREE

Home Building & Product Ideas Organizer

Sub Total
$0
Free Shipping
QUESTIONS OR NEED HELP ORDERING? LIVE CHAT OR CALL US AT 866-214-2242
Plan Packages

Each set of construction documents includes detailed, dimensioned floor plans, basic electric layouts, cross sections, roof details, cabinet layouts and elevations, as well as general IRC specifications. They contain virtually all of the information required to construct your home. The typical plan set does not include any plumbing, HVAC drawings, or engineering stamps due to the wide variety of specific needs, local codes, and climatic conditions. These details and specifications are easily obtained from your builder, contractors, and/or local engineers.

BEST PRICE GUARANTEE

Find the same house plan (modifications included!) and package for less on another site, show us the URL and we'll give you the difference plus an additional 5% back.

100% SATISFACTION GUARANTEE

We offer a one-time, 30-day exchange policy for unused, printed plan packages in the event you aren't satisfied with your first selection. Exchanges are subject to a 20% restocking fee.

 
 

Plan 6993  Back to plan page

Loading...