Get discounts,
promos, see our
newest plans
and more!
+ 15% off any plan
See terms opt out anytime


No Thanks

Thanks for
signing up!


Use Code:

SIGNUP15

And save 15% off any plan!

Check your email for details.

CLOSE
Search Plans
     
20% Off House Plans Sitewide Ends Tuesday
20% Off House Plans Sitewide Ends Tuesday
20% Off House Plans Sitewide Ends Tuesday

Code: VET20
Sale ends midnight 11/11/2025 PST

Sq Ft
1,295 FT²

Beds
2

Baths
2

Stories
2

Garage
2

Depth
44'

Width
30'
On Sale
$1,200.00
$1,500.00
© copyright by designer
 View All 8 Images | Photographs may reflect modified home
Sq Ft
1,295 FT²
Beds
2
Baths
2
Stories
2
Garage
2
Depth
44'
Width
30'
 
Click to Zoom In on Floor Plan
© copyright by designer
 
 

About This Plan

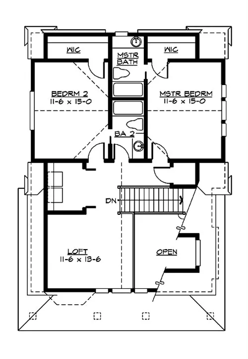
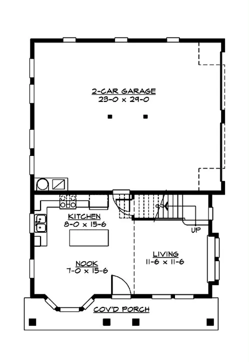
This plan offers a flexible layout that works well as a guesthouse or a small home. A broad entry porch opens into a dramatic living area with loft above. The extra-deep two-car garage provides lots of extra storage space. Each upstairs bedroom has an end suite bath. The exterior is enlivened by timeless dormers, a variety of palladian, bay and boxed windows, along with stone and shingle siding. 

See All Plan Options
 

FEATURES & DETAILS

Kitchen features
Kitchen Island
Exterior features
Covered Front Porch
Front Porch
Foundation Options
Slab
Additional features
Loft / Balcony
Open Floor Plan
Storage Space
Vaulted Ceilings
Workshop
Garage Location
Side
Garage Options
Attached
Side-entry
With Living Space
1,295 Ft
2
Total Heated
472 Ft
2
1st Floor
823 Ft
2
2nd Floor
2
Bedrooms
2
Bathrooms
2
Garage
2
Stories
30' 0"
Width
44' 0"
Depth
26' 0"
Height
9' 0"
Main Floor Ceiling
9' 0"
Upper Floor Ceiling
2x6
Framing
Stick
Roof Framing
12
Primary Roof Pitch
4
Secondary Roof Pitch
Garage
Dwelling Number

Unheated Living Space
720 Ft
2
Garage
 

Plan Package Options

 Select Plan Package
Sale: $1,200
PDF Single Build
$1,500

Digital plans emailed to you in PDF format that allows for printing copies and sharing electronically with contractors, subs, decorators, and more. This package includes a license to build the home one time.

Sale: $1,200
Sale: $2,080
CAD + PDF Unlimited Build
$2,600

CAD files are a complete set of construction drawings delivered electronically. They can be used for any type of modification—including major design changes and engineering—and include a release granting permission to modify the plan. Most CAD plan orders are emailed the same or next business day.
 
This package also comes with a PDF set of plans and a multi-use building license, granting permission to construct the home an unlimited number of times, along with a copyright release for making modifications and printing unlimited copies.
 
CAD files are provided in .dwg format. For details on the specific CAD program used, please refer to the PLAN DETAILS section located above the floor plan on each plan’s page.

Sale: $2,080
 Need To Reverse Plan? (Optional)
$300
Readable Reverse

Reverse house plans with readable text and dimensions 

$300
  Select Foundation Option
  Add-Ons (Optional)
INCLUDED WITH YOUR PURCHASE

Free Ground shipping in the Continental U.S.

FREE

Design consultation with the architect or designer to discuss your plan

Home Building & Product Ideas Organizer

Sub Total
$0
Free Shipping
IMPORTANT NOTE: Due to state regulations, this home is not available for purchase in the State of Washington. Contact us for more information.

Note: This plan cannot be purchased for construction in Washington State.
QUESTIONS OR NEED HELP ORDERING? LIVE CHAT OR CALL US AT 866-214-2242
Plan Packages

Each set of construction documents includes detailed, dimensioned floor plans, basic electric layouts, cross sections, roof details, cabinet layouts and elevations, as well as general IRC specifications. They contain virtually all of the information required to construct your home. The typical plan set does not include any plumbing, HVAC drawings, or engineering stamps due to the wide variety of specific needs, local codes, and climatic conditions. These details and specifications are easily obtained from your builder, contractors, and/or local engineers.

BEST PRICE GUARANTEE

find the same house plan (modifications included!) and package for less on another site, show us the URL and we'll give you the difference plus an additional 5% back.

100% SATISFACTION GUARANTEE

We offer a one-time, 30-day exchange policy for unused, non-electronic plan packages in the event you aren't satisfied with your first selection.

 
 

Plan 3206  Back to plan page

Loading...