Get discounts,
promos, see our
newest plans
and more!
+ 15% off any plan
See terms opt out anytime


No Thanks

Thanks for
signing up!


Use Code:

SIGNUP15

And save 15% off any plan!

Check your email for details.

CLOSE
Search Plans
     
15% Off House Plans Sitewide Ends Sunday
15% Off House Plans Sitewide Ends Sunday
15% Off House Plans Sitewide Ends Sunday

Code: SAVE15
Sale ends midnight 11/16/2025 PST

Sq Ft
1,761 FT²

Beds
3

Baths
2.5

Stories
2

Garage
2

Depth
50'

Width
40'
On Sale
$1,240.15
$1,459.00
© copyright by designer
 View All 4 Images | Photographs may reflect modified home
Sq Ft
1,761 FT²
Beds
3
Baths
2.5
Stories
2
Garage
2
Depth
50'
Width
40'
 
Click to Zoom In on Floor Plan
© copyright by designer
 
 

About This Plan

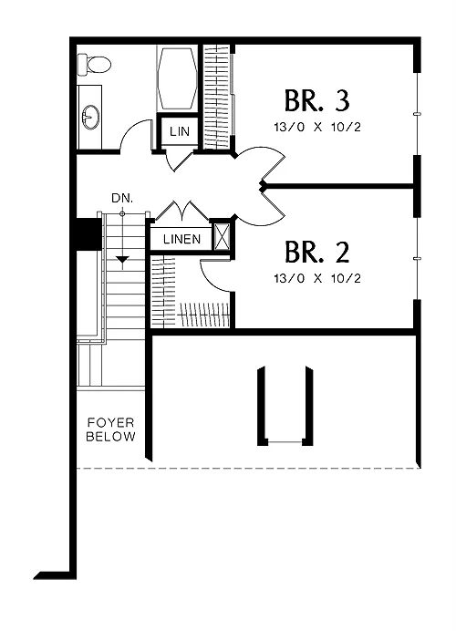
This picturesque cottage is brimming with enchanting details, from the stone chimneystack to the cedar-shingle accents. A dormer window over the two-car garage is also a nice touch. Though moderate in size, this home is very accommodating. It offers a vaulted living/dining area with fireplace, a kitchen with and island and a 42 eating bar that separates it from the living area, a nook with patio access and a built-in desk and a service area with laundry, pantry, half bath and large linen closet. The master suite is secreted away behind the garage and features a walk-in closet, a wall closet and a bath with spa tub, separate shower and dual lavatories. The upper level holds two additional bedrooms. One has a walk-in closet. They share a full bath and a linen closet.
 

See All Plan Options
 

FEATURES & DETAILS

Kitchen features
Kitchen Island
Nook / Breakfast Area
Walk-in Pantry
Bedroom features
Double Vanity Sink
Primary Bdrm Main Floor
Separate Tub and Shower
Split Bedrooms
Walk-in Closet
Exterior features
Covered Rear Porch
Front Porch
Rear Porch
Foundation Options
Basement
Crawlspace
Slab
Lot Options
Suited for narrow lot
Additional features
2 Story Volume
Dining Room
Fireplace
Foyer
Great Room
Laundry 1st Fl
Open Floor Plan
Vaulted Ceilings
Garage Location
Front
Garage Options
Attached
Front-entry
1,761 Ft
2
Total Heated
1,256 Ft
2
1st Floor
505 Ft
2
2nd Floor
3
Bedrooms
2.5
Bathrooms
2
Garage
2
Stories
40' 0"
Width
50' 0"
Depth
27' 10"
Height
9' 0"
Main Floor Ceiling
8' 0"
Upper Floor Ceiling
2x6
Framing
Truss
Roof Framing
14/12
Primary Roof Pitch
10/12
Secondary Roof Pitch
14/12
Gable Roof Pitch
Single
Dwelling Number
None
Bonus Access

Unheated Living Space
429 Ft
2
Garage
 

Plan Package Options

 Select Plan Package
Sale: $1,240
PDF Single Build
$1,459

Digital plans emailed to you in PDF format that allows for printing copies and sharing electronically with contractors, subs, decorators, and more. This package includes a license to build the home one time.

Sale: $1,240
Sale: $1,495
5 Printed Sets + PDF
$1,759

Digital plan emailed to you in PDF format that allows for printing copies on a home printer or local print shop and sharing with contractors, subs, decorators, and more. PLUS five printed sets shipped and delivered 3-5 business days.

Sale: $1,495
Sale: $2,480
CAD + PDF Single Build
$2,918

CAD files are a complete set of construction drawings delivered electronically. They can be used for any type of modification—including major design changes and engineering—and include a release granting permission to modify the plan. Most CAD plan orders are emailed the same or next business day.
 
This package also comes with a PDF set of plans and a copyright release for making modifications and printing unlimited copies.
 
CAD files are provided in .dwg format. For details on the specific CAD program used, please refer to the PLAN DETAILS section located above the floor plan on each plan’s page.

Sale: $2,480
 Need To Reverse Plan? (Optional)
$250
Readable Reverse

Reverse house plans with readable text and dimensions 

$250
  Select Foundation Option
  Add-Ons (Optional)
INCLUDED WITH YOUR PURCHASE

Free Ground shipping in the Continental U.S.

FREE

Design consultation with the architect or designer to discuss your plan

Home Building & Product Ideas Organizer

Sub Total
$0
Free Shipping
QUESTIONS OR NEED HELP ORDERING? LIVE CHAT OR CALL US AT 866-214-2242
Plan Packages

Each set of construction documents includes detailed, dimensioned floor plans, basic electric layouts, cross sections, roof details, cabinet layouts and elevations, as well as general IRC specifications. They contain virtually all of the information required to construct your home. The typical plan set does not include any plumbing, HVAC drawings, or engineering stamps due to the wide variety of specific needs, local codes, and climatic conditions. These details and specifications are easily obtained from your builder, contractors, and/or local engineers.

BEST PRICE GUARANTEE

find the same house plan (modifications included!) and package for less on another site, show us the URL and we'll give you the difference plus an additional 5% back.

100% SATISFACTION GUARANTEE

We offer a one-time, 30-day exchange policy for unused, non-electronic plan packages in the event you aren't satisfied with your first selection.

 
 

Plan 5236  Back to plan page

Loading...