Get discounts,
promos, see our
newest plans
and more!
+ 15% off any plan
See terms opt out anytime


No Thanks

Thanks for
signing up!


Use Code:

SIGNUP15

And save 15% off any plan!

Check your email for details.

CLOSE
Search Plans
Customer Reviews
     
15% off ALL House Plans Sitewide
15% off ALL House Plans Sitewide
15% off ALL House Plans Sitewide

Code: HONOR
Sale ends midnight 5/31/2026 PST

Thornhill 1.5 Story Transitional Style House, Plan 10073

 
 

Sq Ft
2,492 FT²

Beds
3

Baths
3.5

Stories
1.5

Garage
3

Depth
76' 2"

Width
71' 6"
On Sale
$1,228.25
$1,445.00
© copyright by designer
 View All 9 Images | Photographs may reflect modified home
Sq Ft
2,492 FT²
Beds
3
Baths
3.5
Stories
1.5
Garage
3
Depth
76' 2"
Width
71' 6"
 
Click to Zoom In on Floor Plan
© copyright by designer
 
 

About This Plan

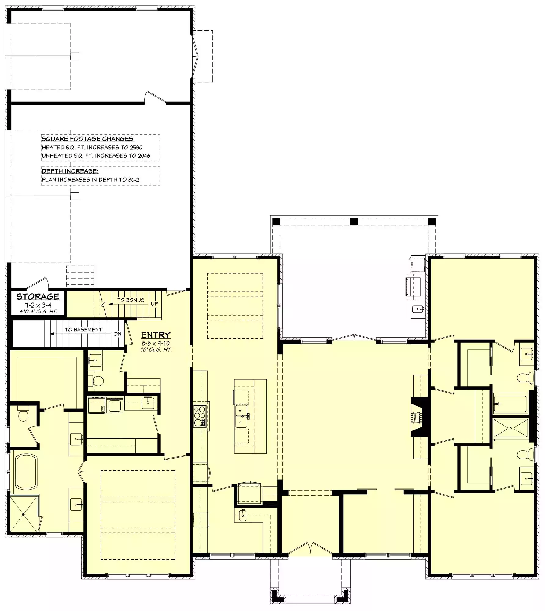
The Thornhill is a stunning transitional-style home, perfectly blending elegance with functionality. This 3 bedroom, 3.5 bath layout boasts a spacious open-concept great room and kitchen, complete with a walk-in pantry for added convenience. A study offers a quiet space for work or relaxation, while the optional outdoor kitchen on the rear porch extends entertaining possibilities. With a 3-car garage, this design ensures ample storage and parking. Thornhill is crafted for those who seek a harmonious blend of style and practicality. 

See All Plan Options
 

FEATURES & DETAILS

Kitchen features
Kitchen Island
Peninsula / Eating Bar
Walk-in Pantry
Bedroom features
Double Vanity Sink
Primary Bdrm Main Floor
Separate Tub and Shower
Split Bedrooms
Walk-in Closet
Exterior features
Covered Front Porch
Covered Rear Porch
Outdoor Kitchen
Outdoor Living Space
Lot Options
Suited for corner lot
Suited for view lot
Additional features
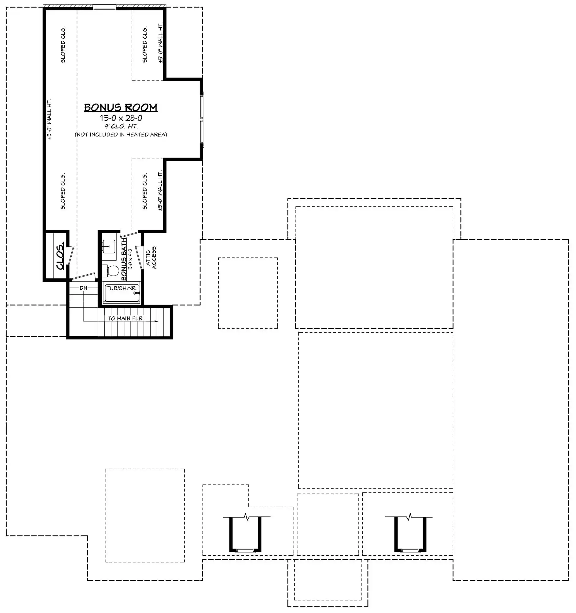
Bonus Room
Dining Room
Fireplace
Foyer
Home Office
Laundry 1st Fl
Mud Room
Open Floor Plan
Storage Space
Unfinished Space
Vaulted Foyer
Vaulted Primary
Garage Location
Rear
Garage Options
Attached
Side-entry
4,477 Ft
2
Total Structure
2,492 Ft
2
Total Heated
2,492 Ft
2
1st Floor
3
Bedrooms
3.5
Bathrooms
3
Garage
1.5
Stories
71' 6"
Width
76' 2"
Depth
27' 0"
Height
10' 0"
Main Floor Ceiling
12' 0"
Living/Great Room Ceiling
12' 0"
Foyer Ceiling
2x4
Framing
Stick
Roof Framing
9/12
Primary Roof Pitch
Single
Dwelling Number
1st Floor
Bonus Access

Unheated Living Space
943 Ft
2
Garage
31 Ft
2
Storage
61 Ft
2
Front Porch
340 Ft
2
Rear Porch
610 Ft
2
Bonus Room
 

Plan Package Options

 Select Plan Package
 Need To Reverse Plan? (Optional)
  Select Foundation Option
  Add-Ons (Optional)
INCLUDED WITH YOUR PURCHASE

Free Ground shipping in the U.S.

FREE

Home Building & Product Ideas Organizer

Sub Total
$0
Free Shipping
QUESTIONS OR NEED HELP ORDERING? LIVE CHAT OR CALL US AT 866-214-2242
Plan Packages

Each set of construction documents typically includes detailed, dimensioned floor plans, basic electric layouts, cross sections, roof details, cabinet layouts, and elevations, as well as general IRC specifications. Please refer to the ARCHITECT or DESIGNER’S PLAN DETAILS link above the floor plan on any plan page to determine the specific details for each plan. Our house plans contain virtually all of the information required to construct your home. The typical plan set does not include plumbing, HVAC drawings, or engineering stamps due to the wide variety of specific needs, local codes, and climatic conditions. These details and specifications are easily obtained from your builder, contractors, and/or local engineers.

BEST PRICE GUARANTEE

Find the same house plan (modifications included!) and package for less on another site, show us the URL and we'll give you the difference plus an additional 10% back.

100% SATISFACTION GUARANTEE

We offer a one-time, 30-day exchange policy for unused, printed plan packages in the event you aren't satisfied with your first selection.

 
 

Plan 10073  Back to plan page

Loading...