Get discounts,
promos, see our
newest plans
and more!
+ 15% off any plan
See terms opt out anytime


No Thanks

Thanks for
signing up!


Use Code:

SIGNUP15

And save 15% off any plan!

Check your email for details.

CLOSE
Search Plans
Customer Reviews
     
15% off ALL House Plans Sitewide
15% off ALL House Plans Sitewide
15% off ALL House Plans Sitewide

Code: HONOR
Sale ends midnight 5/31/2026 PST

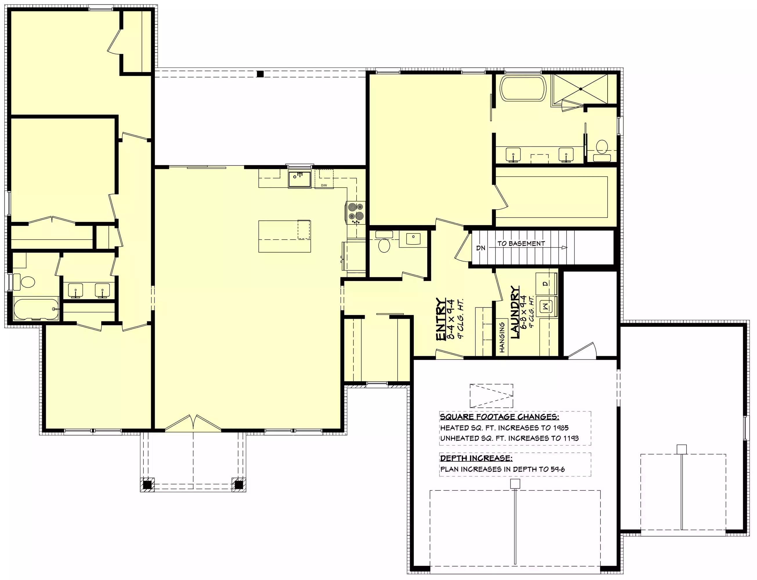
Glen Oak | 4 Bedroom Country Style House, Plan 10591

 
 

Sq Ft
1,952 FT²

Beds
4

Baths
2.5

Stories
1

Garage
3

Depth
55' 2"

Width
78'
On Sale
$1,185.75
$1,395.00
© copyright by designer
 View All 8 Images | Photographs may reflect modified home
Sq Ft
1,952 FT²
Beds
4
Baths
2.5
Stories
1
Garage
3
Depth
55' 2"
Width
78'
 
Click to Zoom In on Floor Plan
© copyright by designer
 
 

About This Plan

Welcome to Glen Oak, a beautifully crafted farmhouse that blends comfort and style across a spacious layout featuring 4 bedrooms and 2.5 baths. The heart of the home is an open-concept great room, dining area, and gourmet kitchen with an eat-at bar and walk-in pantry—perfect for everyday living or entertaining guests. Retreat to the luxurious main suite, complete with a spa-like bath offering a separate tub and shower, and a generous walk-in closet. A third-car garage provides added versatility for extra storage, hobbies, or parking. Glen Oak is where charm meets function in all the right ways. 

See All Plan Options
 

FEATURES & DETAILS

Lot Options
Suited for corner lot
Suited for view lot
Garage Location
Front
Garage Options
Attached
Front-entry
3,083 Ft
2
Total Structure
1,952 Ft
2
Total Heated
1,952 Ft
2
1st Floor
4
Bedrooms
2.5
Bathrooms
3
Garage
1
Stories
78'
Width
55'
Depth
9' 0"
Main Floor Ceiling
2x4
Framing
Truss
Roof Framing
8/12
Primary Roof Pitch
3/12
Secondary Roof Pitch
Single
Dwelling Number
None
Bonus Access

Unheated Living Space
789 Ft
2
Garage
56 Ft
2
Storage
63 Ft
2
Front Porch
223 Ft
2
Rear Porch
 

Plan Package Options

 Select Plan Package
 Need To Reverse Plan? (Optional)
  Select Foundation Option
  Add-Ons (Optional)
INCLUDED WITH YOUR PURCHASE

Free Ground shipping in the U.S.

FREE

Home Building & Product Ideas Organizer

Sub Total
$0
Free Shipping
QUESTIONS OR NEED HELP ORDERING? LIVE CHAT OR CALL US AT 866-214-2242
Plan Packages

Each set of construction documents typically includes detailed, dimensioned floor plans, basic electric layouts, cross sections, roof details, cabinet layouts, and elevations, as well as general IRC specifications. Please refer to the ARCHITECT or DESIGNER’S PLAN DETAILS link above the floor plan on any plan page to determine the specific details for each plan. Our house plans contain virtually all of the information required to construct your home. The typical plan set does not include plumbing, HVAC drawings, or engineering stamps due to the wide variety of specific needs, local codes, and climatic conditions. These details and specifications are easily obtained from your builder, contractors, and/or local engineers.

BEST PRICE GUARANTEE

Find the same house plan (modifications included!) and package for less on another site, show us the URL and we'll give you the difference plus an additional 10% back.

100% SATISFACTION GUARANTEE

We offer a one-time, 30-day exchange policy for unused, printed plan packages in the event you aren't satisfied with your first selection.

 
 

Plan 10591  Back to plan page

Loading...