Get discounts,
promos, see our
newest plans
and more!
+ 15% off any plan
See terms opt out anytime


No Thanks

Thanks for
signing up!


Use Code:

SIGNUP15

And save 15% off any plan!

Check your email for details.

CLOSE
Search Plans
Customer Reviews
     
15% off ALL House Plans Sitewide
15% off ALL House Plans Sitewide
15% off ALL House Plans Sitewide

Code: SAVE15
Sale ends midnight 4/22/2026 PST

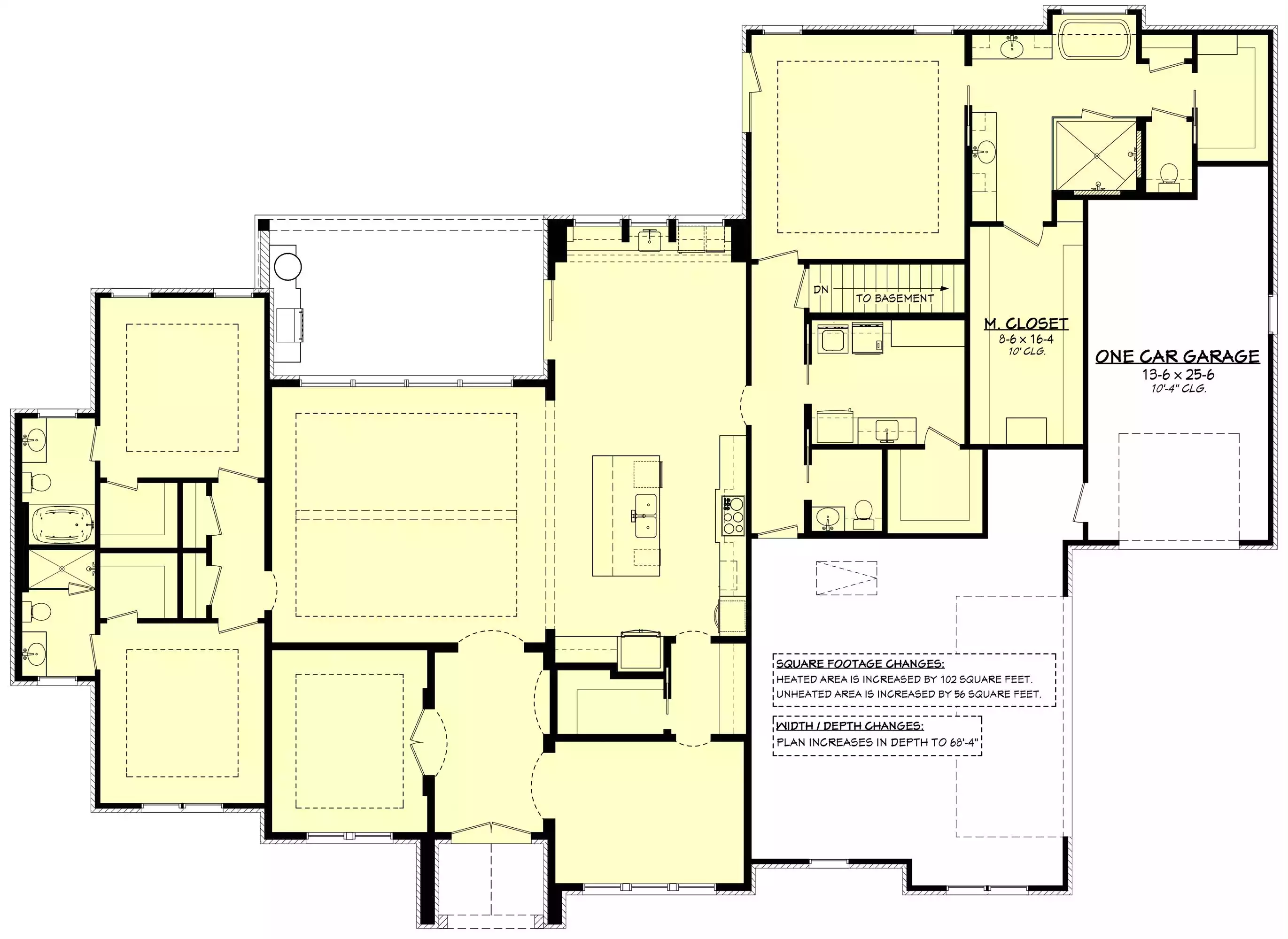
Arronvale | 3 Bedroom European Style House, Plan 12064

 
 

Sq Ft
3,078 FT²

Beds
3

Baths
3.5

Stories
1

Garage
3

Depth
64' 4"

Width
94'
On Sale
$1,398.25
$1,645.00
© copyright by designer
 View All 38 Images | Photographs may reflect modified home
Sq Ft
3,078 FT²
Beds
3
Baths
3.5
Stories
1
Garage
3
Depth
64' 4"
Width
94'
 
Click to Zoom In on Floor Plan
© copyright by designer
 
 

About This Plan

Arronvale delivers unforgettable European Ranch style with standout curb appeal, expansive windows, and architectural details that immediately set it apart. Inside, an open plan layout is elevated by volume ceilings and graceful archways that create a sense of scale while maintaining a warm, welcoming flow. The central living spaces connect seamlessly to a large rear porch, making indoor outdoor living feel effortless and ideal for entertaining. A keeping room with a wet bar adds a relaxed gathering space just off the main living area, while the kitchen impresses with a large walk in pantry, an additional butler’s pantry, and abundant workspace for hosting with ease. Oversized bedrooms throughout the home ensure comfort for family and guests alike. The primary suite is truly exceptional, offering generous proportions, two walk in closets, and a spa inspired atmosphere designed for daily retreat. Two guest suites each feature private baths, providing hotel style privacy for visitors. A flexible study or flex space adapts easily to work from home needs or hobbies, and the laundry room includes its own walk in closet for smart storage. A separate third car garage adds functionality without compromising the home’s striking exterior presence. Arronvale is a refined ranch design that balances luxury, comfort, and everyday livability.Arronvale is a luxury Texas Ranch house plan with volume ceilings, oversized bedrooms, and exceptional indoor outdoor living.Arronvale is a luxury Texas Ranch house plan with volume ceilings, oversized bedrooms, and exceptional indoor outdoor living. 


See All Plan Options
 

FEATURES & DETAILS

Kitchen features
Butler's Pantry
Kitchen Island
L-Shaped
Peninsula / Eating Bar
Walk-in Pantry
Bedroom features
Double Vanity Sink
Guest Suite
Primary Bdrm Main Floor
Separate Tub and Shower
Split Bedrooms
Walk-in Closet
Exterior features
Covered Front Porch
Covered Rear Porch
Outdoor Kitchen
Additional features
Dining Room
Foyer
Great Room
Home Office
Laundry 1st Fl
Mud Room
Open Floor Plan
Storage Space
Vaulted Ceilings
Vaulted Great Room/Living
Garage Location
Front
Garage Options
Attached
Front-entry
Side-entry
4,360 Ft
2
Total Structure
3,078 Ft
2
Total Heated
3,078 Ft
2
1st Floor
3
Bedrooms
3.5
Bathrooms
3
Garage
1
Stories
94' 0"
Width
64' 4"
Depth
22' 0"
Height
10' 0"
Main Floor Ceiling
2x4
Framing
Stick
Roof Framing
6/12
Primary Roof Pitch
3/12
Secondary Roof Pitch
Single
Dwelling Number
None
Bonus Access

Unheated Living Space
917 Ft
2
Garage
51 Ft
2
Storage
64 Ft
2
Front Porch
250 Ft
2
Rear Porch
 

Plan Package Options

 Select Plan Package
 Need To Reverse Plan? (Optional)
  Select Foundation Option
  Add-Ons (Optional)
INCLUDED WITH YOUR PURCHASE

Free Ground shipping in the U.S.

FREE

Home Building & Product Ideas Organizer

Sub Total
$0
Free Shipping
QUESTIONS OR NEED HELP ORDERING? LIVE CHAT OR CALL US AT 866-214-2242
Plan Packages

Each set of construction documents typically includes detailed, dimensioned floor plans, basic electric layouts, cross sections, roof details, cabinet layouts, and elevations, as well as general IRC specifications. Please refer to the ARCHITECT or DESIGNER’S PLAN DETAILS link above the floor plan on any plan page to determine the specific details for each plan. Our house plans contain virtually all of the information required to construct your home. The typical plan set does not include plumbing, HVAC drawings, or engineering stamps due to the wide variety of specific needs, local codes, and climatic conditions. These details and specifications are easily obtained from your builder, contractors, and/or local engineers.

BEST PRICE GUARANTEE

Find the same house plan (modifications included!) and package for less on another site, show us the URL and we'll give you the difference plus an additional 10% back.

100% SATISFACTION GUARANTEE

We offer a one-time, 30-day exchange policy for unused, printed plan packages in the event you aren't satisfied with your first selection.

 
 

Plan 12064  Back to plan page

Loading...