Get discounts,
promos, see our
newest plans
and more!
+ 15% off any plan
See terms opt out anytime


No Thanks

Thanks for
signing up!


Use Code:

SIGNUP15

And save 15% off any plan!

Check your email for details.

CLOSE
Search Plans
Customer Reviews
     
15% off ALL House Plans Sitewide
15% off ALL House Plans Sitewide
15% off ALL House Plans Sitewide

Code: HONOR
Sale ends midnight 5/31/2026 PST

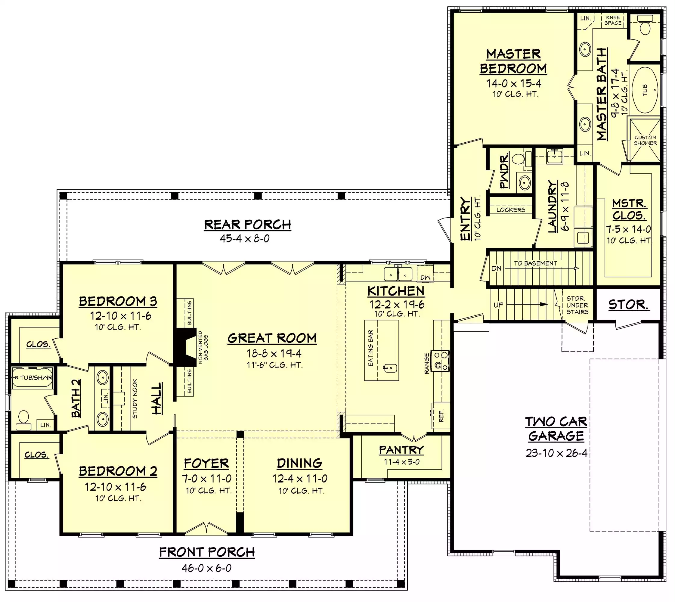
The Cottonwood 3 Bedroom Farmhouse Ranch Style House, Plan 9292

 
 

Sq Ft
2,282 FT²

Beds
3

Baths
2.5

Stories
1

Garage
2

Depth
62' 8"

Width
76'
On Sale
$1,228.25
$1,445.00
© copyright by designer
 View All 31 Images | Photographs may reflect modified home
Sq Ft
2,282 FT²
Beds
3
Baths
2.5
Stories
1
Garage
2
Depth
62' 8"
Width
76'
 
Click to Zoom In on Floor Plan
© copyright by designer
 
 

About This Plan

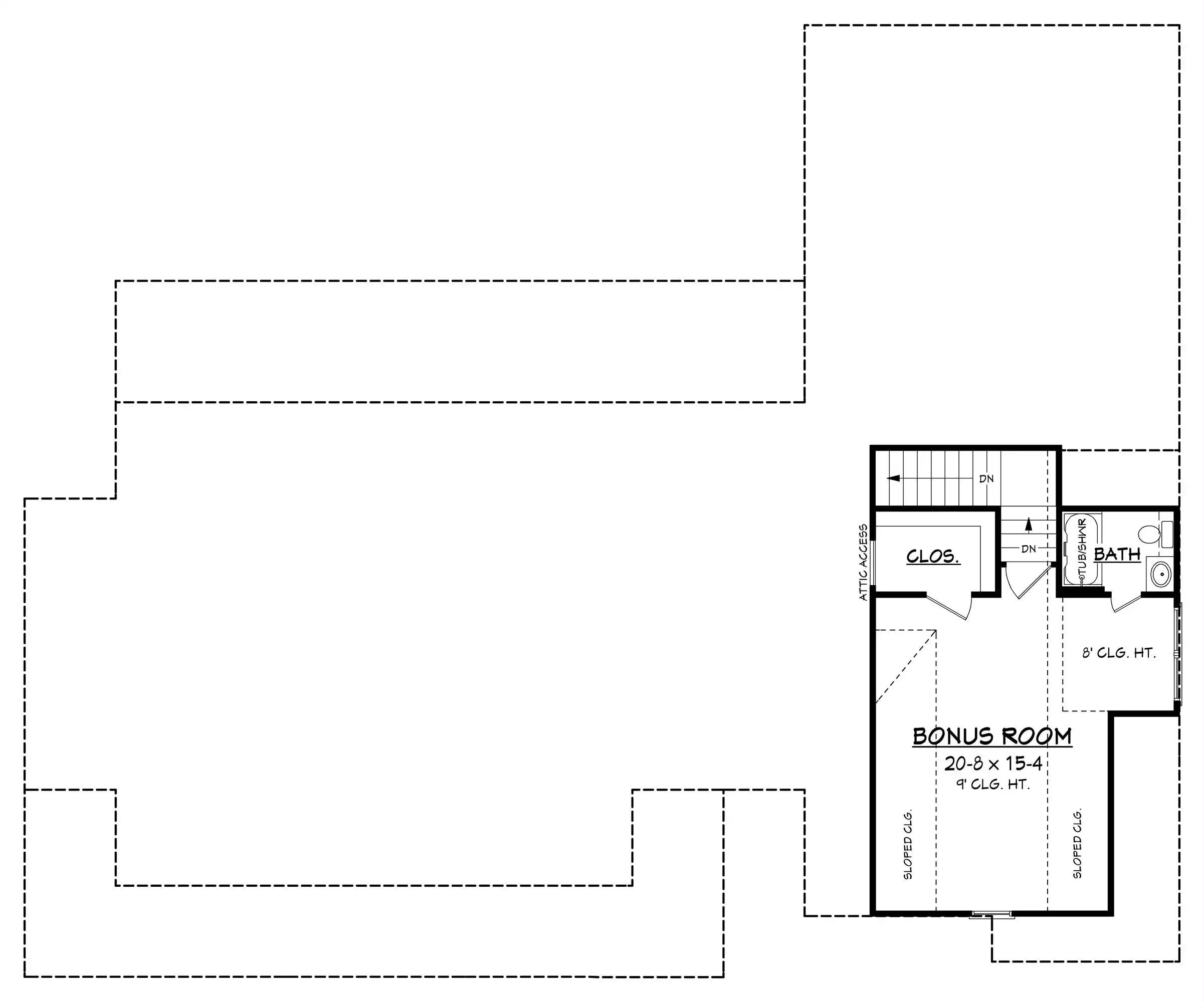
Step into the warmth and elegance of The Cottonwood, a 2,282-square-foot farmhouse perfect for families seeking comfort and style. A gorgeous wraparound porch leads you to a welcoming foyer. The spacious great room, with its cozy fireplace, flows seamlessly into the kitchen and dining areas, making it ideal for gatherings. The gourmet kitchen features a large island, ample counter space, and a walk-in pantry. The main floor primary suite offers a spa-like bathroom and a spacious walk-in closet. Practical features include a laundry room and mudroom. An optional bonus room above the garage provides flexibility, perfect for a playroom, home office, or guest suite. Traditional farmhouse elements like the front and rear covered porches add charm and outdoor living space. The attached two-car garage offers convenient and secure parking. This farmhouse blends timeless design with modern functionality, making it perfect for a family home or peaceful retreat. 

See All Plan Options
 

FEATURES & DETAILS

Kitchen features
Kitchen Island
U-Shaped
Walk-in Pantry
Bedroom features
Double Vanity Sink
Primary Bdrm Main Floor
Separate Tub and Shower
Split Bedrooms
Walk-in Closet
Exterior features
Covered Front Porch
Covered Rear Porch
Outdoor Living Space
Wraparound Porch
Lot Options
Suited for view lot
Additional features
Bonus Room
Dining Room
Fireplace
Foyer
Great Room
Laundry 1st Fl
Mud Room
Open Floor Plan
Unfinished Space
Vaulted Ceilings
Vaulted Great Room/Living
Garage Location
Front
Garage Options
Attached
Side-entry
2,282 Ft
2
Total Heated
2,282 Ft
2
1st Floor
3
Bedrooms
2.5
Bathrooms
2
Garage
1
Stories
76' 0"
Width
62' 8"
Depth
25' 0"
Height
10' 0"
Main Floor Ceiling
9' 0"
Lower Floor Ceiling
2x4
Framing
Stick
Roof Framing
12/12
Primary Roof Pitch
9/12
Secondary Roof Pitch
Single
Dwelling Number
1st Floor
Bonus Access

Unheated Living Space
689 Ft
2
Garage
352 Ft
2
Front Porch
363 Ft
2
Rear Porch
492 Ft
2
Bonus Room
 

Plan Package Options

 Select Plan Package
 Need To Reverse Plan? (Optional)
  Select Foundation Option
  Add-Ons (Optional)
INCLUDED WITH YOUR PURCHASE

Free Ground shipping in the U.S.

FREE

Home Building & Product Ideas Organizer

Sub Total
$0
Free Shipping
QUESTIONS OR NEED HELP ORDERING? LIVE CHAT OR CALL US AT 866-214-2242
Plan Packages

Each set of construction documents typically includes detailed, dimensioned floor plans, basic electric layouts, cross sections, roof details, cabinet layouts, and elevations, as well as general IRC specifications. Please refer to the ARCHITECT or DESIGNER’S PLAN DETAILS link above the floor plan on any plan page to determine the specific details for each plan. Our house plans contain virtually all of the information required to construct your home. The typical plan set does not include plumbing, HVAC drawings, or engineering stamps due to the wide variety of specific needs, local codes, and climatic conditions. These details and specifications are easily obtained from your builder, contractors, and/or local engineers.

BEST PRICE GUARANTEE

Find the same house plan (modifications included!) and package for less on another site, show us the URL and we'll give you the difference plus an additional 10% back.

100% SATISFACTION GUARANTEE

We offer a one-time, 30-day exchange policy for unused, printed plan packages in the event you aren't satisfied with your first selection.

 
 

Plan 9292  Back to plan page

Loading...