Get discounts,
promos, see our
newest plans
and more!
+ 15% off any plan
See terms opt out anytime


No Thanks

Thanks for
signing up!


Use Code:

SIGNUP15

And save 15% off any plan!

Check your email for details.

CLOSE
Search Plans
Customer Reviews
     
15% off ALL House Plans Sitewide
15% off ALL House Plans Sitewide
15% off ALL House Plans Sitewide

Code: SAVE15
Sale ends midnight 4/19/2026 PST

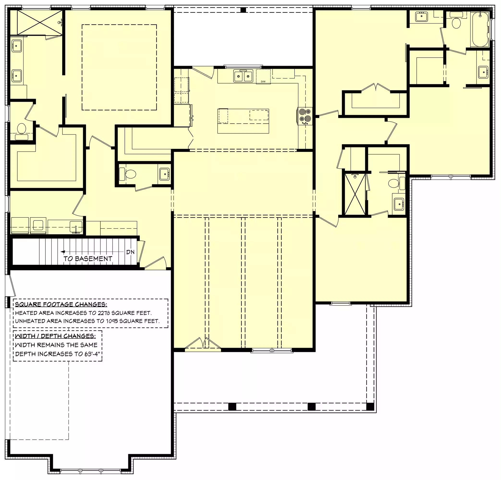
Haven Cove 1 Story Farmhouse Style House, Plan 10266

 
 

Sq Ft
2,258 FT²

Beds
4

Baths
3.5

Stories
1

Garage
2

Depth
59'

Width
66' 2"
On Sale
$1,228.25
$1,445.00
© copyright by designer
 View All 8 Images | Photographs may reflect modified home
Sq Ft
2,258 FT²
Beds
4
Baths
3.5
Stories
1
Garage
2
Depth
59'
Width
66' 2"
 
Click to Zoom In on Floor Plan
© copyright by designer
 
 

About This Plan

Haven Cove is a beautiful 4-bedroom, 3.5-bath modern farmhouse that blends timeless charm with contemporary comfort. Its inviting curb appeal leads into a spacious open-concept living area with raised ceilings and decorative beams, seamlessly connecting to the dining and kitchen spaces. The kitchen offers rear porch views, an island with an eating bar, a large walk-in pantry, and dedicated space for an ice maker and drink refrigerator. A rear entry with lockers and a broom cabinet keeps things organized, while a conveniently located powder room adds functionality. Each bedroom features a walk-in closet, with the primary suite boasting an oversized shower for a spa-like retreat. Designed for indoor-outdoor living, expansive front and rear porches provide the perfect setting to enjoy the surrounding views.
 

See All Plan Options
 

FEATURES & DETAILS

Kitchen features
Country Kitchen
Kitchen Island
L-Shaped
Peninsula / Eating Bar
Walk-in Pantry
Bedroom features
Double Vanity Sink
Primary Bdrm Main Floor
Split Bedrooms
Walk-in Closet
Exterior features
Covered Front Porch
Covered Rear Porch
Outdoor Living Space
Wraparound Porch
Lot Options
Suited for corner lot
Suited for view lot
Additional features
Dining Room
Great Room
Laundry 1st Fl
Mud Room
Open Floor Plan
Vaulted Ceilings
Vaulted Great Room/Living
Garage Location
Front
Garage Options
Attached
Side-entry
3,276 Ft
2
Total Structure
2,258 Ft
2
Total Heated
2,258 Ft
2
1st Floor
4
Bedrooms
3.5
Bathrooms
2
Garage
1
Stories
66' 2"
Width
59' 0"
Depth
29' 0"
Height
9' 0"
Main Floor Ceiling
11' 0"
Living/Great Room Ceiling
10' 0"
Primary Ceiling
2x4
Framing
Stick
Roof Framing
8/12
Primary Roof Pitch
3/12
Secondary Roof Pitch
Single
Dwelling Number

Unheated Living Space
595 Ft
2
Garage
423 Ft
2
Porch
271 Ft
2
Front Porch
152 Ft
2
Rear Porch
 

Plan Package Options

 Select Plan Package
 Need To Reverse Plan? (Optional)
  Select Foundation Option
  Add-Ons (Optional)
INCLUDED WITH YOUR PURCHASE

Free Ground shipping in the U.S.

FREE

Home Building & Product Ideas Organizer

Sub Total
$0
Free Shipping
QUESTIONS OR NEED HELP ORDERING? LIVE CHAT OR CALL US AT 866-214-2242
Plan Packages

Each set of construction documents typically includes detailed, dimensioned floor plans, basic electric layouts, cross sections, roof details, cabinet layouts, and elevations, as well as general IRC specifications. Please refer to the ARCHITECT or DESIGNER’S PLAN DETAILS link above the floor plan on any plan page to determine the specific details for each plan. Our house plans contain virtually all of the information required to construct your home. The typical plan set does not include plumbing, HVAC drawings, or engineering stamps due to the wide variety of specific needs, local codes, and climatic conditions. These details and specifications are easily obtained from your builder, contractors, and/or local engineers.

BEST PRICE GUARANTEE

Find the same house plan (modifications included!) and package for less on another site, show us the URL and we'll give you the difference plus an additional 10% back.

100% SATISFACTION GUARANTEE

We offer a one-time, 30-day exchange policy for unused, printed plan packages in the event you aren't satisfied with your first selection.

 
 

Plan 10266  Back to plan page

Loading...