Get discounts,
promos, see our
newest plans
and more!
+ 15% off any plan
See terms opt out anytime


No Thanks

Thanks for
signing up!


Use Code:

SIGNUP15

And save 15% off any plan!

Check your email for details.

CLOSE
Search Plans
Customer Reviews
     
15% off ALL House Plans Sitewide
15% off ALL House Plans Sitewide
15% off ALL House Plans Sitewide

Code: SAVE15
Sale ends midnight 4/19/2026 PST

Chicory Hill 5 Bedroom Traditional Style House, Plan 9393

 
 

Sq Ft
4,919 FT²

Beds
5

Baths
4.5

Stories
1

Garage
4

Depth
85'

Width
132'
On Sale
$1,445.00
$1,700.00
© copyright by designer
 View All 4 Images | Photographs may reflect modified home
Sq Ft
4,919 FT²
Beds
5
Baths
4.5
Stories
1
Garage
4
Depth
85'
Width
132'
 
Click to Zoom In on Floor Plan
© copyright by designer
 
 

About This Plan

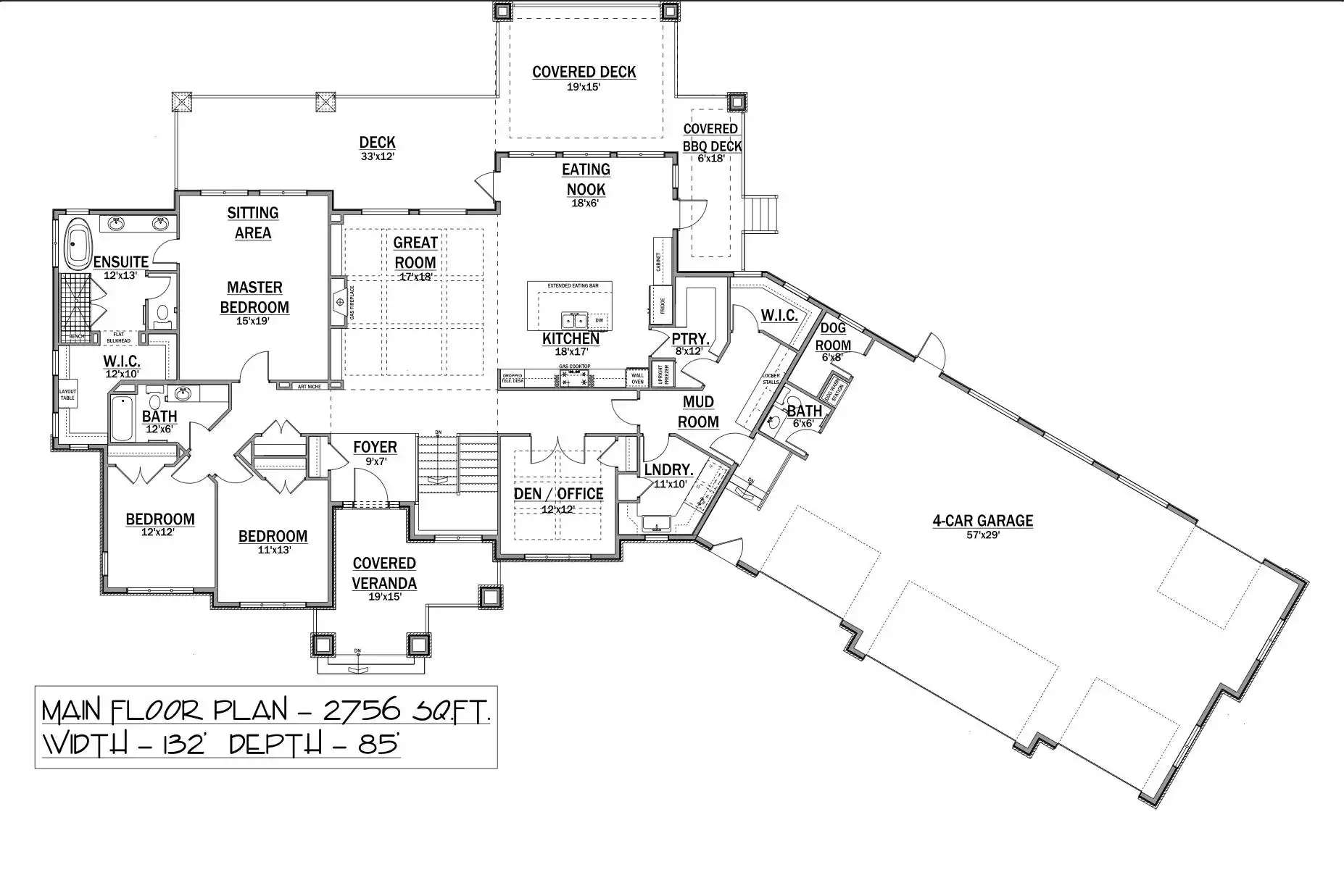
Chicory Hill showcases how one-story living can seamlessly expand into luxury with an impressive finished basement, adding two additional bedrooms, a wet bar, a rec room, a family room, an exercise room, a theater or craft room, and access to an expansive outdoor patio. The main level features three bedrooms, including a luxurious primary suite with an ensuite, a den/office, and a beautiful open-concept living space with a large covered balcony. Complete with a four-car garage and even a dedicated dog room for pet lovers, Chicory Hill is a perfect blend of style, comfort, and functionality. 

See All Plan Options
 

FEATURES & DETAILS

Kitchen features
Kitchen Island
Nook / Breakfast Area
Peninsula / Eating Bar
Walk-in Pantry
Bedroom features
Double Vanity Sink
Guest Suite
Primary Bdrm Main Floor
Separate Tub and Shower
Sitting Area
Walk-in Closet
Exterior features
Covered Front Porch
Covered Rear Porch
Outdoor Living Space
Lot Options
Suited for sloping lot
Suited for view lot
Additional features
Exercise Room
Family Room
Fireplace
Foyer
Great Room
Home Office
Laundry 1st Fl
Mud Room
Open Floor Plan
Rec Room
Storage Space
Garage Location
Front
Garage Options
Attached
4,919 Ft
2
Total Heated
2,756 Ft
2
1st Floor
2,163 Ft
2
Lower Floor
5
Bedrooms
4.5
Bathrooms
4
Garage
1
Stories
132' 0"
Width
85' 0"
Depth
27' 4"
Height
10' 1"
Main Floor Ceiling
9' 0"
Lower Floor Ceiling
2x6
Framing
Truss
Roof Framing
8:12
Primary Roof Pitch
Single
Dwelling Number

Unheated Living Space
1,652 Ft
2
Garage
1 Ft
2
Deck
 

Plan Package Options

 Select Plan Package
 Need To Reverse Plan? (Optional)
  Select Foundation Option
  Add-Ons (Optional)
INCLUDED WITH YOUR PURCHASE

Free Ground shipping in the U.S.

FREE

Home Building & Product Ideas Organizer

Sub Total
$0
Free Shipping
QUESTIONS OR NEED HELP ORDERING? LIVE CHAT OR CALL US AT 866-214-2242
Plan Packages

Each set of construction documents typically includes detailed, dimensioned floor plans, basic electric layouts, cross sections, roof details, cabinet layouts, and elevations, as well as general IRC specifications. Please refer to the ARCHITECT or DESIGNER’S PLAN DETAILS link above the floor plan on any plan page to determine the specific details for each plan. Our house plans contain virtually all of the information required to construct your home. The typical plan set does not include plumbing, HVAC drawings, or engineering stamps due to the wide variety of specific needs, local codes, and climatic conditions. These details and specifications are easily obtained from your builder, contractors, and/or local engineers.

BEST PRICE GUARANTEE

Find the same house plan (modifications included!) and package for less on another site, show us the URL and we'll give you the difference plus an additional 10% back.

100% SATISFACTION GUARANTEE

We offer a one-time, 30-day exchange policy for unused, printed plan packages in the event you aren't satisfied with your first selection.

 
 

Plan 9393  Back to plan page

Loading...