Get discounts,
promos, see our
newest plans
and more!
+ 15% off any plan
See terms opt out anytime


No Thanks

Thanks for
signing up!


Use Code:

SIGNUP15

And save 15% off any plan!

Check your email for details.

CLOSE
Search Plans
     
20% Off House Plans Sitewide Ends Tuesday
20% Off House Plans Sitewide Ends Tuesday
20% Off House Plans Sitewide Ends Tuesday

Code: VET20
Sale ends midnight 11/11/2025 PST

Sq Ft
1,486 FT²

Beds
3

Baths
2.5

Stories
2

Garage
2

Depth
47'

Width
28'
On Sale
$1,093.60
$1,367.00
© copyright by designer
 View All 4 Images | Photographs may reflect modified home
Sq Ft
1,486 FT²
Beds
3
Baths
2.5
Stories
2
Garage
2
Depth
47'
Width
28'
 
Click to Zoom In on Floor Plan
© copyright by designer
 
 

About This Plan

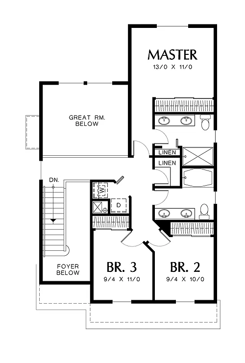
If you're considering building on a very narrow lot, or are looking for a diminutive plan, this design may work perfectly for you. With a total width of only 28 feet, it will fit on most in-fill or city lots. The plan puts living spaces to the back, so that the garage protects the home from street noise. The great room rises a full two stories, has a warming fireplace and is open to the modified U-shaped kitchen and the dining area. A half-bath, tucked behind the garage, is a thoughtful convenience. Bedrooms on the second floor include two family bedrooms and a master suite. Both the main bath and the master bath have vanities with two sinks. The master bath also has a linen closet; a walk-in linen closet sits in the hallway. Notice also that the laundry area is on the second floor.
 

See All Plan Options
 

FEATURES & DETAILS

Kitchen features
Country Kitchen
Peninsula / Eating Bar
Bedroom features
Double Vanity Sink
Primary Bdrm Upstairs
Exterior features
Front Porch
Foundation Options
Basement
Crawlspace
Slab
Lot Options
Suited for narrow lot
Additional features
Fireplace
Foyer
Great Room
Laundry 2nd Fl
Open Floor Plan
Vaulted Ceilings
Garage Location
Front
Garage Options
Attached
Front-entry
1,486 Ft
2
Total Heated
704 Ft
2
1st Floor
782 Ft
2
2nd Floor
3
Bedrooms
2.5
Bathrooms
2
Garage
2
Stories
28' 0"
Width
47' 0"
Depth
27' 0"
Height
8' 0"
Main Floor Ceiling
8' 0"
Upper Floor Ceiling
2x6
Framing
Truss
Roof Framing
8/12
Primary Roof Pitch
10/12
Secondary Roof Pitch
Single
Dwelling Number
None
Bonus Access

Unheated Living Space
420 Ft
2
Garage
 

Plan Package Options

 Select Plan Package
Sale: $1,094
PDF Single Build
$1,367

Digital plans emailed to you in PDF format that allows for printing copies and sharing electronically with contractors, subs, decorators, and more. This package includes a license to build the home one time.

Sale: $1,094
Sale: $1,334
5 Printed Sets + PDF
$1,667

Digital plan emailed to you in PDF format that allows for printing copies on a home printer or local print shop and sharing with contractors, subs, decorators, and more. PLUS five printed sets shipped and delivered 3-5 business days.

Sale: $1,334
Sale: $2,187
CAD + PDF Single Build
$2,734

CAD files are a complete set of construction drawings delivered electronically. They can be used for any type of modification—including major design changes and engineering—and include a release granting permission to modify the plan. Most CAD plan orders are emailed the same or next business day.
 
This package also comes with a PDF set of plans and a copyright release for making modifications and printing unlimited copies.
 
CAD files are provided in .dwg format. For details on the specific CAD program used, please refer to the PLAN DETAILS section located above the floor plan on each plan’s page.

Sale: $2,187
 Need To Reverse Plan? (Optional)
$250
Readable Reverse

Reverse house plans with readable text and dimensions 

$250
  Select Foundation Option
  Add-Ons (Optional)
INCLUDED WITH YOUR PURCHASE

Free Ground shipping in the Continental U.S.

FREE

Design consultation with the architect or designer to discuss your plan

Home Building & Product Ideas Organizer

Sub Total
$0
Free Shipping
QUESTIONS OR NEED HELP ORDERING? LIVE CHAT OR CALL US AT 866-214-2242
Plan Packages

Each set of construction documents includes detailed, dimensioned floor plans, basic electric layouts, cross sections, roof details, cabinet layouts and elevations, as well as general IRC specifications. They contain virtually all of the information required to construct your home. The typical plan set does not include any plumbing, HVAC drawings, or engineering stamps due to the wide variety of specific needs, local codes, and climatic conditions. These details and specifications are easily obtained from your builder, contractors, and/or local engineers.

BEST PRICE GUARANTEE

find the same house plan (modifications included!) and package for less on another site, show us the URL and we'll give you the difference plus an additional 5% back.

100% SATISFACTION GUARANTEE

We offer a one-time, 30-day exchange policy for unused, non-electronic plan packages in the event you aren't satisfied with your first selection.

 
 

Plan 2521  Back to plan page

Loading...