Get discounts,
promos, see our
newest plans
and more!
+ 15% off any plan
See terms opt out anytime


No Thanks

Thanks for
signing up!


Use Code:

SIGNUP15

And save 15% off any plan!

Check your email for details.

CLOSE
Search Plans
     

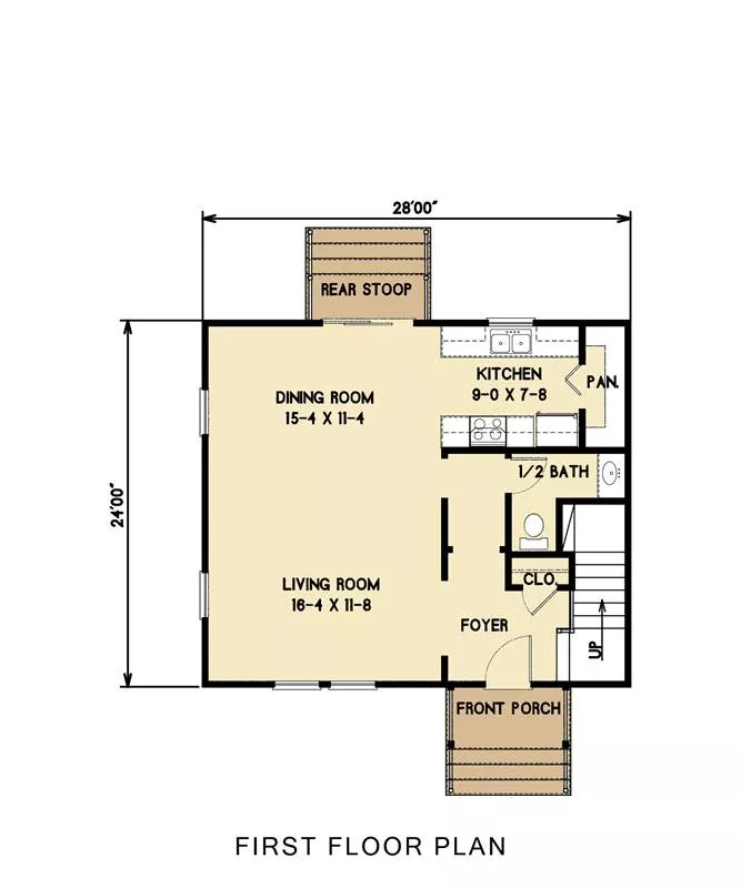
Norfolk Affordable Traditional Style House, Plan 1610

 
 

Sq Ft
1,344 FT²

Beds
3

Baths
1.5

Stories
2

Garage
0

Depth
24'

Width
28'
From
$820.00
© copyright by designer
 View All 7 Images | Photographs may reflect modified home
Sq Ft
1,344 FT²
Beds
3
Baths
1.5
Stories
2
Garage
0
Depth
24'
Width
28'
 
Click to Zoom In on Floor Plan
© copyright by designer
 
 

About This Plan

The Norfolk is an historical two-story house plan designed for an urban infill site ideal for a shallow lot. It was originally created for a property in Norfolk, Virginia. The 28-foot house width leaves adequate room for access to a detached garage to the left or right of the house. The style of this home design is characterized by pattern book plans of the early 1900's such as those published by Sears and Roebuck. At that time a homeowner could order a kit of pre-cut lumber and all of the other materials and finishes to complete the construction of a complete new home. 

See All Plan Options
 

FEATURES & DETAILS

Kitchen features
Walk-in Pantry
Bedroom features
Primary Bdrm Upstairs
Walk-in Closet
Exterior features
Front Porch
Rear Porch
Foundation Options
Crawlspace
Lot Options
Suited for corner lot
Suited for narrow lot
Suited for sloping lot
Additional features
Dining Room
Formal LR
Foyer
Laundry 2nd Fl
Open Floor Plan
Garage Location
None
Garage Options
None
1,400 Ft
2
Total Structure
1,344 Ft
2
Total Heated
672 Ft
2
1st Floor
672 Ft
2
2nd Floor
3
Bedrooms
1.5
Bathrooms
0
Garage
2
Stories
28' 0"
Width
24' 0"
Depth
29' 7"
Height
9' 0"
Main Floor Ceiling
8' 0"
Upper Floor Ceiling
2x4
Framing
Stick
Roof Framing
8/12
Primary Roof Pitch
4/12
Secondary Roof Pitch
9/12
Porch Roof Pitch
Single
Dwelling Number

Unheated Living Space
56 Ft
2
Porch
 

Plan Package Options

 Select Plan Package
$200
PDF Bid Set

Home plans stamped "NOT FOR CONSTRUCTION" for cost estimating and bidding purposes only; a minimum 5 set plan package must be purchased within 90 days for a license to build plan set; a credit will be applied towards your house plan upgrade

$200
$820
PDF Single Build

Digital plans emailed to you in PDF format that allows for printing copies and sharing electronically with contractors, subs, decorators, and more. This package includes a license to build the home one time.

$820
$920
5 Printed Sets

Five Printed Sets of Residential Construction Drawings are typically 24” x 36” documents and come with a license to construct a single residence shipped to a physical address. Keep in mind PDF Plan Packages are our most popular choice which allows you to print as many copies as you need and to electronically send files to your builder, subcontractors, etc.

$920
$1,325
CAD + PDF Single Build

CAD files are a complete set of construction drawings delivered electronically. They can be used for any type of modification—including major design changes and engineering—and include a release granting permission to modify the plan. Most CAD plan orders are emailed the same or next business day.
 
This package also comes with a PDF set of plans and a copyright release for making modifications and printing unlimited copies.
 
CAD files are provided in .dwg format. For details on the specific CAD program used, please refer to the PLAN DETAILS section located above the floor plan on each plan’s page.

$1,325
 Need To Reverse Plan? (Optional)
$150
Readable Reverse

Reverse house plans with readable text and dimensions 

$150
  Select Foundation Option
  Add-Ons (Optional)
INCLUDED WITH YOUR PURCHASE

Free Ground shipping in the Continental U.S.

FREE

Design consultation with the architect or designer to discuss your plan

Home Building & Product Ideas Organizer

Sub Total
$0
Free Shipping
QUESTIONS OR NEED HELP ORDERING? LIVE CHAT OR CALL US AT 866-214-2242
Plan Packages

Each set of construction documents includes detailed, dimensioned floor plans, basic electric layouts, cross sections, roof details, cabinet layouts and elevations, as well as general IRC specifications. They contain virtually all of the information required to construct your home. The typical plan set does not include any plumbing, HVAC drawings, or engineering stamps due to the wide variety of specific needs, local codes, and climatic conditions. These details and specifications are easily obtained from your builder, contractors, and/or local engineers.

BEST PRICE GUARANTEE

find the same house plan (modifications included!) and package for less on another site, show us the URL and we'll give you the difference plus an additional 5% back.

100% SATISFACTION GUARANTEE

We offer a one-time, 30-day exchange policy for unused, non-electronic plan packages in the event you aren't satisfied with your first selection.

 
 

Plan 1610  Back to plan page

Loading...