Get discounts,
promos, see our
newest plans
and more!
+ 15% off any plan
See terms opt out anytime


No Thanks

Thanks for
signing up!


Use Code:

SIGNUP15

And save 15% off any plan!

Check your email for details.

CLOSE
Search Plans
Customer Reviews
     
15% off ALL House Plans Sitewide
15% off ALL House Plans Sitewide
15% off ALL House Plans Sitewide

Code: HONOR
Sale ends midnight 5/31/2026 PST

Sq Ft
2,066 FT²

Beds
3

Baths
2.5

Stories
1.5

Garage
2

Depth
51'

Width
38'
On Sale
$1,438.20
$1,692.00
© copyright by designer
 View All 5 Images | Photographs may reflect modified home
Sq Ft
2,066 FT²
Beds
3
Baths
2.5
Stories
1.5
Garage
2
Depth
51'
Width
38'
 
Click to Zoom In on Floor Plan
© copyright by designer
 
 

About This Plan

A simple house. A quaint house. But one that rings with the exquisite expression of quality design and classic planning. The exterior is made special by a recessed entry with transom, a Palladian window and an oval louver over second-floor windows. The foyer acts as hub for the plan and holds an open-rail staircase, half-bath and coat closet. The laundry room is nearby, as is access to the two-car garage. Double doors to the right of the entry lead to a den with closet and wonderful ceiling detail. Living and dining rooms are beyond the den, separated by a columned wall and plant shelf. The living room has a warm fireplace. The nook also enjoys the warmth of a hearth - warmth it shares with the breakfast nook and kitchen.

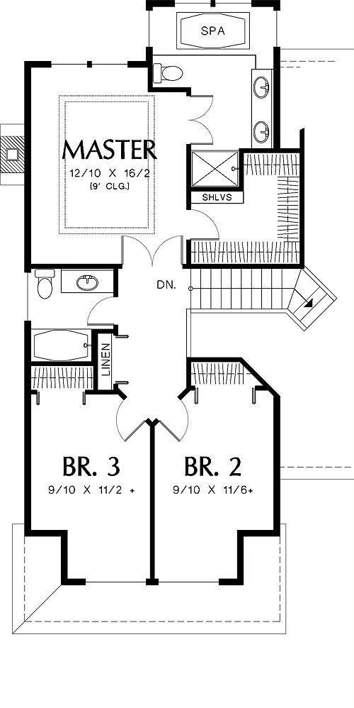
Second-level bedrooms circulate from a central hall overlooking the foyer below. The master bedroom has a tray ceiling, walk-in closet and bath with spa tub and separate shower.
 


See All Plan Options
 

FEATURES & DETAILS

Kitchen features
Kitchen Island
Nook / Breakfast Area
Bedroom features
Double Vanity Sink
Primary Bdrm Upstairs
Separate Tub and Shower
Walk-in Closet
Exterior features
Front Porch
Foundation Options
Basement
Crawlspace
Slab
Lot Options
Suited for narrow lot
Additional features
2 Story Volume
Dining Room
Family Room
Fireplace
Formal LR
Foyer
Home Office
Laundry 1st Fl
Vaulted Ceilings
Garage Location
Front
Garage Options
Attached
Front-entry
2,066 Ft
2
Total Heated
1,175 Ft
2
1st Floor
891 Ft
2
2nd Floor
3
Bedrooms
2.5
Bathrooms
2
Garage
1.5
Stories
38' 0"
Width
51' 0"
Depth
27' 0"
Height
Varies' 0"
Main Floor Ceiling
Varies' 0"
Upper Floor Ceiling
2x6
Framing
Stick
Roof Framing
10/12
Primary Roof Pitch
Single
Dwelling Number
None
Bonus Access

Unheated Living Space
438 Ft
2
Garage
Exterior Styles
 

Plan Package Options

 Select Plan Package
 Need To Reverse Plan? (Optional)
  Select Foundation Option
  Add-Ons (Optional)
INCLUDED WITH YOUR PURCHASE

Free Ground shipping in the U.S.

FREE

Home Building & Product Ideas Organizer

Sub Total
$0
Free Shipping
QUESTIONS OR NEED HELP ORDERING? LIVE CHAT OR CALL US AT 866-214-2242
Plan Packages

Each set of construction documents typically includes detailed, dimensioned floor plans, basic electric layouts, cross sections, roof details, cabinet layouts, and elevations, as well as general IRC specifications. Please refer to the ARCHITECT or DESIGNER’S PLAN DETAILS link above the floor plan on any plan page to determine the specific details for each plan. Our house plans contain virtually all of the information required to construct your home. The typical plan set does not include plumbing, HVAC drawings, or engineering stamps due to the wide variety of specific needs, local codes, and climatic conditions. These details and specifications are easily obtained from your builder, contractors, and/or local engineers.

BEST PRICE GUARANTEE

Find the same house plan (modifications included!) and package for less on another site, show us the URL and we'll give you the difference plus an additional 10% back.

100% SATISFACTION GUARANTEE

We offer a one-time, 30-day exchange policy for unused, printed plan packages in the event you aren't satisfied with your first selection.

 
 

Plan 2648  Back to plan page

Loading...