Get discounts,
promos, see our
newest plans
and more!
+ 15% off any plan
See terms opt out anytime


No Thanks

Thanks for
signing up!


Use Code:

SIGNUP15

And save 15% off any plan!

Check your email for details.

CLOSE
Search Plans
Customer Reviews
     
15% off ALL House Plans Sitewide
15% off ALL House Plans Sitewide
15% off ALL House Plans Sitewide

Code: SAVE15
Sale ends midnight 4/19/2026 PST

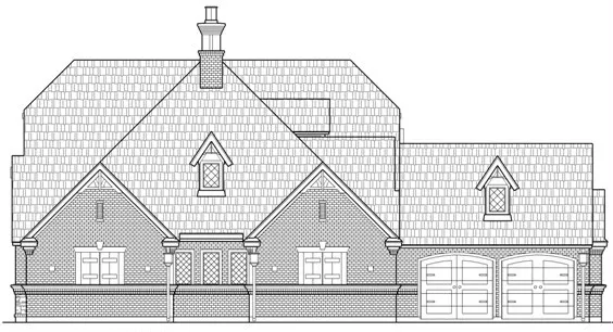
Begonia Landing | 3 Bedroom European Style House, Plan 4699

 
 

Sq Ft
3,047 FT²

Beds
3

Baths
3

Stories
2

Garage
2

Depth
72' 6"

Width
53'
On Sale
$1,020.00
$1,200.00
© copyright by designer
 View All 18 Images | Photographs may reflect modified home
Sq Ft
3,047 FT²
Beds
3
Baths
3
Stories
2
Garage
2
Depth
72' 6"
Width
53'
 
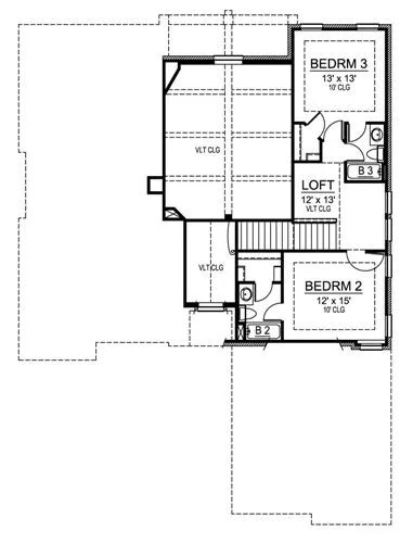
Click to Zoom In on Floor Plan
© copyright by designer
 
 

About This Plan

This home offers a two-story vaulted foyer flanked by a study with built-ins and a coffered ceiling and an elegant dining room. The dining room has direct access to the butlery, pantry and kitchen for ease in serving. An eating bar serves the family room and breakfast area. The master suite includes a tray ceiling, and a spacious bath boasting his and hers vanities, separate shower, tub and large walk-in closet with built-ins. There are banks of windows in each room to the rear of the home. Access the patio from the master suite or breakfast area. Two bedrooms with walk-in closets and full baths reside upstairs and share space with a loft. 

See All Plan Options
 

FEATURES & DETAILS

Kitchen features
Butler's Pantry
Nook / Breakfast Area
Peninsula / Eating Bar
Walk-in Pantry
Bedroom features
Double Vanity Sink
Primary Bdrm Main Floor
Separate Tub and Shower
Split Bedrooms
Walk-in Closet
Exterior features
Covered Front Porch
Covered Rear Porch
Front Porch
Rear Porch
Foundation Options
Slab
Lot Options
Suited for corner lot
Additional features
2 Story Volume
Arches
Dining Room
Family Room
Fireplace
Foyer
Home Office
Laundry 1st Fl
Loft / Balcony
Open Floor Plan
Vaulted Ceilings
Garage Location
Front
Garage Options
Attached
Side-entry
3,747 Ft
2
Total Structure
3,047 Ft
2
Total Heated
2,312 Ft
2
1st Floor
735 Ft
2
2nd Floor
3
Bedrooms
3
Bathrooms
2
Garage
2
Stories
53' 0"
Width
72' 6"
Depth
33' 9"
Height
10' 0"
Main Floor Ceiling
9' 0"
Upper Floor Ceiling
2x4
Framing
Stick
Roof Framing
12
Primary Roof Pitch
18
Dormer Roof Pitch
Single
Dwelling Number

Unheated Living Space
568 Ft
2
Garage
29 Ft
2
Porch
103 Ft
2
Patio
 

Plan Package Options

 Select Plan Package
 Need To Reverse Plan? (Optional)
  Select Foundation Option
  Add-Ons (Optional)
INCLUDED WITH YOUR PURCHASE

Free Ground shipping in the U.S.

FREE

Home Building & Product Ideas Organizer

Sub Total
$0
Free Shipping
QUESTIONS OR NEED HELP ORDERING? LIVE CHAT OR CALL US AT 866-214-2242
Plan Packages

Each set of construction documents typically includes detailed, dimensioned floor plans, basic electric layouts, cross sections, roof details, cabinet layouts, and elevations, as well as general IRC specifications. Please refer to the ARCHITECT or DESIGNER’S PLAN DETAILS link above the floor plan on any plan page to determine the specific details for each plan. Our house plans contain virtually all of the information required to construct your home. The typical plan set does not include plumbing, HVAC drawings, or engineering stamps due to the wide variety of specific needs, local codes, and climatic conditions. These details and specifications are easily obtained from your builder, contractors, and/or local engineers.

BEST PRICE GUARANTEE

Find the same house plan (modifications included!) and package for less on another site, show us the URL and we'll give you the difference plus an additional 10% back.

100% SATISFACTION GUARANTEE

We offer a one-time, 30-day exchange policy for unused, printed plan packages in the event you aren't satisfied with your first selection.

 
 

Plan 4699  Back to plan page

Loading...