Get discounts,
promos, see our
newest plans
and more!
+ 15% off any plan
See terms opt out anytime


No Thanks

Thanks for
signing up!


Use Code:

SIGNUP15

And save 15% off any plan!

Check your email for details.

CLOSE
Search Plans
Customer Reviews
     
22% Off House Plans Sitewide Ends Sunday

Code: SAVE22
Sale ends midnight 12/7/2025 PST

Sq Ft
3,028 FT²

Beds
4

Baths
3.5

Stories
2

Garage
3

Depth
52' 8"

Width
76' 8"
From
$1,300.00
© copyright by designer
 View All 5 Images | Photographs may reflect modified home
Sq Ft
3,028 FT²
Beds
4
Baths
3.5
Stories
2
Garage
3
Depth
52' 8"
Width
76' 8"
 
Click to Zoom In on Floor Plan
© copyright by designer
 
 

About This Plan

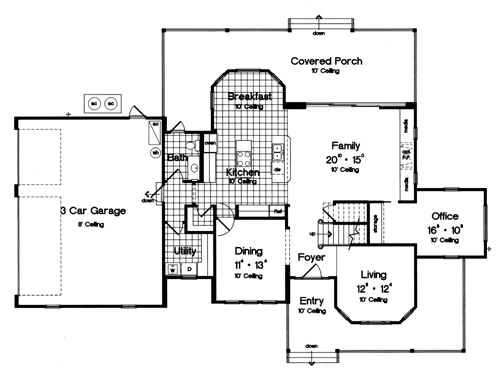
A warm and inviting porch creates the perfect place for cool evening talks on the glider, while upon entering this lovely home; one is struck with the charm of yesteryear.

The warmth and charm of this home is enhanced with “minimum wasted space” design of which Home Design Services is famous.

Generously sized living and dining room lead past the open staircase to the heart of the home, the kitchen/nook and family area, which is bathed in light.

Tucked away is the perfect little home/office/hobby room with built in desk under the stairs.

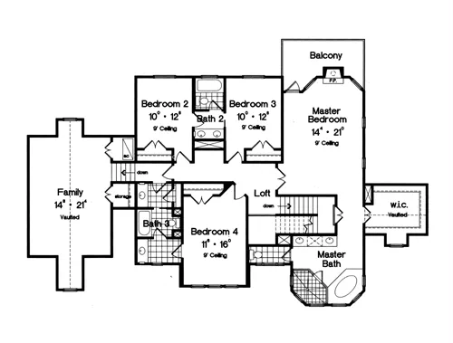
The second floor boasts a wonderful master suite with fireplace and a balcony overlooking the staircase as you proceed to the lavish master bath.

Two bedrooms share a private bath, while a “dual use” bath has been designed to make the bonus room a possible bedroom with private vanity areas.










 

See All Plan Options
 

FEATURES & DETAILS

Kitchen features
Kitchen Island
Nook / Breakfast Area
Walk-in Pantry
Bedroom features
Walk-in Closet
Exterior features
Front Porch
Foundation Options
Slab
Additional features
2 Story Volume
Arches
Bonus Room
Foyer
Home Office
Vaulted Ceilings
Garage Location
Side
Garage Options
Attached
Side-entry
3,028 Ft
2
Total Heated
1,474 Ft
2
1st Floor
1,554 Ft
2
2nd Floor
4
Bedrooms
3.5
Bathrooms
3
Garage
2
Stories
76' 8"
Width
52' 8"
Depth
32' 4"
Height
10' 0"
Main Floor Ceiling
9' 0"
Upper Floor Ceiling
2x4
Framing
Truss
Roof Framing
8/12
Primary Roof Pitch
Single
Dwelling Number
2nd Floor
Bonus Access

Unheated Living Space
749 Ft
2
Garage
281 Ft
2
Porch
116 Ft
2
Deck
475 Ft
2
Patio
436 Ft
2
Bonus Room
 

Plan Package Options

 Select Plan Package
$700
PDF Bid Set

Home plans stamped "NOT FOR CONSTRUCTION" for cost estimating and bidding purposes only; a minimum 5 set plan package must be purchased within 90 days for a license to build plan set; a credit will be applied towards your house plan upgrade

$700
$1,300
PDF Single Build

Digital plans emailed to you in PDF format that allows for printing copies and sharing electronically with contractors, subs, decorators, and more. This package includes a license to build the home one time.

$1,300
$1,500
5 Printed Sets

Five Printed Sets of Residential Construction Drawings are typically 24” x 36” documents and come with a license to construct a single residence shipped to a physical address. Keep in mind PDF Plan Packages are our most popular choice which allows you to print as many copies as you need and to electronically send files to your builder, subcontractors, etc.

$1,500
$1,650
5 Printed Sets + PDF

Digital plan emailed to you in PDF format that allows for printing copies on a home printer or local print shop and sharing with contractors, subs, decorators, and more. PLUS five printed sets shipped and delivered 3-5 business days.

$1,650
$2,600
CAD + PDF Single Build

CAD files are a complete set of construction drawings delivered electronically. They can be used for any type of modification—including major design changes and engineering—and include a release granting permission to modify the plan. Most CAD plan orders are emailed the same or next business day.
 
This package also comes with a PDF set of plans and a copyright release for making modifications and printing unlimited copies.
 
CAD files are provided in .dwg format. For details on the specific CAD program used, please refer to the PLAN DETAILS section located above the floor plan on each plan’s page.

$2,600
  Select Foundation Option
  Add-Ons (Optional)
INCLUDED WITH YOUR PURCHASE

Free Ground shipping in the Continental U.S.

FREE

Design consultation with the architect or designer to discuss your plan

Home Building & Product Ideas Organizer

Sub Total
$0
Free Shipping
QUESTIONS OR NEED HELP ORDERING? LIVE CHAT OR CALL US AT 866-214-2242
Plan Packages

Each set of construction documents includes detailed, dimensioned floor plans, basic electric layouts, cross sections, roof details, cabinet layouts and elevations, as well as general IRC specifications. They contain virtually all of the information required to construct your home. The typical plan set does not include any plumbing, HVAC drawings, or engineering stamps due to the wide variety of specific needs, local codes, and climatic conditions. These details and specifications are easily obtained from your builder, contractors, and/or local engineers.

BEST PRICE GUARANTEE

find the same house plan (modifications included!) and package for less on another site, show us the URL and we'll give you the difference plus an additional 5% back.

100% SATISFACTION GUARANTEE

We offer a one-time, 30-day exchange policy for unused, non-electronic plan packages in the event you aren't satisfied with your first selection.

 
 

Plan 4110  Back to plan page

Loading...