Get discounts,
promos, see our
newest plans
and more!
+ 15% off any plan
See terms opt out anytime


No Thanks

Thanks for
signing up!


Use Code:

SIGNUP15

And save 15% off any plan!

Check your email for details.

CLOSE
Search Plans
Customer Reviews
     
22% Off House Plans Sitewide Ends Sunday
22% Off House Plans Sitewide Ends Sunday
22% Off House Plans Sitewide Ends Sunday

Code: SAVE22
Sale ends midnight 12/7/2025 PST

Sq Ft
2,145 FT²

Beds
3

Baths
3.5

Stories
1.5

Garage
2

Depth
51'

Width
72'
On Sale
$1,060.80
$1,360.00
© copyright by designer
 View All 5 Images | Photographs may reflect modified home
Sq Ft
2,145 FT²
Beds
3
Baths
3.5
Stories
1.5
Garage
2
Depth
51'
Width
72'
 
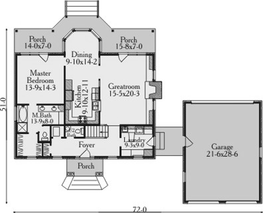
Click to Zoom In on Floor Plan
© copyright by designer
 
 

About This Plan

A unique home looks great from front and rear. Garage even has doors in front and rear if preferred. A grand foyer opens to stairwell and loft above. A warming fireplace, built-in cabinets and quarter round windows are the focal points of the living room. The upstairs loft is lined with cabinets and shelves. 

See All Plan Options
 

FEATURES & DETAILS

Bedroom features
Double Vanity Sink
Primary Bdrm Main Floor
Separate Tub and Shower
Walk-in Closet
Exterior features
Breezeway
Covered Front Porch
Covered Rear Porch
Foundation Options
Basement
Crawlspace
Slab
Lot Options
Suited for view lot
Additional features
Fireplace
Foyer
Great Room
Laundry 1st Fl
Loft / Balcony
Mud Room
Garage Location
Side
Garage Options
Detached
Front-entry
2,145 Ft
2
Total Heated
1,351 Ft
2
1st Floor
794 Ft
2
2nd Floor
3
Bedrooms
3.5
Bathrooms
2
Garage
1.5
Stories
72' 0"
Width
51' 0"
Depth
27' 0"
Height
10' 0"
Main Floor Ceiling
8' 0"
Upper Floor Ceiling
2x4
Framing
Stick
Roof Framing
10/12
Primary Roof Pitch
Single
Dwelling Number
None
Bonus Access

Unheated Living Space
616 Ft
2
Garage
147 Ft
2
Porch
 

Plan Package Options

 Select Plan Package
Sale: $1,061
PDF Single Build
$1,360

Digital plans emailed to you in PDF format that allows for printing copies and sharing electronically with contractors, subs, decorators, and more. This package includes a license to build the home one time.

Sale: $1,061
Sale: $1,330
5 Printed Sets
$1,705

Five Printed Sets of Residential Construction Drawings are typically 24” x 36” documents and come with a license to construct a single residence shipped to a physical address. Keep in mind PDF Plan Packages are our most popular choice which allows you to print as many copies as you need and to electronically send files to your builder, subcontractors, etc.

Sale: $1,330
Sale: $1,466
5 Printed Sets + PDF
$1,880

Digital plan emailed to you in PDF format that allows for printing copies on a home printer or local print shop and sharing with contractors, subs, decorators, and more. PLUS five printed sets shipped and delivered 3-5 business days.

Sale: $1,466
Sale: $1,806
CAD + PDF Single Build
$2,315

CAD files are a complete set of construction drawings delivered electronically. They can be used for any type of modification—including major design changes and engineering—and include a release granting permission to modify the plan. Most CAD plan orders are emailed the same or next business day.
 
This package also comes with a PDF set of plans and a copyright release for making modifications and printing unlimited copies.
 
CAD files are provided in .dwg format. For details on the specific CAD program used, please refer to the PLAN DETAILS section located above the floor plan on each plan’s page.

Sale: $1,806
  Select Foundation Option
  Add-Ons (Optional)
INCLUDED WITH YOUR PURCHASE

Free Ground shipping in the Continental U.S.

FREE

Design consultation with the architect or designer to discuss your plan

Home Building & Product Ideas Organizer

Sub Total
$0
Free Shipping
QUESTIONS OR NEED HELP ORDERING? LIVE CHAT OR CALL US AT 866-214-2242
Plan Packages

Each set of construction documents includes detailed, dimensioned floor plans, basic electric layouts, cross sections, roof details, cabinet layouts and elevations, as well as general IRC specifications. They contain virtually all of the information required to construct your home. The typical plan set does not include any plumbing, HVAC drawings, or engineering stamps due to the wide variety of specific needs, local codes, and climatic conditions. These details and specifications are easily obtained from your builder, contractors, and/or local engineers.

BEST PRICE GUARANTEE

find the same house plan (modifications included!) and package for less on another site, show us the URL and we'll give you the difference plus an additional 5% back.

100% SATISFACTION GUARANTEE

We offer a one-time, 30-day exchange policy for unused, non-electronic plan packages in the event you aren't satisfied with your first selection.

 
 

Plan 3529  Back to plan page

Loading...