Get discounts,
promos, see our
newest plans
and more!
+ 15% off any plan
See terms opt out anytime


No Thanks

Thanks for
signing up!


Use Code:

SIGNUP15

And save 15% off any plan!

Check your email for details.

CLOSE
Search Plans
Customer Reviews
     
15% Off House Plans Sitewide Ends Sunday

Code: SAVE15
Sale ends midnight 1/11/2026 PST

Sq Ft
3,005 FT²

Beds
3

Baths
2.5

Stories
2

Garage
2

Depth
56' 4"

Width
90' 4"
From
$1,470.00
© copyright by designer
 View All 5 Images | Photographs may reflect modified home
Sq Ft
3,005 FT²
Beds
3
Baths
2.5
Stories
2
Garage
2
Depth
56' 4"
Width
90' 4"
 
Click to Zoom In on Floor Plan
© copyright by designer
 
 

About This Plan

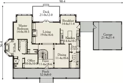
A breath-taking curved staircase accents the 2-story foyer when entering this home. Interior columns allow the dining and great rooms to flow together. The living spaces are large for family enjoyment. Southern charm is very dominent in the exterior of this home. 

See All Plan Options
 

FEATURES & DETAILS

Kitchen features
Kitchen Island
Nook / Breakfast Area
Bedroom features
Double Vanity Sink
Primary Bdrm Main Floor
Separate Tub and Shower
Sitting Area
Split Bedrooms
Walk-in Closet
Exterior features
Breezeway
Covered Front Porch
Deck
Foundation Options
Basement
Crawlspace
Slab
Lot Options
Suited for corner lot
Suited for view lot
Additional features
2 Story Volume
Dining Room
Fireplace
Foyer
Great Room
Home Office
Laundry 1st Fl
Loft / Balcony
Garage Location
Side
Garage Options
Detached
Side-entry
3,005 Ft
2
Total Heated
2,109 Ft
2
1st Floor
896 Ft
2
2nd Floor
3
Bedrooms
2.5
Bathrooms
2
Garage
2
Stories
90' 4"
Width
56' 4"
Depth
28' 0"
Height
10' 0"
Main Floor Ceiling
8' 0"
Upper Floor Ceiling
2x4
Framing
Stick
Roof Framing
9/12
Primary Roof Pitch
Single
Dwelling Number
None
Bonus Access

Unheated Living Space
484 Ft
2
Garage
416 Ft
2
Porch
 

Plan Package Options

 Select Plan Package
$1,970
5 Printed Sets + PDF

Includes 5 physical printed blueprints shipped and delivered within 3-5 business days and a copyright release license to construct one home and to make copies. A complimentary PDF plan set is also emailed within 1 business day for easy sharing and local printing. 

$1,970
$1,470
PDF Single Build

Digital plans emailed to you in PDF format that allows for printing copies and sharing electronically with contractors, subs, decorators, and more. This package includes a license to build the home one time.

$1,470
$2,465
CAD + PDF Single Build

This plan package is created in AutoCAD and delivered in .DWG format. CAD files are intended for use by design professionals, structural engineers, and builders to update plans for local building codes or to make revisions based on specific needs, lot requirements, and budget considerations. A complimentary PDF copy is included with this package for reference. CAD packages are delivered within 1 to 2 business days.
 
This package also comes with a copyright release for making revisions and printing unlimited copies.

For details on the specific CAD program used, please refer to the PLAN DETAILS section located above the floor plan on each plan page.

$2,465
  Select Foundation Option
  Add-Ons (Optional)
INCLUDED WITH YOUR PURCHASE

Free Ground shipping in the Continental U.S.

FREE

Home Building & Product Ideas Organizer

Sub Total
$0
Free Shipping
QUESTIONS OR NEED HELP ORDERING? LIVE CHAT OR CALL US AT 866-214-2242
Plan Packages

Each set of construction documents includes detailed, dimensioned floor plans, basic electric layouts, cross sections, roof details, cabinet layouts and elevations, as well as general IRC specifications. They contain virtually all of the information required to construct your home. The typical plan set does not include any plumbing, HVAC drawings, or engineering stamps due to the wide variety of specific needs, local codes, and climatic conditions. These details and specifications are easily obtained from your builder, contractors, and/or local engineers.

BEST PRICE GUARANTEE

Find the same house plan (modifications included!) and package for less on another site, show us the URL and we'll give you the difference plus an additional 5% back.

100% SATISFACTION GUARANTEE

We offer a one-time, 30-day exchange policy for unused, printed plan packages in the event you aren't satisfied with your first selection. Exchanges are subject to a 20% restocking fee.

 
 

Plan 3484  Back to plan page

Loading...