Get discounts,
promos, see our
newest plans
and more!
+ 15% off any plan
See terms opt out anytime


No Thanks

Thanks for
signing up!


Use Code:

SIGNUP15

And save 15% off any plan!

Check your email for details.

CLOSE
Search Plans
Customer Reviews
     
15% off ALL House Plans Sitewide
15% off ALL House Plans Sitewide
15% off ALL House Plans Sitewide

Code: HONOR
Sale ends midnight 5/29/2026 PST

Sq Ft
6,060 FT²

Beds
5

Baths
4.5

Stories
2

Garage
4

Depth
92'

Width
140'
On Sale
$2,699.60
$3,176.00
© copyright by designer
 View All 10 Images | Photographs may reflect modified home
Sq Ft
6,060 FT²
Beds
5
Baths
4.5
Stories
2
Garage
4
Depth
92'
Width
140'
 
Click to Zoom In on Floor Plan
© copyright by designer
 
 

About This Plan

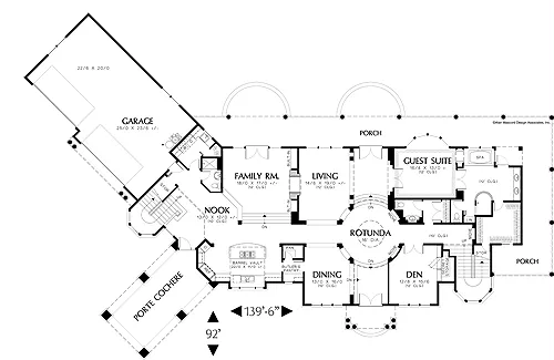
A two-story front foyer and rotunda... a drive-through portico... a wraparound covered porch... two master suites. These are just a few of the amenities in this Craftsman style home plan. The rotunda bisects the main floor into public and private spaces. To the right lies a guest suite with a bay window, 12-foot ceilings, and a see-through fireplace that's shared by bedroom and bath. The bath is equipped with a separate whirlpool tub and shower stall, a double-sink vanity, and a privacy enclosure for the toilet.

On the public side of the house, the kitchen revolves around an island, outfitted with a downdraft cooktop. A barrel-vault ceiling accents the work core. The breakfast nook and dining room are only steps away. A butler's pantry provides a transition between kitchen and dining room. The family room and adjacent living room share a fireplace and 12-foot ceilings. French doors in the family room open to the porch.

The upstairs master suite is graced with barrel-vault ceilings, a see-through fireplace, and a deck. The other bedrooms host walk-in closets and sink vanities. 


See All Plan Options
 

FEATURES & DETAILS

Kitchen features
Butler's Pantry
Kitchen Island
Nook / Breakfast Area
Walk-in Pantry
Bedroom features
2 Primary Suites
Double Vanity Sink
Guest Suite
Primary Bdrm Main Floor
Primary Bdrm Upstairs
Separate Tub and Shower
Walk-in Closet
Exterior features
Deck
Wraparound Porch
Foundation Options
Basement
Crawlspace
Slab
Lot Options
Suited for corner lot
Suited for view lot
Additional features
2 Story Volume
Bonus Room
Dining Room
Family Room
Fireplace
Formal LR
Foyer
Home Office
In-law Suite
Laundry 1st Fl
Library/Media Rm
Loft / Balcony
Mud Room
Garage Location
Front
Garage Options
Attached
Front-entry
6,060 Ft
2
Total Heated
3,620 Ft
2
1st Floor
2,440 Ft
2
2nd Floor
5
Bedrooms
4.5
Bathrooms
4
Garage
2
Stories
140' 0"
Width
92' 0"
Depth
33' 10"
Height
12' 0"
Main Floor Ceiling
varies' 0"
Upper Floor Ceiling
2x6
Framing
Stick
Roof Framing
12/12
Primary Roof Pitch
9/12
Secondary Roof Pitch
5/12
Porch Roof Pitch
Single
Dwelling Number
1st Floor, 2nd Floor
Bonus Access

Unheated Living Space
1,064 Ft
2
Garage
1,025 Ft
2
Porch
Collections
 

Plan Package Options

 Select Plan Package
 Need To Reverse Plan? (Optional)
  Select Foundation Option
  Add-Ons (Optional)
INCLUDED WITH YOUR PURCHASE

Free Ground shipping in the U.S.

FREE

Home Building & Product Ideas Organizer

Sub Total
$0
Free Shipping
QUESTIONS OR NEED HELP ORDERING? LIVE CHAT OR CALL US AT 866-214-2242
Plan Packages

Each set of construction documents typically includes detailed, dimensioned floor plans, basic electric layouts, cross sections, roof details, cabinet layouts, and elevations, as well as general IRC specifications. Please refer to the ARCHITECT or DESIGNER’S PLAN DETAILS link above the floor plan on any plan page to determine the specific details for each plan. Our house plans contain virtually all of the information required to construct your home. The typical plan set does not include plumbing, HVAC drawings, or engineering stamps due to the wide variety of specific needs, local codes, and climatic conditions. These details and specifications are easily obtained from your builder, contractors, and/or local engineers.

BEST PRICE GUARANTEE

Find the same house plan (modifications included!) and package for less on another site, show us the URL and we'll give you the difference plus an additional 10% back.

100% SATISFACTION GUARANTEE

We offer a one-time, 30-day exchange policy for unused, printed plan packages in the event you aren't satisfied with your first selection.

 
 

Plan 2743  Back to plan page

Loading...