Get discounts,
promos, see our
newest plans
and more!
+ 15% off any plan
See terms opt out anytime


No Thanks

Thanks for
signing up!


Use Code:

SIGNUP15

And save 15% off any plan!

Check your email for details.

CLOSE
Search Plans
     

Sq Ft
2,160 FT²

Beds
3

Baths
2.5

Stories
2

Garage
2

Depth
67' 6"

Width
39'
From
$1,621.00
© copyright by designer
 View All 4 Images | Photographs may reflect modified home
Sq Ft
2,160 FT²
Beds
3
Baths
2.5
Stories
2
Garage
2
Depth
67' 6"
Width
39'
 
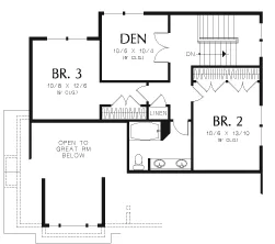
Click to Zoom In on Floor Plan
© copyright by designer
 
 

About This Plan

A two-story, vaulted great room, expansive master suite (on the main level, with a grand walk-in closet and a spa tub) and back-facing garage offer exceptionally appealing reasons to take comfort in this 3+ bedroom, contemporary, American Craftsman-inspired home. With large, well-framed windows, a charming front covered entry, and steep rooflines along the exterior: clean design extends into the interior as well, where simple lines create spacious living spaces. Cleverly allocated finishes fill the home, which include niches, large bathrooms, a back porch off the dining/kitchen space and a flexible upstairs den. 

See All Plan Options
 

FEATURES & DETAILS

Kitchen features
Country Kitchen
Kitchen Island
Bedroom features
Double Vanity Sink
Primary Bdrm Main Floor
Separate Tub and Shower
Walk-in Closet
Exterior features
No Porch
Foundation Options
Basement
Crawlspace
Slab
Lot Options
Suited for narrow lot
Additional features
Fireplace
Great Room
Home Office
Laundry 1st Fl
Open Floor Plan
Vaulted Ceilings
Garage Location
Rear
Garage Options
Attached
Rear-entry
2,160 Ft
2
Total Heated
1,470 Ft
2
1st Floor
690 Ft
2
2nd Floor
3
Bedrooms
2.5
Bathrooms
2
Garage
2
Stories
39' 0"
Width
67' 6"
Depth
29' 10"
Height
Varies' 0"
Main Floor Ceiling
2x6
Framing
Truss
Roof Framing
9/12
Primary Roof Pitch
Single
Dwelling Number
None
Bonus Access

Unheated Living Space
400 Ft
2
Garage
 

Plan Package Options

 Select Plan Package
$1,621
PDF Single Build

Digital plans emailed to you in PDF format that allows for printing copies and sharing electronically with contractors, subs, decorators, and more. This package includes a license to build the home one time.

$1,621
$1,921
5 Printed Sets + PDF

Digital plan emailed to you in PDF format that allows for printing copies on a home printer or local print shop and sharing with contractors, subs, decorators, and more. PLUS five printed sets shipped and delivered 3-5 business days.

$1,921
$3,242
CAD + PDF Single Build

CAD files are a complete set of construction drawings delivered electronically. They can be used for any type of modification—including major design changes and engineering—and include a release granting permission to modify the plan. Most CAD plan orders are emailed the same or next business day.
 
This package also comes with a PDF set of plans and a copyright release for making modifications and printing unlimited copies.
 
CAD files are provided in .dwg format. For details on the specific CAD program used, please refer to the PLAN DETAILS section located above the floor plan on each plan’s page.

$3,242
 Need To Reverse Plan? (Optional)
$250
Readable Reverse

Reverse house plans with readable text and dimensions 

$250
  Select Foundation Option
  Add-Ons (Optional)
INCLUDED WITH YOUR PURCHASE

Free Ground shipping in the Continental U.S.

FREE

Design consultation with the architect or designer to discuss your plan

Home Building & Product Ideas Organizer

Sub Total
$0
Free Shipping
QUESTIONS OR NEED HELP ORDERING? LIVE CHAT OR CALL US AT 866-214-2242
Plan Packages

Each set of construction documents includes detailed, dimensioned floor plans, basic electric layouts, cross sections, roof details, cabinet layouts and elevations, as well as general IRC specifications. They contain virtually all of the information required to construct your home. The typical plan set does not include any plumbing, HVAC drawings, or engineering stamps due to the wide variety of specific needs, local codes, and climatic conditions. These details and specifications are easily obtained from your builder, contractors, and/or local engineers.

BEST PRICE GUARANTEE

find the same house plan (modifications included!) and package for less on another site, show us the URL and we'll give you the difference plus an additional 5% back.

100% SATISFACTION GUARANTEE

We offer a one-time, 30-day exchange policy for unused, non-electronic plan packages in the event you aren't satisfied with your first selection.

 
 

Plan 8284  Back to plan page

Loading...