Get discounts,
promos, see our
newest plans
and more!
+ 15% off any plan
See terms opt out anytime


No Thanks

Thanks for
signing up!


Use Code:

SIGNUP15

And save 15% off any plan!

Check your email for details.

CLOSE
Search Plans
Customer Reviews
     
15% off ALL House Plans Sitewide
15% off ALL House Plans Sitewide
15% off ALL House Plans Sitewide

Code: SAVE15
Sale ends midnight 4/19/2026 PST

Sq Ft
5,147 FT²

Beds
3

Baths
2.5

Stories
1

Garage
3

Depth
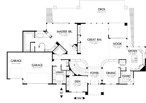
55'

Width
106'
On Sale
$2,342.60
$2,756.00
© copyright by designer
 View All 4 Images | Photographs may reflect modified home
Sq Ft
5,147 FT²
Beds
3
Baths
2.5
Stories
1
Garage
3
Depth
55'
Width
106'
 
Click to Zoom In on Floor Plan
© copyright by designer
 
 

About This Plan

Designed for a spectacular rear view, this contemporary home epitomizes luxury. The floor plan flows elegantly from one room to another creating an impressive space to entertain.
The wide-open foyer offers an unobstructed view to the back of the home and the views beyond. Decorative columns distinguish the dining room. Perfect for a dinner party, access to the kitchen is through a large butlers pantry.
Windows across the length of the home make rooms facing the rear feel more spacious than their actual dimensions. With a 1200 sq. ft. deck, the space in the great room, nook and master bedroom, extend even further.

The luxurious master suite-full of amenities-includes a cozy see through fireplace. The bath is equipped with a spa, a spacious tiled shower and walk-in closet.

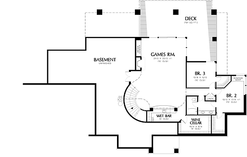
A huge games room occupies the lower level, complete with a fireplace, media center and wet bar. Offering the same comfort as the main the floor, a lower deck extends the living space and provides a great place for kids to hang out. Two additional bedrooms with walk-in closets complete the home. 


See All Plan Options
 

FEATURES & DETAILS

Kitchen features
Butler's Pantry
Foundation Options
Daylight Basement
Slab
Additional features
Great Room
Home Office
Library/Media Rm
Wine Cellar
Garage Location
Front
Garage Options
Attached
Front-entry
5,147 Ft
2
Total Heated
3,257 Ft
2
1st Floor
1,890 Ft
2
Lower Floor
3
Bedrooms
2.5
Bathrooms
3
Garage
1
Stories
106' 0"
Width
55' 0"
Depth
22' 0"
Height
11' 0"
Main Floor Ceiling
10' 0"
Upper Floor Ceiling
2x6
Framing
Truss
Roof Framing
5/12
Primary Roof Pitch
Single
Dwelling Number

Unheated Living Space
803 Ft
2
Garage
1,229 Ft
2
Deck
Exterior Styles
Collections
 

Plan Package Options

 Select Plan Package
 Need To Reverse Plan? (Optional)
  Select Foundation Option
  Add-Ons (Optional)
INCLUDED WITH YOUR PURCHASE

Free Ground shipping in the U.S.

FREE

Home Building & Product Ideas Organizer

Sub Total
$0
Free Shipping
QUESTIONS OR NEED HELP ORDERING? LIVE CHAT OR CALL US AT 866-214-2242
Plan Packages

Each set of construction documents typically includes detailed, dimensioned floor plans, basic electric layouts, cross sections, roof details, cabinet layouts, and elevations, as well as general IRC specifications. Please refer to the ARCHITECT or DESIGNER’S PLAN DETAILS link above the floor plan on any plan page to determine the specific details for each plan. Our house plans contain virtually all of the information required to construct your home. The typical plan set does not include plumbing, HVAC drawings, or engineering stamps due to the wide variety of specific needs, local codes, and climatic conditions. These details and specifications are easily obtained from your builder, contractors, and/or local engineers.

BEST PRICE GUARANTEE

Find the same house plan (modifications included!) and package for less on another site, show us the URL and we'll give you the difference plus an additional 10% back.

100% SATISFACTION GUARANTEE

We offer a one-time, 30-day exchange policy for unused, printed plan packages in the event you aren't satisfied with your first selection.

 
 

Plan 2480  Back to plan page

Loading...