Get discounts,
promos, see our
newest plans
and more!
+ 15% off any plan
See terms opt out anytime


No Thanks

Thanks for
signing up!


Use Code:

SIGNUP15

And save 15% off any plan!

Check your email for details.

CLOSE
Search Plans
Customer Reviews
     
15% off ALL House Plans Sitewide
15% off ALL House Plans Sitewide
15% off ALL House Plans Sitewide

Code: SAVE15
Sale ends midnight 4/12/2026 PST

Sq Ft
5,042 FT²

Beds
4

Baths
4.5

Stories
1

Garage
3

Depth
50'

Width
88'
On Sale
$2,339.20
$2,752.00
© copyright by designer
 View All 26 Images | Photographs may reflect modified home
Sq Ft
5,042 FT²
Beds
4
Baths
4.5
Stories
1
Garage
3
Depth
50'
Width
88'
 
Click to Zoom In on Floor Plan
© copyright by designer
 
 

About This Plan

Take advantage of views and make best use of a hillside lot by selecting this impressive home reminiscent of a French country estate. Not just another pretty face, this design offers a floor plan filled with amenities and special appointments. High ceilings grace the rooms on the main level; the kitchen and master bedroom are vaulted. The great room is appointed with a fireplace, a media center and double doors to the rear deck.
A butler's pantry, with wine storage, separates the formal dining room from the everyday breakfast nook. Around the corner is an elevator to the lower level. The kitchen has an island work center and a built-in desk and allows access to the deck. A sumptuous bath complements the master bedroom. It features a walk-in closet with ironing center, space for a stacked washer/dryer, a spa tub, and a curved shower fashioned of glass block. A den and half-bath round out the main level.

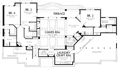
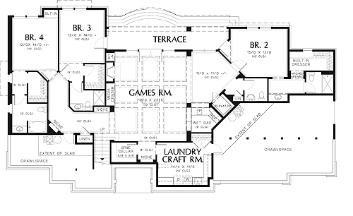
A games room, laundry or craft room, and three family bedrooms are on the lower level. Special elements on this floor include a wet bar, a wine cellar and art niches. All lower-level bedrooms have private baths. 


See All Plan Options
 

FEATURES & DETAILS

Kitchen features
Butler's Pantry
Kitchen Island
Nook / Breakfast Area
Walk-in Pantry
Bedroom features
2 Primary Suites
Double Vanity Sink
Guest Suite
Primary Bdrm Main Floor
Separate Tub and Shower
Split Bedrooms
Walk-in Closet
Exterior features
Covered Rear Porch
Deck
Foundation Options
Daylight Basement
Slab
Walkout Basement
Lot Options
Suited for sloping lot
Suited for view lot
Additional features
2 Story Volume
Dining Room
Fireplace
Foyer
Great Room
Home Office
In-law Suite
Laundry 1st Fl
Library/Media Rm
Open Floor Plan
Rec Room
Storage Space
Vaulted Ceilings
Wine Cellar
Garage Location
Front
Garage Options
Attached
Front-entry
5,042 Ft
2
Total Heated
2,602 Ft
2
1st Floor
2,440 Ft
2
Lower Floor
4
Bedrooms
4.5
Bathrooms
3
Garage
1
Stories
88' 0"
Width
50' 0"
Depth
29' 0"
Height
Varies' 0"
Main Floor Ceiling
10' 0"
Upper Floor Ceiling
2x6
Framing
Stick
Roof Framing
10/12
Primary Roof Pitch
Single
Dwelling Number
None
Bonus Access

Unheated Living Space
647 Ft
2
Garage
304 Ft
2
Deck
 

Plan Package Options

 Select Plan Package
 Need To Reverse Plan? (Optional)
  Select Foundation Option
  Add-Ons (Optional)
INCLUDED WITH YOUR PURCHASE

Free Ground shipping in the U.S.

FREE

Home Building & Product Ideas Organizer

Sub Total
$0
Free Shipping
QUESTIONS OR NEED HELP ORDERING? LIVE CHAT OR CALL US AT 866-214-2242
Plan Packages

Each set of construction documents includes detailed, dimensioned floor plans, basic electric layouts, cross sections, roof details, cabinet layouts and elevations, as well as general IRC specifications. They contain virtually all of the information required to construct your home. The typical plan set does not include any plumbing, HVAC drawings, or engineering stamps due to the wide variety of specific needs, local codes, and climatic conditions. These details and specifications are easily obtained from your builder, contractors, and/or local engineers.

BEST PRICE GUARANTEE

Find the same house plan (modifications included!) and package for less on another site, show us the URL and we'll give you the difference plus an additional 10% back.

100% SATISFACTION GUARANTEE

We offer a one-time, 30-day exchange policy for unused, printed plan packages in the event you aren't satisfied with your first selection.

 
 

Plan 4616  Back to plan page

Loading...